
Table of Contents
Chapter 1 Overview……………………………………………………………………4
1.1 Product Characteristics......................................................................................................4
1.2 Technical Indexes of Product................................................................................4
Chapter 2 Basic Principle and Structure ........................................................................6
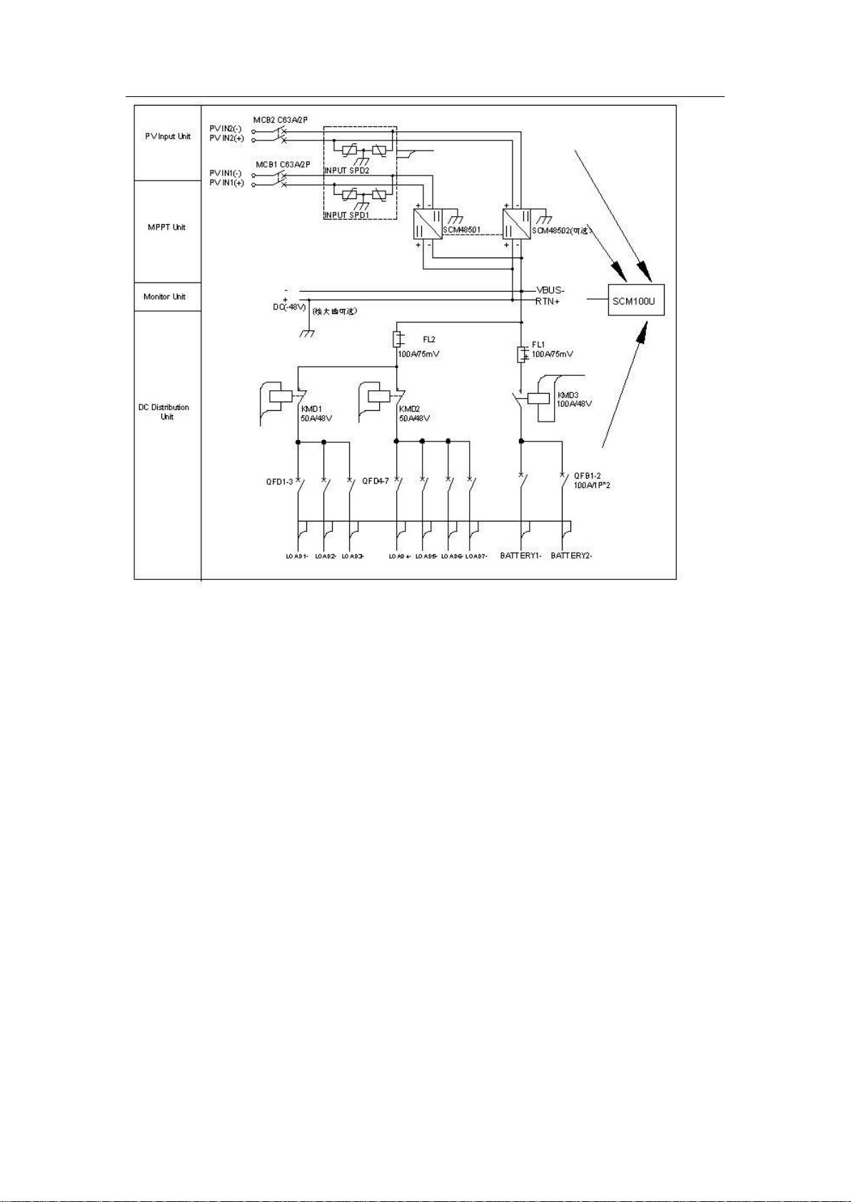
2.1 Block Diagram of Working Diagram....................................................................6
2.2 Block Diagram of Principle of Controller.............................................................6
2.3 Function Introduction to Each System Unit.........................................................8
2.4 Outer Structure of Cabinet and Installation Instructions..................................9
2.5 Wiring and Operation...........................................................................................10
2.5.1 Attentions............................................................................................................................10
2.5.2 Description of Terminal Blocks........................................................................11
2.5.3 Operation...........................................................................................................................11
2.6 Description of Signal Interfaces..........................................................................12
2.6.1 Monitoring RJ45 Signal Interface...................................................................12
2.6.2 Definitions of Sockets on Signal Adapter Plate..............................................12
2.7 Description of Human-machine Interface Displayed in LCD Display Panel..14
2.7.1 LED Indicator Lamps on Monitoring Panel...................................................14
2.7.2 Operation Instructions of Functions of Button on Front Panel....................15
2.8 Configuration of Monitoring Parameters...........................................................15
Chapter 3 Instructions to Maintenance ........................................................................17
3.1 Preventive Periodical Maintenance.....................................................................17
3.2 Steps of Fault Maintenance..................................................................................17
3.3 Steps of Maintenance Operation..........................................................................17
3.4 Maintenance of Solar Photovoltaic Panel...........................................................18
3.5 Other Maintenance...............................................................................................18
3.6 Diagnosis of Common Abnormal Problems.......................................................18
Chapter 4 Transport and Storage..................................................................................20
4.1 Transport...............................................................................................................20
4.2 Storage....................................................................................................................20
Chapter 5 About JFY....................................................................................................21