
2 03537651_ed15
Installation
For maximum performance, read this manual prior to the
installation or operation of Series ST700 Turbine-Powered
Starters.
General Information
It is strongly recommended that on all vehicular installations
and on stationary engines subject to vibration, that hoses of the
specied diameter be used instead of rigid pipe connections to
the starter. Vehicle and engine vibration will soon loosen rigid
pipe connections, whereas hoses will absorb the vibration, and
connections will remain tight.
This starter is designed for ange mounting at the inlet. The
furnished Flange Mounting Kit is required for installation. All
piping, hoses and valving must be clean prior to installation. Make
sure that the starter inlet remains free of dirt and foreign material
during installation.
In the actual mounting of a starter, it may be best to have the
hose connections already made at the receiver and to have the
starter end of the hose handy for attaching to the starter.
Engine design often demands that the starter be mounted
underneath in extremely close quarters, and even though two of
the mounting bolt holes are easy to reach, the third one is often
less accessible. To install a starter, the following tools are required:
regular ratchet wrench, sockets, universal joint, socket extension
and a single or double-end box wrench.
The eciency of an Air Starter can be greatly impaired by an
improper hook-up. Hoses smaller than those recommended will
reduce the volume of air to the motor and the use of reducers
for piped-away applications in the exhaust port will restrict the
exhaust causing back pressure to the motor resulting in reduced
performance. The number of tees and elbows, and the length of
the supply line should be kept to a minimum. Use 1-1/2”hose or
pipe for supply lines up to 15 feet long; use 2”hose or pipe if the
supply line is over 15 feet long.
A leak in any of the connections in live air lines means that the
system will drain overnight and will have to be repressurized the
next morning by use of another vehicle or compressor. Make
your connections bubble tight to avoid unnecessary costs
and delays. On all threaded connections throughout the system,
use Ingersoll Rand No. SMB-441 Sealant, non-hardening No. 2
Permatex or Loctite®* Pipe Sealant.
After all connections have been made, check each joint with
a soap bubble test. There must be no leaks in live air lines. The
slightest leak will cause the system to lose pressure overnight.
Always run the air supply line from the side or top of the receiver,
never at or near the bottom. Moisture in the air collects at the
bottom of the receiver resulting in damage which could cause
the valves to become inoperative. Periodically open the petcock
at the bottom of the tank to drain the water.
7. Whenever a hazardous gas is being used to operate the starter,
there must be no leaks in inlet or exhaust piping or from any
other starter joints. All discharges should be piped away to a
safe area.
* Registered trademark of Loctite Corporation.
1.
2.
3.
4.
5.
6.
8. We recommend installation of a “glad hand” for emergency
re-pressurizing of the system. To keep the“glad hand”clean
and free of dirt, and to protect it from damage, a second“glad
hand” closed by a pipe plug can be mated to it, or a“glad hand”
protector bracket can be used.
9. It is required that a strainer be installed in the inlet line for each
starter.
Ingersoll Rand oers 5 strainers:
ST900-267-24 for 1-1/2 inch lines,
ST900-267-32 and ST900-267-32F for 2 inch lines,
ST900-267-48 for 3 inch lines and
ST900-267-64 for 4 inch lines.
These 300 mesh strainers provide 50 micron ltration and oer
signicant protection against supply line contaminates which
could damage the turbine components. Replacement elements
are:
ST900-266-24 for 1-1/2 inch,
ST900-266-32 for 2 inch pipe thread,
ST900-266-32F for 2 inch ange,
ST900-266-48 for 3 inch ange and
ST900-266-64 for 4 inch lines.
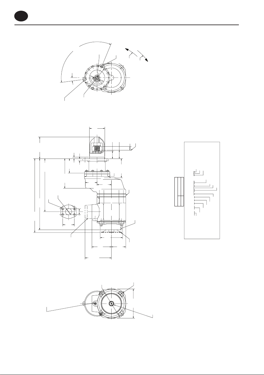
Orientation of the Starter
It is recommended that starters be ordered to proper orientation for
your specic mounting to the required engine or for your specic
installation. However, if the starter must be reoriented for installation,
proceed as follows:
Refer to the dimension illustration on page EN5, EN6 and EN7
and note that the Drive Housing can be located in any one of
sixteen radial positions relative to the Gear Case and the air inlet
can be located in any one of four radial positions relative to the
Drive Housing.
Study the engine mounting requirements, and determine the
required orientation of the Drive Housing relative to the Gear
Case. If the Drive Housing has to be reoriented, remove the eight
Drive Housing Cap Screws and rotate the Drive Housing to its
required position. Separation of the Drive Housing from the Gear
Case is not required. Reinstall the Drive Housing Cap Screws and
tighten to 28 ft-lb (38 Nm) torque.
After the Drive Housing is properly oriented relative to the Gear
Case, determine if the inlet port will be favorably located for
hose installation. If either or both of these members must be
reoriented, use an 8 mm hex-head wrench to remove the four
motor housing cover cap screws, and rotate the motor housing
and/or motor housing cover to its desired position.
Do not separate the Motor Housing from the Intermediate Gear
case as gear lubrication oil will be lost.
Reinstall the motor housing cover cap screws and alternately tighten
them to 60 ft-lb (81.4 Nm) torque in 20 ft-lb (27 Nm) increments.
Mounting the Starter
Study the appropriate piping diagrams on page 8 through 11 and
install as indicated.
The air receiver tank for a starter installation must have a working
pressure rating equal to or greater than the maximum pressure at
which the starter will be operated.
1.
2.
3.
1.
2.
Placing the Starter in Service
Product Safety Information
Intended Use:
These air starters are intended for use in starting reciprocating internal combustion engines. These starters are designed to be
operated from a remote location after proper installation on the engine requiring starting.
For additional information refer to Air Starters for Internal Combustion Engines Product Safety Information Manual Form 45558624.
Manuals can be downloaded from ingersollrandproducts.com
EN