
BA / ETL duolift MTE 3000 – 94 12 554
8
M16x45 benutzt werden! (Im Standardzubehör
enthaltene Schrauben M16x40 können nicht ver-
wendet werden !)
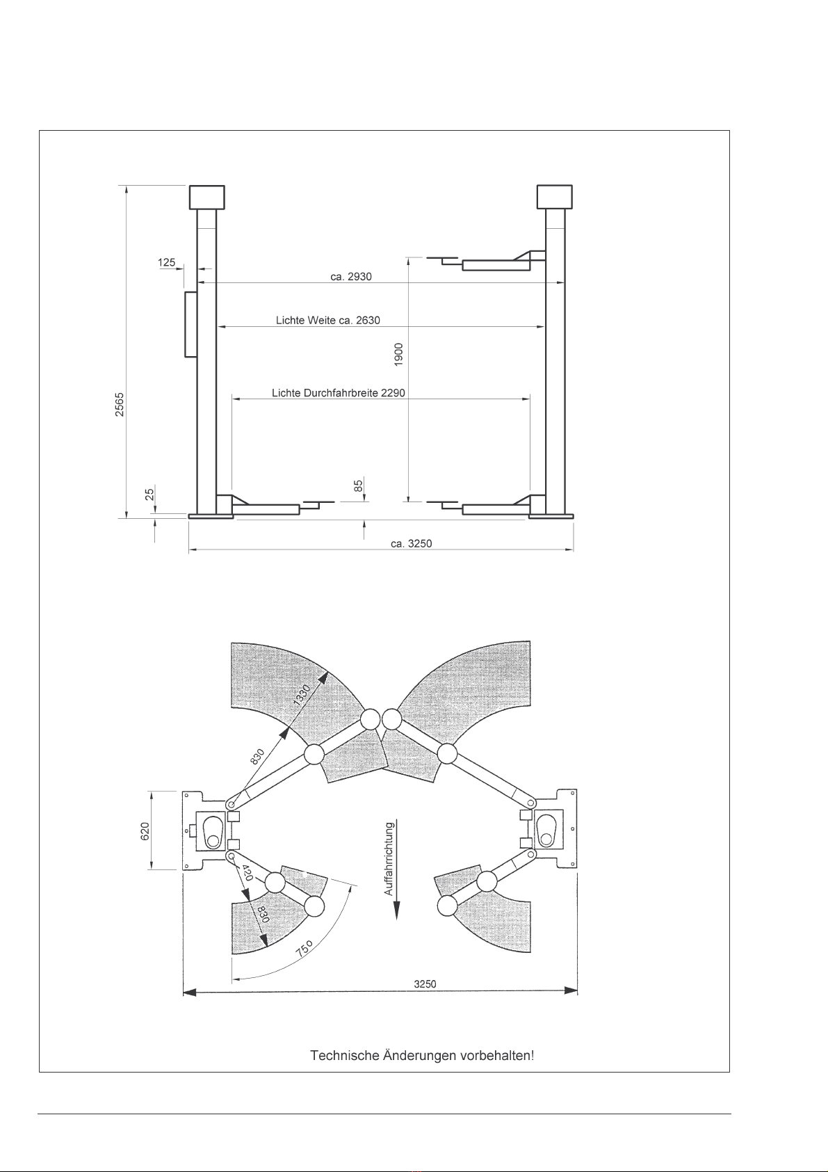
•Nach VBG 14 §33 (1) muß ein ausreichender
Sicherheitsabstand von min. 500 mm zwischen
den Hubsäulen und sonstigen Begrenzungen
(Wand, etc.) bzw. zwischen aufgenommener Last
und Begrenzung vorhanden sein.
•Nach nochmaliger Kontrolle der Aufbausituation
werden die Bodenplatten verdübelt. (Die Boden-
platten müssen ganzflächig aufliegen!) Benötigt
werden 10 Schwerlastanker M16 (z. B. Hilti HSL-
G-TZ, oder vergleichbare Anker anderer Herstel-
ler).
•Die Bohrtiefe im Beton (BN25) muß min. 125 mm
betragen. Die Verankerungstiefe darf 100 mm
nicht unterschreiten. Die Dübel müssen einer
Mindestanzugskraft von 9 kN widerstehen.
•Das Anzugsdrehmoment liegt bei 120 Nm. Die
Dübellänge ist entsprechend den Angaben im
Kapitel "Fundament" auszulegen. Die oben ge-
nannten Dübelangaben beziehen sich auf den
Hilti-Schwerlastanker HSL-G-TZ M16. Es können
auch andere Dübelfabrikate verwendet werden,
soweit sie bauaufsichtlich für die Druck- und
Zugzone des Betons zugelassen sind.
Dübel gehören nicht zum Lieferumfang.
•Bei Aufstellung auf Etagendecken muß eine Ge-
samtbelastung berücksichtigt werden, die sich
etwa gleichmäßig auf einer Fundamentfläche ver-
teilt. In diesem Falle ist die Begutachtung durch
einen Bausachverständigen zu empfehlen.
•Den Fundamentaufbau des duolift MTE 3000 ge-
mäß Fundamentplan-Nr. F467422 auslegen. Bei
minderen Fundamentqualitäten (Betondecke
<180 mm) können die Hubsäulen auch auf einen
Stützrahmen gestellt werden. In diesem Fall ist
beiBetonB25 eine Dicke von 150 mm ausreichend.
Die Hubsäulen sollen lotrecht stehen, auf keinen
Fall nach innen geneigt. Eine leichte Neigung
nach außen (bis zu 10 mm) ist gewollt. Gegebe-
nenfalls muß zwischen Bodenplatte und Säulen-
grundplatte durch Unterlegen von Zusatzblechen
(im Zubehör enthalten) ausgeglichen werden.
Achtung
Bei falscher Drehrichtung auf keinen Fall in die End-
lagen fahren, da die Bühne sonst festfährt.
•Bei abgesenkten Hubwagen die abgewinkelten
Seiten der Arretierstangen soweit aus dem Hub-
wagen herausziehen, bis auf der anderen Seite
noch ca. 40 mm verbleiben. Aufnahmebolzen gut
fetten. Bei den unteren Arretierstangen die Ab-
winkelung nach oben drehen und beim Einhän-
gen der Schwenkarme mit einhängen. Die Winkel
der oberen Arretierstangen nach dem Einhängen
der Schwenkarme mit einer Zange in die Boh-
rungen eindrehen.
•Die Aufnahmeteller montieren und sichern.
•Auf richtige Lage des Schaltseils in der Bedien-
säule achten. Die Schaltbleche müssen sich zwi-
schen Säulenrückwand und Rückhaltesteg befin-
den.
•Die Spindelabdeckung kontrollieren. Die Um-
lenkbügel für das Spannband müssen genügend
Abstand von den Säulen haben, damit das
Spannband nicht einklemmt und beschädigt wer-
den kann. Umlenkbügel evtl. nachrichten. Sollten
beim Hubbetrieb "surrende" Geräusche durch
das Spannband entstehen, ist dieses auf der
Rückseite mit etwas Mehrzweckfett zu schmie-
ren.
7.2 Elektroanschluß
Achtung
Vor Beginn der Elektroarbeiten den Hauptschalter am
Steuerkasten ausschalten und gegen unbefugtes
Wiedereinschalten sichern. Die Hubwagen (nur im
stromlosen Zustand!) auf gleiche Höhe zu bringen.
•Vor Beginn der Elektroarbeiten ist außerdem die
Anleitung zur Erstaufstellung (folgende Seiten)
sorgfältig zu lesen und zu beachten! Für weiter-
gehende Fragen steht Ihnen der Hofmann-
Service zur Verfügung.
•Elektroanschluß herstellen. Die elektrische Instal-
lation der Hebebühne hat, unter Zugrundelegung
des mitgelieferten Schaltplanes und der VDE-
Vorschrift VDE 0100, durch einen Elektrofach-
mann zu erfolgen. Für die Installation ist ein TN-
Netz erforderlich.
•An der Nebensäule befinden sich die Verbin-
dungskabel zur Bediensäule (12 m). Diese Kabel
werden durch ein bauseits verlegtes Leerrohr un-
ter der Decke mit der Bediensäule verbunden.
•Bei der Verkabelung ist sorgsam darauf zu ach-
ten, daß keine Drähte vertauscht werden!
Justieren der Hebebühne duolift MTE 3000 vor
der Inbetriebnahme oder nach einer Reparatur!
7.3 Vor der Inbetriebnahme
Die Hebebühne wird mit einer Hubwagenhöhe von
ca. 45 cm geliefert, gemessen von Oberkante
Schwenkarmträger am Hubwagen bis Unterkante
Säulengrundplatte.
•Ist die Hebebühne bereits elektrisch angeschlos-
sen, muß der Haupschalter auf "0" geschaltet
und gesichert werden.