1. Preparing for sauna heater installation
Check the following before installing the sauna heater.
-The ratio of the heater's input (kW) and the sauna room's volume (m3). Volume recommendations are presented
in Tables 1, 2 and 3 on page 5, 6 and 7. The minimum and maximum volumes must not be exceeded.
-The height of the sauna room must be at least 1900 mm or 2200 mm depending on the heater power.
-Uninsulated and masonry stone walls extend the preheating time. Each square metre of plastered ceiling or wall
surface adds 1.2 m3to the sauna room's volume.
-Check page 7 Table 4, 5 and 6 for a suitable fuse size (A) and the correct diameter of the power supply cable
(mm²) for the sauna heater in question.
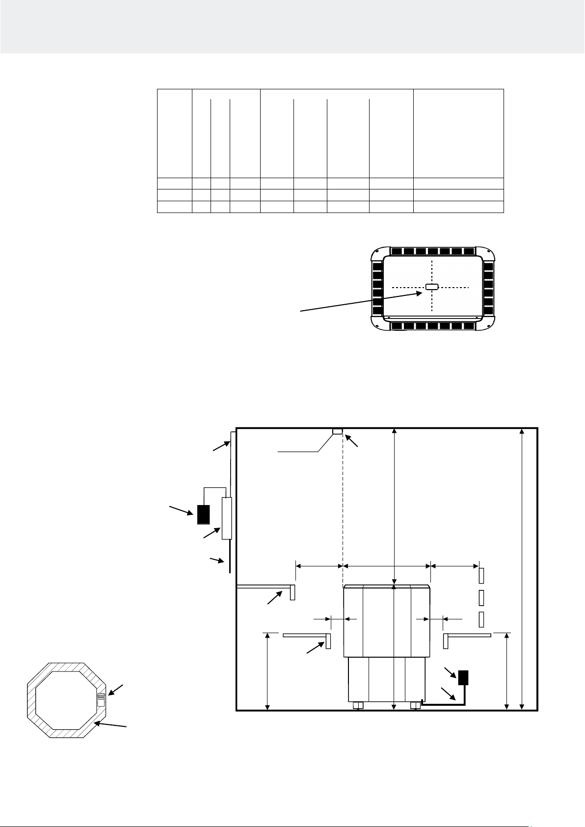
-Conform to the specified safe clearance around the sauna heater.
-There should be enough room around the control panel for maintenance purposes. Also a doorway can be
considered as a maintenance area.
2. Installation
Follow the safety clearance specifications on pages 5, 6 and 7 on tables 1, 2 and 3 when installing the sauna
heater.
The sauna heater is a floor-standing model. The base must be solid, because the sauna heater weighs
about 80-130 kg.
The sauna heater is levelled by the adjustable legs.
The sauna heater is fixed on the floor from its legs by the provided metal fasteners (2 pcs). This will keep the safety
clearances intact during use.
Walls or ceilings must not be clad with fibre-reinforced plaster board or other light-weight cladding, because they
may cause a fire hazard.
Installing the sensor near a supply air vent
The sauna room air should be exchanged six times in an
hour. The diameter of the supply air pipe should be
between 50 and 100 mm.
A circular air supply vent (360°) must be
installed at least 1000 mm away from the sensor.
An air supply vent with a flow-directing panel
(180°) must be installed at least 500 mm away from
the sensor. Air flow must be directed away from the
sensor.
Ceiling installation of the sensor
In ceiling installation, a 5-mm hole must be drilled to the
sensor case to allow any condensed water to drain.
Do not spray water directly towards the sensor or splash
water at it with a sauna scoop.
Installing the Extra NTC sensor
The additional OLET 31 sensor is connected to the Ext NTC connector on the RJ10 circuit board. For more details,
refer to the switch diagram. The additional sensor is installed on the sauna room wall no more than 500 mm from
the ceiling. Once the additional sensor has been connected to the circuit board, it is automatically activated. This
means that the temperature shown on the control panel is measured by the additional sensor.
The primary sensor installed above the sauna heater only has the limiter circuit that limits the maximum tempera-
ture to 110 °C. Even if the temperature is set to 110 °C on the control panel, the maximum temperature that can be
shown on the panel is approximately 90 °C, as the primary sensor above the heater limits the maximum tempera-
ture to 110 °C. Depending on individual preferences, the temperature of a sauna room is typically set between 70
and 80 °C.