
5308238
Installation
WARNING
COMPONENT RUPTURE HAZARD
Be sure that all accessories and system
components can withstand the pres-
sures developed. The maximum fluid
working pressure of the Fluid Commander System
is 1500 psi (10.4 MPa, 103 bar). Never exceed the
maximum working pressure of the lowest rated
accessory (valve, pipe, fitting, hose, etc.) in your
system.
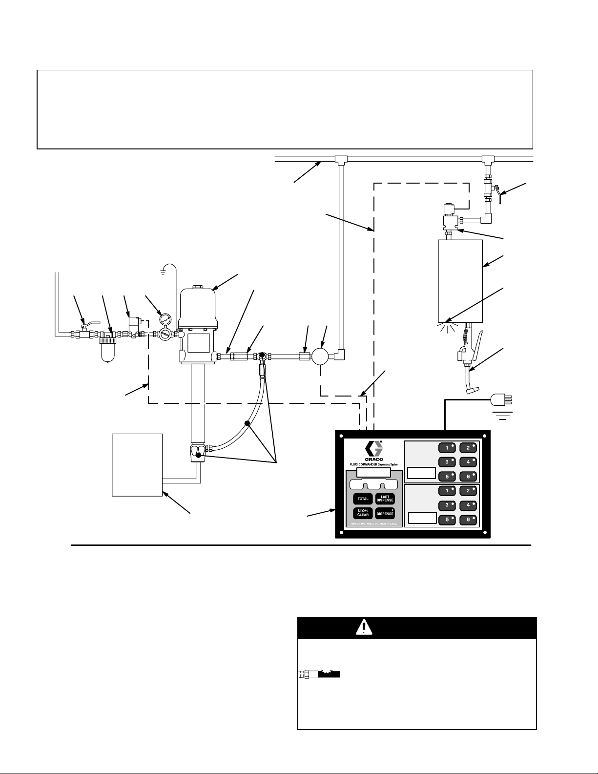
NOTE: The accessories mentioned in this manual are
shown on pages 16 and 17.
Mount the Control
Place the control on a desktop or mount it on a wall,
and locate it at least 18 in. (441 mm) off the floor.
WARNING
FIRE, EXPLOSION, AND ELECTRIC
SHOCK HAZARD
To reduce the risk of fire or explosion,
and serious injury, including electric
shock:
The control and all electrical products
described in this manual must be
installed in a non-hazardous location.
All electrical products must be wired by a qualified
electrician, following all local, state, and national
codes.
Connect the control only to a grounded outlet.
Connect the Electrical Wiring
Determine the wire gauge to use based on the length
of the run:
Up to 200 ft (61 m): 18 AWG
201 to 500 ft (152 m): 16 AWG
501 to 1000 ft (305 m): 14 AWG
Page 6 shows the recommended wiring schematic,
using Graco supplied cables, valves, and pulsers.
CAUTION
If you do not use the recommended air and fluid
valves, verify that the valves do not exceed 0.6 amp
of supply current when operated with 24 Vdc.
Pages 7 and 8 show the alternative wiring schemat-
ic, using customer-supplied cables with Graco-supplied
valves and pulsers.
Page 8 shows where the wires connect at the rear of
the control, depending on the number of fluids you are
using. Fig. 2, below, shows how to make the electrical
connections at the control, using the supplied probe.
CAUTION
To ensure correct polarity of the electrical supply, use
only the power supply cord supplied with the control.
Any other power supply cord may permanently
damage the control.
Apply Labels to the Control
Determine what fluids will be dispensed, and apply the
appropriate labels within the raised area on the control,
next to the station pads. See Fig. 3, page 11.
PROBE
(supplied with control)
WIRE
Strip back 1/4”
(6.35 mm) insulation
01291A
Fig. 2
Hook the probe into the bottom slot of the terminal block as
shown. Press the probe down. Insert the wire into the top
slot and remove the probe.
Top Slot
Bottom
Slot