GiBiDi DPT280 Manuel

DPT280
UK
DPT280 Automatic bollards
FITTING, OPERATION AND
MAINTENANCE INSTRUCTIONS

DPT280
2
UK
1 - NOTES ON INSTALLATION
• Read carefully this manual before starting the installation and save it for future reference.
• Packaging materials (plastic, polystyrene, etc…) must be kept out of reach of children, because potentially
dangerous.
• This product have been designed and manufactured only for the use shown in this documentation. Any other use,
different from what expressly indicated could damage the integrity of the product and/or be potentially dangerous.
• Gi.Bi.Di. S.r.l. is not responsible for any damage caused by improper or different use than that for which the
automated system was intended.
• Do not install the device in an explosive area: the presence of gas or inflammable fumes is a serious danger for
safety.
• The installation must be performed in compliance with the law in force.
• In the extra-UE countries make also reference to the national law.
• Gi.Bi.Di. S.r.l. is not responsible for any non-compliance with the correct installation procedure of Gi.Bi.Di’s
products and accessories, as well as for any deformation that can occur while using.
• Before carrying out any work on the system, it is advisable to wea suitable personal protective equipment (e.g.
safety shoes, gloves, goggles, etc..).
• Before performing any operation on the installation, disconnect the main power supply.
• Place a 0.03A magnetothermic differential switch with an opening distance between contacts equal to or greater
than 3 mm to power the control unit.
• The main power supply line of the control unit must be directly connected to the main switch set inside the control
unit. Use approved anti-flame cable. The dimension of the main power supply line must be evaluated by the
installer according to the quantity of bollards (500W each bollard) and the distance from the output place, in order to
grant a proper supply (230V +/-10% per each moving bollard).
• Check that there is a suitable earthing and place/connect an earthing line to the terminal PE in the control unit.
• Every bollard is equipped with a safety pressure switch. The pressure switch operates the inversion every time it
detects a mass of at least 40 Kg on the head of the bollard while rising. In any case it is recommended to check the
activation level every six months.
• Each installation should have: a light signaling such as the flashing light integrated in the head of the bollard – an
acoustic buzzer that signals the bollard in movement – a traffic light (red – green) for each direction of transit – a
signpost for each direction of transit.
• For the maintenance use only original Gi.Bi.Di. spare parts.
WARNING: IMPORTANT SAFETY REGULATIONS.
It is important to follow these instructions carefully to ensure safety of persons and belongings. A faulty
installation or an incorrect operation of the product may cause serious damages to people and
belongings.
These instructions are for experts only, for someone who is able to complete fitting, operation and
maintenance in full safety conditions.

DPT280 3
UK
• Gi.Bi.Di. S.r.l is not responsible in terms of safety and good operation of Pilomat products, in case of use of non-
original Gi.Bi.Di’s spare parts.
• Do not perform any modification to the parts composing Gi.Bi.Di. system.
• The installer must provide to the customer all the information related to the manual lowering of the bollards in case
of need.
• Do not allow people and children to stop close to the bollards during operation.
• Keep radio transmitters and any other control devices out of the reach of children in order to avoid any unintentional
operating of the bollards.
• The transit is allowed only with the bollards completely down.
• The customer must avoid any repair or direct intervention and must address to qualify and authorized personnel.
• Do not throw the exhausted batteries in the garbage but dispose them in the proper containers to allow recycling.
• The bollards are packed on pallet. Use specific equipment or forklift for movement; handle with care.
• Gi.Bi.Di. bollards are manufactured with IP 66 or superior protection class and can be stocked everywhere, also
outdoor. It is however recommended to stocked the bollards in close or covered places.
• Gi.Bi.Di. bollards are designed to resist to transport and stocking effects in a range between -25°C and +55°C and
for a determined time (less than 24 hours) at +70°C.
• The bollards do not require any availability of spare parts: Gi.Bi.Di S.r.l warehouse can send any spare parts in
quick times.
• In case of maintenance or repair of the bollards, be sure to avoid any inappropriate rising control. To avoid
problems, disconnect the controls through the appropriate switch set in the control unit.
Any procedure not explicitly stated in these instructions is forbidden.
The trash container symbol shown on the product label, on the product or in the instructions indicates that the
product, at the end of its life, must be disposed separately from other waste products.
The end user must therefore bring the item to an authorised electronic waste disposal centre, or return it to the dealer
when new equivalent product is purchased.
Proper separate collection for recycling, treatment or compatible environmental disposal contributes to avoid
negative effects on the environment and health, moreover it favours reuse and recycling of the materials the product
is made of.
Improper disposal of the product is subject to fines.
2 - DISPOSAL

4
3 - BOLLARD DATASHEET
Bollard DPT280
Cylinder material
S235JR normal steel
X5CrNi18-10 (AISI 304) stainless steel
X5CrNiMo17-12-2 (AISI 316) stainless steel
Cylinder diameter 275 mm
Cylinder height 800 mm
Normal steel cylinder thickness 6 mm
Stainless steel cylinder thickness AISI 304: 6 mm - AISI 316: 4 mm
Normal steel cylinder finish
Anti-corrosion treatment
(optional: other RAL colour on request)
Grey anthracite standard painting
Stainless steel cylinder finish Grey anthracite standard painting or brushed
Other cylinder finish Ribs on cylinder’s surface (optional)
Reflecting adhesive strip Standard - height 55 mm
Rising speed 17 cm/s
Lowering speed 32 cm/s
Manual emergency lowering Standard
(optional: automatic lowering if power failed)
Safety reversal pressure switch Standard
Connection line to control unit Standard 10 m
(max. lenght 80 m - with heating resistance)max. 50 m
Hydraulic pump for movement Built-in into the bollard
Hydraulic pump absorption 230V +/- 10% - 2.2A (max. 3.4A)
Hydraulic pump thermal protection Standard
intervention threshold 120°C - automatic recovery 80°C
Protection class IP67
Type of use Intensive - 2,000 cycles/day
Life average 3,000,000 cycles
Impact resistance (without deformation) 40,000 J
Breakout resistance 250,000 J
Permitted ambient temperature from -40°C to +70°C
(for temp. lower than -10°C use the heating resistance)
Relative humidity function range from 10% to 80%
Max. altitude in operation 1,500 m above s.l.
Max. airborne sound emission in operation 60 dB
Weight included 10m connection cable
and foundation box 185 Kg
Foundation box weight 47 Kg
DPT280
UK

5
4 - BOLLARD COMPONENTS
LOWER
LIMIT SWITCH
LOWER
SUPPORT
BASE
REFLECTING
STRIP
FLASHING LIGHT
HEAD
DPT280
560
560
40
150
800
275
1140
MOVING
CYLINDER
FRAME
PASSIVE BOX
PISTON
HYDRAULIC PUMP
SOLENOID VALVE
RISING SIDEBLOCK
UK

6
5 - INSTALLATION PROCEDURE
140 mm200 mm300 mm
1430 mm
1000 mm
1000 mm
Walking level
10 mm
SENSO DI TRAFFICO
TRAFFIC WAY
ø 50 mm
PIC. 1
PIC. 2
PIC. 3
PIC. 5 PIC. 4
DPT280
UK

7
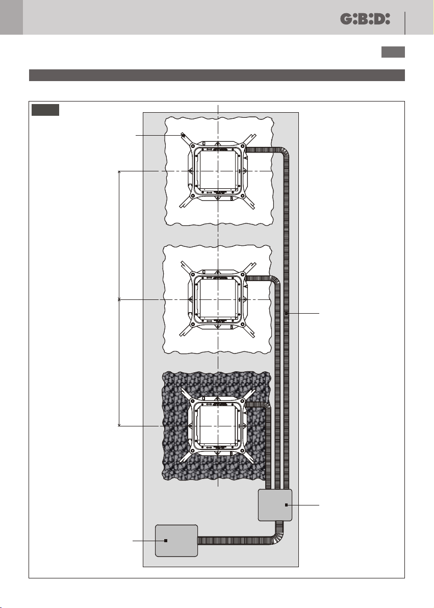
5 - INSTALLATION PROCEDURE
PIC. 6
FOUNDATION
BRACKET
CONTROL
UNIT
JUNCTION BOX
400 x 400 mm
FLEXIBLE SHEATH
diameter 50 mm
max. 1600 mmmax. 1600 mm
DPT280
UK

8
WATER
DRAINAGE
TRAFFIC WAY
BOLLARD
COUNTERFRAME
ANCHORING
PLATE
50 mm SHEATH
FOR ELECTRICAL
CABLES
WALKING
LEVEL
ROAD
SURFACE
ADDITIONAL
CONCRETE
CASTING
SUPPORTING
SLAB
M8 CHEMICAL
ANCHORS
M16
CHEMICAL
ANCHORS
WATERPROOF PIT
IN STAINLESS STEEL
WATERPROOFING
SHEATH
10 mm
50 mm 600 mm
275 mm
450 mm
500 mm
925 mm
AB
700 mm
700 mm
450 mm
450 mm
“A” dimension is the sum of the different thicknesses of which the slab is made of.
PIC. 7
5 - INSTALLATION PROCEDURE
DPT280
UK

9
PIC. 8
PIC. 10 PIC. 11
PIC. 9
M16
M16
5 - INSTALLATION PROCEDURE
DPT280
UK

10
5 - INSTALLATION PROCEDURE
min. 25 cm
5,5 cm
9 cm
15 cm
~15 cm
~15 cm
PIC. 16
PIC. 15
PIC. 17
Control
Unit
DPT280
95 cm
95 cm
95 cm
95 cm
PIC. 12
300 cm
70 cm max. 160 cm 70 cm
90 cm
90 cm
PIC. 13
280 cm 200 cm
80 cm
80 cm
PIC. 14
UK
Table des matières

















