
For answers to your Monogram,® GE Profile™or
GE®appliance questions, visit our website at
ge.com or call GE Answer Center®service,
800.626.2000.
130555
Specification Created 7/08
ZDP364NRPSS (Natural Gas)
ZDP364LRPSS (Liquid Propane)
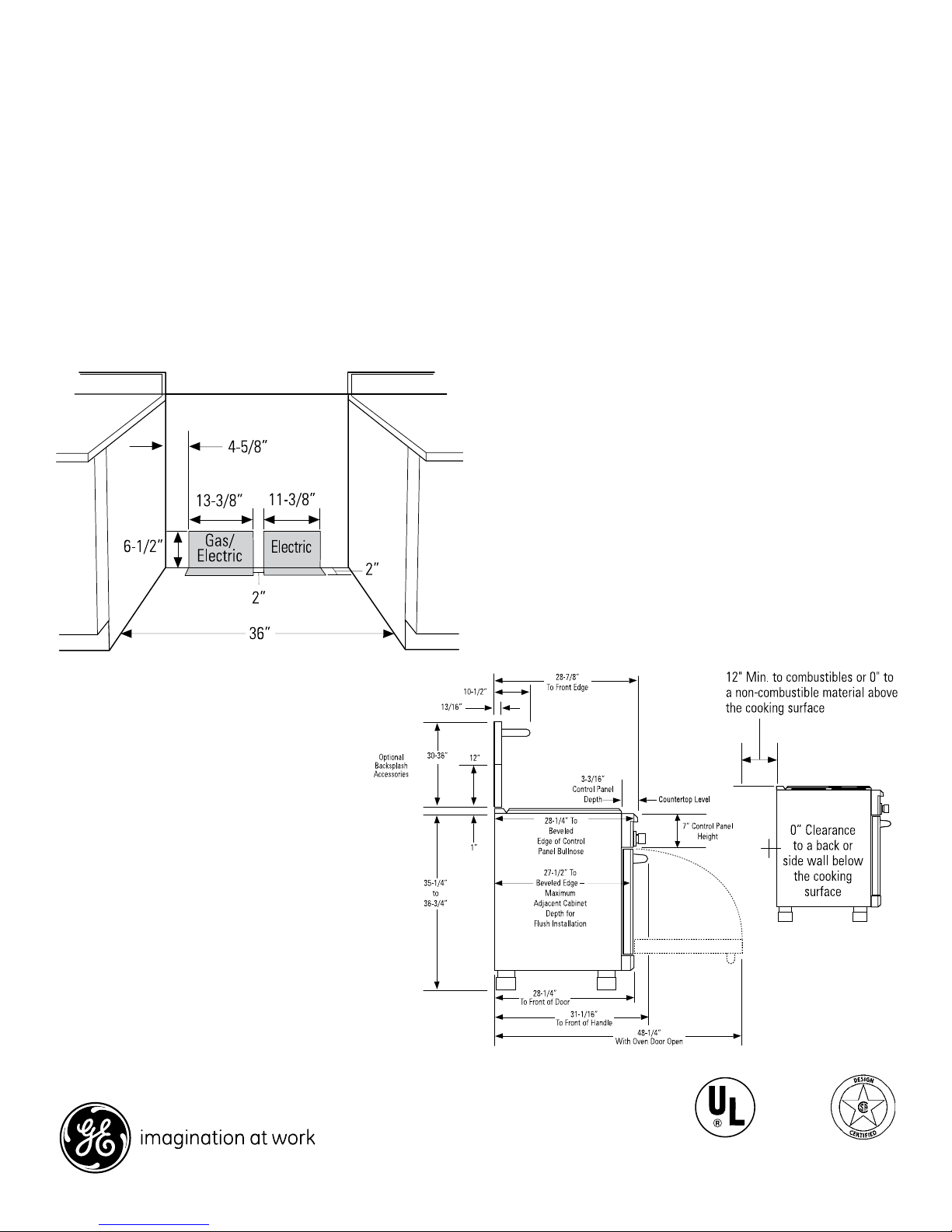
GE Monogram® 36" Dual-Fuel Professional Range with 4 Burners and Grill
BACK FRONT GRILL BACK FRONT
TIMER
PUSH TO
SELECT
O
F
F
B
R
O
I
L
P
R
O
O
F
C
L
E
A
N
R
O
A
S
T
B
R
O
I
L
B
A
K
E
C
O
N
V
.
C
O
N
V
.
C
O
N
V
.
ZDP364
Features and Benefits
• Authentic Professional appearance with premium-
grade, 304 stainless steel with smoothly finished
edges, large electronic control knobs and heavy
duty handles
• Sealed, dual-ame stacked burners deliver a full
spectrum of heat settings, from an ultra-low 140˚F
simmer to an intense 18,000 BTUs*
• Monogram Professional oven system combines
European, Reverse-Air convection technology and six
heating elements to provide superb baking results
• Heavy-duty, full-extension racks glide smoothly in
and out on stainless steel ball bearings for easy
access, and are designed to remain in the oven
during the self-clean cycle
• LED task lights below the bullnose provide a
functional and theatrical touch
• The ceramic-infrared grill has 14,000 BTUs* of
adjustable heat. The cooking grate is grooved on
one side to create sear marks and rounded on the
other for delicate foods
• Electronic ignition with automatic reignition ensures
a continuous ame and reignites automatically if
accidentally extinguished
• Reversible burner grates are at on one side and
uniquely contoured on the other to accommodate
round-bottom woks
• A caterer's oven is uniquely sized to accommodate
three full-size sheet trays
• Halogen light columns provide a clear view,
regardless of rack position
• Model ZDP364NRPSS - Natural Gas*
• Model ZDP364LRPSS – Liquid Propane