
Pub. 42004-699L2D
GAI-Tronics Corporation 400 E. Wyomissing Ave. Mohnton, PA 19540 USA
610-777-1374 800-492-1212 Fax: 610-796-5954
VISIT WWW.GAI-TRONICS.COM FOR PRODUCT LITERATURE AND MANUALS
GAI-TRONICS® CORPORATION
A HUBBELL COMPANY
Model 709-901
SmartSeries Handset/Speaker Amplifier
TABLE OF CONTENTS
Confidentiality Notice.....................................................................................................................1
General Information.......................................................................................................................1
System Requirements and Limitations.................................................................................................1
Features and Functions ..........................................................................................................................2
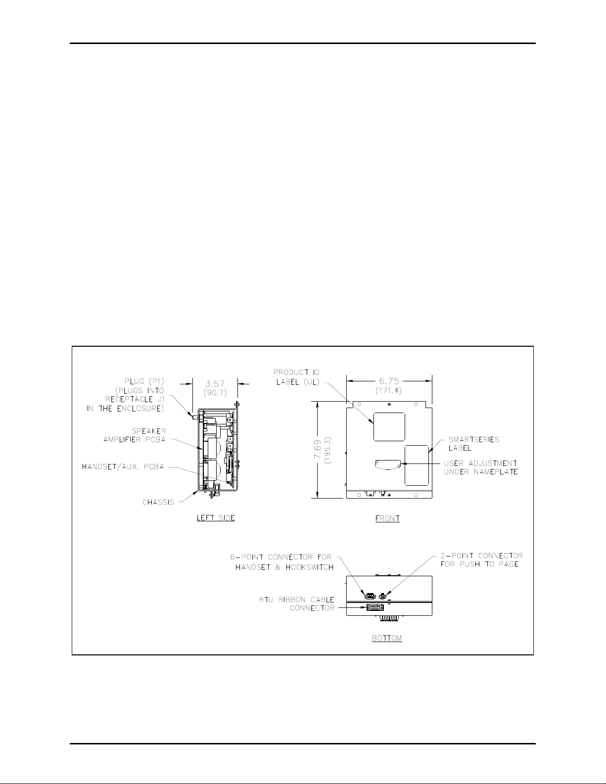
Description of Major Components........................................................................................................2
External Components............................................................................................................................................2
Internal Components.............................................................................................................................................3
Block Diagram.........................................................................................................................................4
Interfaces .................................................................................................................................................4
Installation ......................................................................................................................................5
Models 707-001-UL/EX and -EX-F07045.............................................................................................5
Models 708-001-UL/EX, -EX-F07048, 7085-001-UL/EX, -EX-F07044, 7085-004-UL/EX and -EX-
F07049......................................................................................................................................................5
Models 7085-005-UL/EX and -EX-F07050...........................................................................................6
Operation.........................................................................................................................................6
Handset Operation..................................................................................................................................6
Optional Features....................................................................................................................................7
Maintenance....................................................................................................................................7
Fuses.........................................................................................................................................................7
Adjustments.............................................................................................................................................8
Minimum Level Adjustment.................................................................................................................................8
Offset Level Adjustment.......................................................................................................................................9
VLC Level Adjustment.........................................................................................................................................9
Internal Adjustments............................................................................................................................10
Sidetone Volume and Handset Receiver Volume...............................................................................................10
Troubleshooting....................................................................................................................................11
How to Diagnose Assembly Faults.......................................................................................................12
Replacement Parts................................................................................................................................13
Specifications ................................................................................................................................14