
FRICK
QUANTUM™ COMPRESSOR CONTROL PANEL S90-010 M
MAINTENANCE Page 7
QUANTUM™ 3 CONTROLLER
WHAT SHOULD OCCUR WHEN POWERING UP
THE PANEL
The first thing that should be checked when
troubleshooting the Quantum™ is it’s powering up
sequence.
When powering up the Quantum™, the following
sequence of events are indicative of a properly working
main processor board:
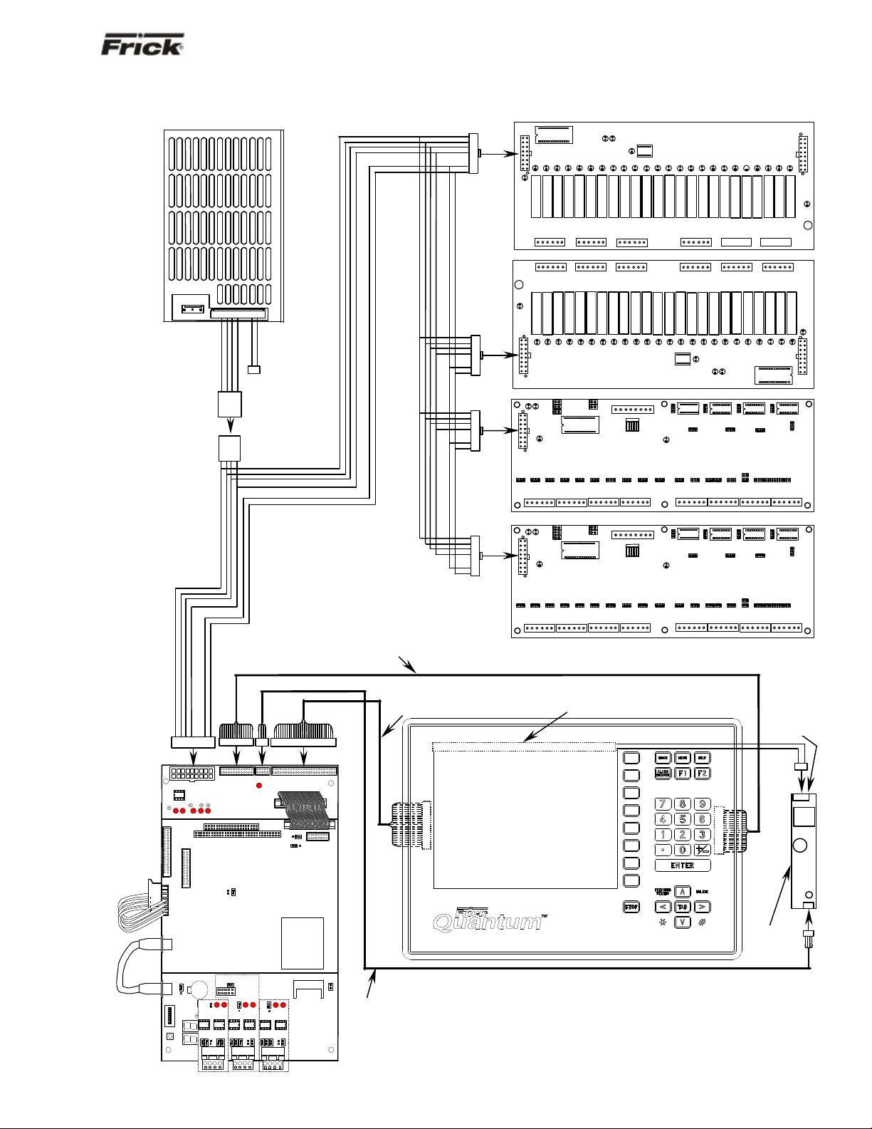
•The LED’s for +5V, +12V, and –12V will turn on
solid. (Lower left corner of Main PCB)
•LED KB will begin to blink. (Left side of Main
PCB)
•Several initialization screens will appear (these
will look very similar to the way the screen of a
desktop computer appears when it is booting.
•The last of the initialization screens is the
“System Configuration” screen.
•Various POST codes will appear.
•The screen will go then show Loading…
•The “Operating Status” screen is shown.
After the Quantum™ has properly powered up, the
following sequence of events is indicative of proper
communication to the analog and digital boards:
•The TX/RX LED’s near the white connector will
begin to blink.
•The Analog and Digital I/O boards TX/RX lights
should be blinking.
•Each I/O board should have the power LED (next
to the white connector) lighted and the “Active”
LED (next to the blue Dipswitch) should be
blinking.
WHAT IF THE “OPERATING STATUS” SCREEN
IS NOT SHOWN
If the “Operating Status” screen is not shown, check the
following items:
1. If no LED’s are lighted, then check AC and DC
power.
2. Check if the lighting of the LED’s is occurring as
described in the “What Should Occur When
Powering Up The Panel” section.
•If the powering up sequence continues to
repeat without displaying the “Operating
Status” screen, then there is a booting
problem.
3. Check if an error message is displayed when
booting.
•Be sure to write down any error messages
exactly as they appear.
4. Check that the software is OK:
•Is the correct software installed?
•Did you just install new software?
•If you need to clear the numerical setpoint
and calibration areas of memory for any
reason, clear the memory as described in
the S90-010 FSI publication. NOTE: This
information will be replaced by factory
default values, so any setpoint and
calibration data values that need to be
customized must be reentered.
5. Check for bad or loose connections.
6. Check the display. If the CPU board is booting
but you have no display, check the following:
•Check the LCD backlight tube. Look very
closely at the display to see if anything is
visible in the dark screen. Using a beam type
source of good lighting, such as a flashlight,
look for any “ghost” type image. If it appears
that there is something on the screen but
very dark, the problem maybe the LCD
backlight tube. On the LG Philips, NEC and
Sharp displays this tube is field replaceable.
On the Samsung LCD display, it is not
available and the display will have to be
replaced. There may be a sticker on the
display mounting plate. If there is, it will have
a part number that describes the type of
display. If there is no sticker, you must take
the display apart to identify the display
manufacturer.
•Verify that both the display cable and the
inverter cable are firmly seated. It may be
necessary to remove the video cable from
the back of the LCD display and reseat it to
be sure it is connected properly. Note: This
is a small connector and caution should
be observed so that it is not damaged
due to excessive force.
•Check the backlight inverter connector (P4).
When the Quantum™ board is mounted in
the panel, this connector is located at the
middle left of the board. The pins on the right
side are odd numbered, with pin P(1) at the
bottom -pin P(9) at the top. The pins on the
left side are even numbered, with pin P(2) at
the bottom - pin P(10) at the top. After the
Quantum™ has booted, pin P(3) should
measure +2.4 Vdc, pins P(4) and P(5) are
DC grounds, and pins P(6) and P(7) should
measure +12 Vdc. A bad inverter will also
cause a dark display.
•Reference the “Display Assembly
Component Replacement Guide” in the
“Identifying the Type of Display” section that
appears later in this manual, and check that
the LCD, LCD cable, and software versions
are matched correctly.