PEGASUS D
4IT cod. 3540U171 - 06/2012 (Rev. 00)
3. INSTALLAZIONE
3.1 Disposizioni generali
L'INSTALLAZIONE DELLA CALDAIA DEVE ESSERE EFFETTUATA SOLTANTO DA
PERSONALE SPECIALIZZATO E DI SICURA QUALIFICAZIONE, OTTEMPERANDO A
TUTTE LE ISTRUZIONI RIPORTATE NEL PRESENTE MANUALE TECNICO, ALLE DI-
SPOSIZIONI DI LEGGE VIGENTI, ALLE PRESCRIZIONI DELLE NORME NAZIONALI
E LOCALI E SECONDO LE REGOLE DELLA BUONA TECNICA.
3.2 Luogo d’installazione
La caldaia deve essere installata in apposito locale con aperture di aerazione verso
l’esterno secondo quanto prescritto dalle norme vigenti. Se nello stesso locale vi sono
più bruciatori o aspiratori che possono funzionare assieme, le aperture di aerazione de-
vono essere dimensionate per il funzionamento contemporaneo di tutti gli apparecchi.Il
luogo di installazione deve essere privo di oggetti o materiali infiammabili, gas corrosivi
polveri o sostanze volatili che, richiamate dal ventilatore del bruciatore possano ostruire
i condotti interni del bruciatore o la testa di combustione. L’ambiente deve essere asciut-
to e non esposto a pioggia, neve o gelo.
ASe l’apparecchio viene racchiuso entro mobili o montato affiancato lateralmen-
te, deve essere previsto lo spazio per lo smontaggio della mantellatura e per le
normali attività di manutenzione.
3.3 Collegamenti idraulici
La potenzialità termica dell’apparecchio va stabilita preliminarmente con un calcolo del
fabbisogno di calore dell’edificio secondo le norme vigenti. L’impianto deve essere cor-
redato di tutti i componenti per un corretto e regolare funzionamento. Si consiglia d’inter-
porre, fra caldaia ed impianto di riscaldamento, delle valvole d’intercettazione che
permettano, se necessario, d’isolare la caldaia dall’impianto.
BLo scarico della valvola di sicurezza deve essere collegato ad un imbuto o tubo
di raccolta, per evitare lo sgorgo di acqua a terra in caso di sovrapressione nel
circuito di riscaldamento. In caso contrario, se la valvola di scarico dovesse in-
tervenire allagando il locale, il costruttore della caldaia non potrà essere ritenu-
to responsabile.
Non utilizzare i tubi degli impianti idraulici come messa a terra di apparecchi elettrici.
Prima dell’installazione effettuare un lavaggio accurato di tutte le tubazioni dell’impianto
per rimuovere residui o impurità che potrebbero compromettere il buon funzionamento
dell’apparecchio.
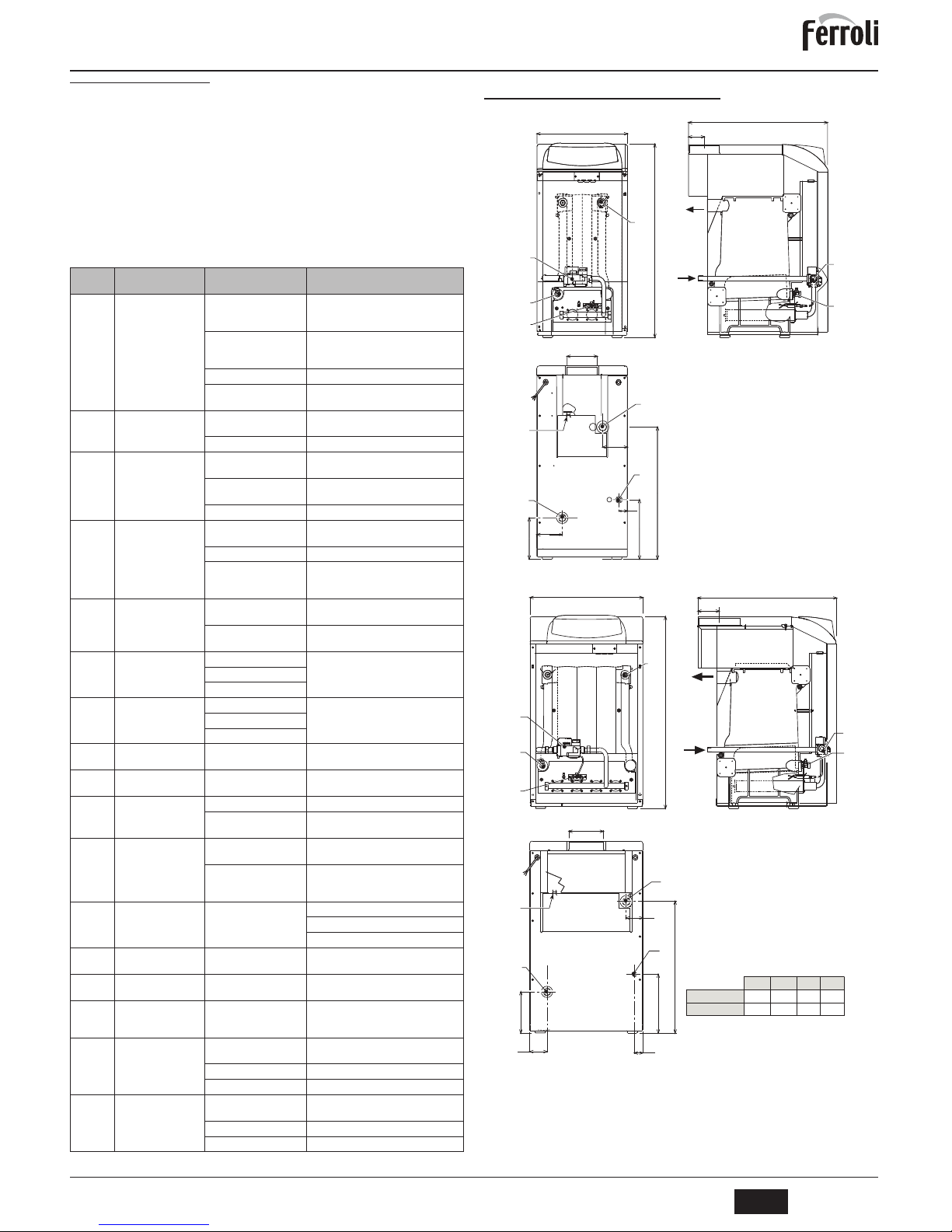
Effettuare gli allacciamenti ai corrispettivi attacchi secondo il disegno riportato al cap. 5.1
ed ai simboli riportati sull’apparecchio.
Caratteristiche dell’acqua impianto
In presenza di acqua con durezza superiore ai 25° Fr (1°F = 10ppm CaCO3), si prescrive l’uso di
acqua opportunamente trattata, al fine di evitare possibili incrostazioni in caldaia. Il trattamento
non deve ridurre la durezza a valori inferiori a 15°F (DPR 236/88 per utilizzi d’acqua destinati al
consumo umano). È comunque indispensabile il trattamento dell’acqua utilizzata nel caso di im-
pianti molto estesi o di frequenti immissioni di acqua di reintegro nell’impianto.
BNel caso in cui si installino decalcificatori in corrispondenza dell’entrata dell’ac-
qua fredda alla caldaia, prestare particolare attenzione a non ridurre eccessi-
vamente il grado di durezza dell’acqua in quanto potrebbe verificarsi un
degrado prematuro dell’anodo di magnesio del bollitore.
Sistema antigelo, liquidi antigelo, additivi ed inibitori
La caldaia è equipaggiata di un sistema antigelo che attiva la caldaia in modo riscalda-
mento quando la temperatura dell’acqua di mandata impianto scende sotto i 6 °C. Il di-
spositivo non è attivo se viene tolta alimentazione elettrica e/o gas all'apparecchio.
Qualora si renda necessario, è consentito l’uso di liquidi antigelo, additivi e inibitori, solo
ed esclusivamente se il produttore di suddetti liquidi o additivi fornisce una garanzia che
assicuri che i suoi prodotti sono idonei all’uso e non arrecano danni allo scambiatore di
caldaia o ad altri componenti e/o materiali di caldaia ed impianto. È proibito l’uso di liquidi
antingelo, additivi e inibitori generici, non espressamente adatti all’uso in impianti termici
e compatibili con i materiali di caldaia ed impianto.
Collegamento ad un bollitore per acqua calda sanitaria
La scheda elettronica dell'apparecchio è predisposta per la gestione di un bollitore ester-
no per la produzione di acqua calda sanitaria. Effettuare gli allacciamenti idraulici secon-
do lo schema fig. 14 (pompe e valvole di non ritorno devono essere fornite a parte).
Effettuare: collegamenti elettrici come indicato nello schema elettrico al cap. 5.4. E' ne-
cessario l'utilizzo di una sonda FERROLI. Il sistema di controllo caldaia, alla successiva
accensione, riconosce la presenza della sonda bollitore e si configura automaticamente,
attivando display e controlli relativi la funzione sanitario.
fig. 14 - Schema collegamento ad un bollitore esterno
Legenda
8Uscita acqua calda sanitario
9Entrata acqua fredda sanitario
10 Mandata impianto
11 Ritorno impianto
3.4 Collegamento gas
BPrima di effettuare l’allacciamento, verificare che l’apparecchio sia predisposto
per il funzionamento con il tipo di combustibile disponibile ed effettuare una ac-
curata pulizia di tutte le tubature gas dell’impianto, per rimuovere eventuali re-
sidui che potrebbero compromettere il buon funzionamento della caldaia.
L’allacciamento gas deve essere effettuato all’attacco relativo (vedi fig. 25) in conformità
alla normativa in vigore, con tubo metallico rigido oppure con tubo flessibile a parete con-
tinua in acciaio inox, interponendo un rubinetto gas tra impianto e caldaia. Verificare che
tutte le connessioni gas siano a tenuta.
La portata del contatore gas deve essere sufficiente per l’uso simultaneo di tutti gli ap-
parecchi ad esso collegati. Il diametro del tubo gas, che esce dalla caldaia, non è deter-
minante per la scelta del diametro del tubo tra l’apparecchio ed il contatore; esso deve
essere scelto in funzione della sua lunghezza e delle perdite di carico, in conformità alla
normativa in vigore.
BNon utilizzare i tubi del gas come messa a terra di apparecchi elettrici.
3.5 Collegamenti elettrici
Collegamento alla rete elettrica
BLa sicurezza elettrica dell’apparecchio è raggiunta soltanto quando lo stesso è
correttamente collegato ad un efficace impianto di messa a terra eseguito come
previsto dalle vigenti norme di sicurezza. Far verificare da personale professio-
nalmente qualificato l’efficienza e l’adeguatezza dell’impianto di terra, il costrut-
tore non è responsabile per eventuali danni causati dalla mancanza di messa
a terra dell’impianto. Far verificare inoltre che l’impianto elettrico sia adeguato
alla potenza massima assorbita dall’apparecchio, indicata in targhetta dati cal-
daia.
La caldaia è precablata e dotata di cavo di allacciamento alla linea elettrica di tipo "Y"
sprovvisto di spina. I collegamenti alla rete devono essere eseguiti con allacciamento fis-
so e dotati di un interruttore bipolare i cui contatti abbiano una apertura di almeno 3 mm,
interponendo fusibili da 3A max tra caldaia e linea. E’ importante rispettare le polarità (LI-
NEA: cavo marrone / NEUTRO: cavo blu / TERRA: cavo giallo-verde) negli allacciamenti
alla linea elettrica. In fase di installazione o sostituzione del cavo di alimentazione, il con-
duttore di terra deve essere lasciato 2 cm più lungo degli altri.
BII cavo di alimentazione dell’apparecchio non deve essere sostituito dall’utente.
In caso di danneggiamento del cavo, spegnere l’apparecchio e, per la sua so-
stituzione, rivolgersi esclusivamente a personale professionalmente qualifica-
to. In caso di sostituzione del cavo elettrico di alimentazione, utilizzare
esclusivamente cavo “HAR H05 VV-F” 3x0,75 mm2 con diametro esterno
massimo di 8 mm.
Termostato ambiente (opzional)
BATTENZIONE: IL TERMOSTATO AMBIENTE DEVE ESSERE A CONTATTI
PULITI. COLLEGANDO 230 V. AI MORSETTI DEL TERMOSTATO AMBIEN-
TE SI DANNEGGIA IRRIMEDIABILMENTE LA SCHEDA ELETTRONICA.
Nel collegare cronocomandi o timer, evitare di prendere l'alimentazione di que-
sti dispositivi dai loro contatti di interruzione. La loro alimentazione deve essere
effettuata tramite collegamento diretto dalla rete o tramite pile, a seconda del
tipo di dispositivo.
Accesso alla morsettiera elettrica
Svitare le due viti “A” poste sulla parte superiore del cruscotto e rimuovere lo sportellino.
fig. 15 - Accesso alla morsettiera
3.6 Collegamento alla canna fumaria
Il tubo di raccordo alla canna fumaria deve avere un diametro non inferiore a quello di
attacco sull’antirefouleur. A partire dall’antirefouleur deve avere un tratto verticale di lun-
ghezza non inferiore a mezzo metro. Per quanto riguarda il dimensionamento e la posa
in opera delle canne fumarie e del tubo di raccordo ad esse, è d’obbligo rispettare le nor-
me vigenti.
Il diametro del collare nell’antirefouleur è riportato in fig. 22 - fig. 23.