Eversan 9384L-9012 Manuel utilisateur

www.eversan.com
MODEL 9384L-9012
MULTI-PURPOSE
SCOREBOARD
Instruction Manual
Address: 34 Main Street, Whitesboro, NY 13492
Phone: 315-736-3967 • Toll Free: 800-383-6060 • Fax: 315-736-4058
SCOREBOARDS • TIMERS • MESSAGE SIGNS • VIDEO DISPLAYS • WIRELESS
EVERSAN
9 - 7 - 0 6
Scoreboard Rendering
Follet Higher
Education Group
The Bodnar Family
E D I T H R O B B D I X O N F I E L D

EVERSAN, INC. • 34 Main Street, Whitesboro, NY 13492 • 1-800-383-6060 Fax: 315-736-4058
www.eversan.com
Table of Contents
Check List .........................................................................................1
Installation Instructions......................................................................2
Instructions for Wiring ......................................................................2
Wireless Operation ...........................................................................3
Installation Diagram ..........................................................................4
Operating Instructions ......................................................................5
Maintenance of Outdoor Scoreboards .............................................6
Removal and Replacement Procedures ..........................................7
Cabled Console ...............................................................................8
Wireless Console .............................................................................9

Page 1
EVERSAN
EVERSAN, INC. • 34 Main Street, Whitesboro, NY 13492 • 1-800-383-6060 Fax: 315-736-4058
www.eversan.com
MODEL 9384L
MUTI-PURPOSE SCOREBOARD
These instructions must be followed to ensure correct operation. The warranty will be violated and
considered null if inspection and operating procedures are disregarded.
Should you require assistance or have any questions, please call 800-383-6060.
Check List
Model 9384 Scoreboard
Model 9012 Scoreboard (2)
Control Console with LCD readout
Two Conductor Control Cable (Cabled Systems Only)
Mounting Brackets (4)
Antenna (2) (Wireless Systems Only)
NOTE: Please check that these items are available prior to initial test of the scoreboard. If you are
missing any items, please call (800) 383-6060 for assistance.
Customer Shipping Inspection
A. Unpack scoreboard.
B. Unpack cable and control console. Plug the console cable and console into the console
connector on back (see diagram).
C. Testing - Remove four screws holding the panel on the 120VAC access box on the back of the
scoreboard. There is a standard 120VAC plug for testing. After testing cut connector provided.
Match colors on power cable provided to three wires on 120V box. This board operates on
120VAC at approximately 4 AMP.
NOTE: FAILURE TO TEST SCOREBOARD PRIOR TO INSTALLATION
WILL VOID ALL WARRANTIES.
Power scoreboard using 120VAC and test scoreboard using the operating instructions provided.
SHOULD THERE BE A MALFUNCTION OR SHIPPING DAMAGE,
NOTIFY THE SHIPPER AND EVERSAN IMMEDIATELY.

Page 2
EVERSAN
EVERSAN, INC. • 34 Main Street, Whitesboro, NY 13492 • 1-800-383-6060 Fax: 315-736-4058
www.eversan.com
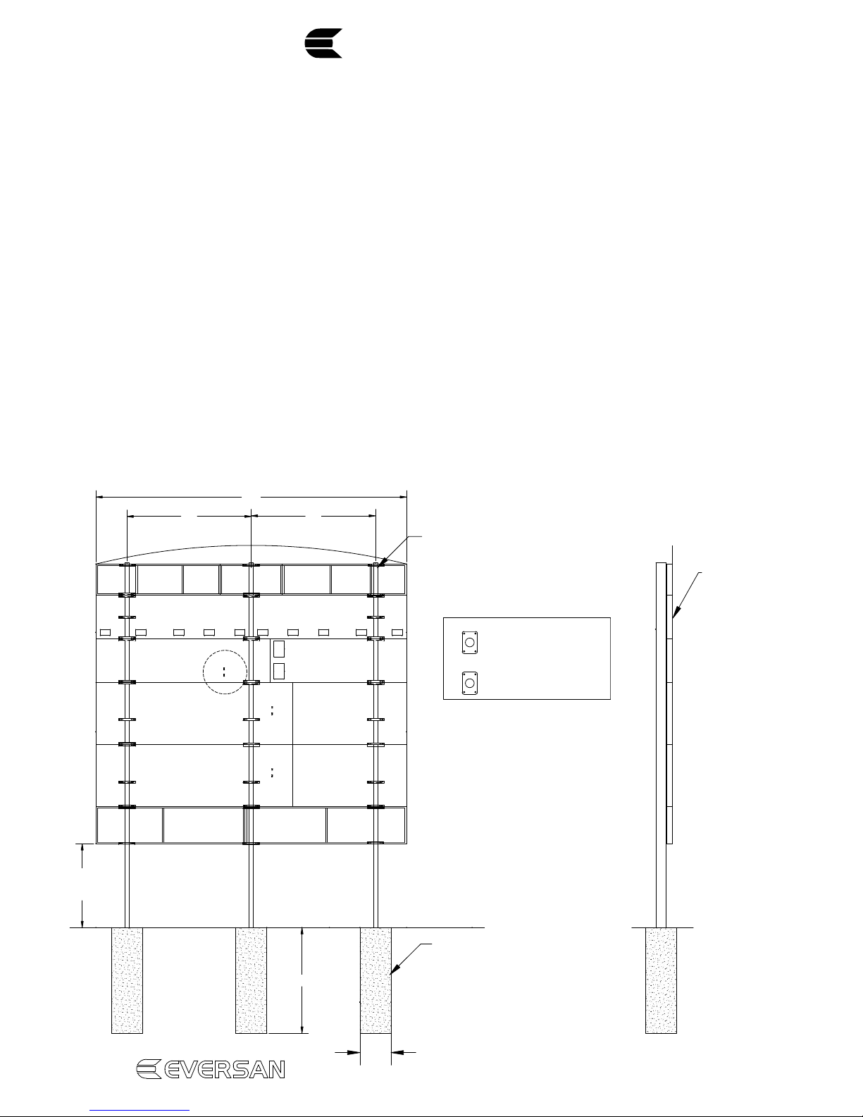
INSTALLATION
(see installation diagram)
INSTRUCTIONS FOR WIRING
1. Determine 120VAC entrance and run conduit to pre-installed electric box on back of scoreboard
(see diagram).
2. The scoreboard draws 5 amp, 600 watts, but requires its own circuit breaker. Eversan, Inc.
recommends using a 10-amp, GFCI breaker.
3. Assemble bottom 9012Plyr-Penalty panels, connect digits to Power Supply.
4. Assemble 9012 Saves/C.K./S.O.G. panels, connect digits to Power Supply.
5. Assemble 9384L connect digits to PS.
NOTE: As each section is lifted into place, drop data and power cables through bottom of
board.
4. Connect all data and power in each section of the scoreboard.
CAUTION: Cabled System Only
The data cable is a pre-wired, 2 conductor shielded, 22GA stranded cable. Any cable
splicing should be color-coded or failure of the computer power supply will result.
Continuity of the shield is essential in reducing possible damage due to lightening.
Electrical Specifications:
Electric outlets for scoreboards are always on a “clean” unused, switched breaker box. Pay close
attention to the power source and connections. It is recommended that a key-switch or switched
breaker box be used to turn off the system at the end of use each day. The scoreboard should
always be powered down when not in use.
Power up Sequence:
120VAC Operation (Cabled System)
1. Plug the control console into the scoreboard using the cable provided. Any of the 2-pin
connectors on the control console can be used. The connector for the scoreboard is located
on the back (see diagram).
2. Power up the scoreboard using 120VAC,connection on back of scoreboard (see diagram).
3. The scoreboard will now go through diagnostics. Each digit will show a dash and then
starting at the minutes each digit will show an 8 and then go blank. The scoreboard will
then stay blank until the control console is turned on.

Page 3
EVERSAN
EVERSAN, INC. • 34 Main Street, Whitesboro, NY 13492 • 1-800-383-6060 Fax: 315-736-4058
www.eversan.com
4. Turn the control console on using the rocker switch located on the upper left side. The
control console will display “WIRELESS NETWORK SYSTEM ID = NO” for approx. 5
seconds. The display will then show, ”EVERSAN, INC. SCOREBOARDS”, and then
“TIME=00:00.0 ~9, HOME=00 GUEST=00”. You are now ready to use the operating
instructions to test all the functions.
Note: If the control console will not power up or shows “BATTERY LOW” replace the
battery with a 9V alkaline battery or use the 9-volt adapter provided.
WIRELESS OPERATION
Eversan, Inc.’s 2.4GHZ frequency hopping wireless control system allows for multiple scoreboards to
be controlled separately or together within feet of each other.
Initializing the wireless system:
The following steps must be used to ensure proper communication from the 9384 wireless control
console and each scoreboard you want to control.
1. Turn the power on to each 9384 scoreboard that you want to control. The scoreboards will show a
dash in each digit location.
2. Connect the antenna, 9VDC adapter provided or optional 12-volt battery, to the 9384 wireless
control console (see diagram for proper placement).
Turn the control console on using the rocker switch located on the upper left side. The control console
will display “WIRELESS NETWORK SYSTEM ID = XX” for approx. 5 seconds. The display will then
show, ”EVERSAN, INC. SCOREBOARDS”, and then “TIME=00:00.0 ~9, HOME=00 GUEST=00”.
You are now ready to use the operating instructions to test all the functions.
BRIGHT BUTTON: Allows user to control the Brightness of the LED digits.
HORN: Allows user to sound horn.
HOME/VISITOR BUTTON: Set the HOME team or VISITOR team scores.
PERIOD BUTTON: Set or change the period of the game.
TIME BUTTON: Set or change the time on the scoreboard.
C.K. BUTTON: Allows user to set the number of corner kicks taken by each team.
SAVES BUTTON: Alllows user to set the number of saves for each team.
S.O.G. BUTTON: Allows user to set the number of Shots taken on Goal.
PLYR-PENALTY: Allows player number and penalty time to be set when a penalty is called.

Page 4
EVERSAN
EVERSAN, INC. • 34 Main Street, Whitesboro, NY 13492 • 1-800-383-6060 Fax: 315-736-4058
www.eversan.com
Operating instructions:
1. TO SET TIME: Press and release the TIME button once and enter a (4) Digit number, example
12:00 minutes would be set by pressing and releasing TIME followed by 1,2,0,0 via the 0-9
keypad.
2. TO SET THE SCORE: Press and release the HOME or VISITOR button once to increment by
one. Press and hold down to decrement. Press and release the button and enter any 2-digit
number from 0-9 on the numbered keypad, example 06 would be set by pressing and releasing
HOME or VISITOR and 0,6 using the 0-9 keypad.
3. TO SET PERIOD: Press the PERIOD (red) button once to increment by one. Press and
release the button and enter any number from 0-9 on the numbered keypad.
4. TO START THE TIME: Push GREEN STOP/GO once. To stop clock push STOP/ GO again.
5. BRIGHTNESS CONTROL: The illumination displayed by the scoreboard may be controlled by
pressing and releasing the BRIGHT button on the control console and then pressing 0-9 on the
keypad. 9 will make the scoreboard the brightest and 1 will make the scoreboard the dimmest.
Zero will blank the scoreboard, but doesn’t turn the scoreboard off.
6. TO SET CORNER KICKS: Press and release the C.K. button once to increment by one. Press
and release the button and enter any one-digit number from 0-9 on the numbered keypad.
7. TO SET SAVES: Press and release the SAVES button once to increment by one. Press and
release the button to enter any 2-digit number from the 0-9 numbered keypad. For example if
you wanted to enter a value of “26” as the number of saves for the HOME team you would press
and release the SAVES button on the left side of the console, then enter a “2”,then a “6” using
the numbered keypad.
8. TO SET SHOTS ON GOAL: Press and release the S.O.G. button once to increment by one.
Press and release the button to enter any 2-digit number from the 0-9 numbered keypad.
TIME=00:00.0 ~9
HOME=00 GUEST=0
TIME=00:00.0
HOME SHOTS ON GL=00
TIME=00:00.0
VSTR SHOTS ON GL=00
TIME=00:00.0
1ST PERIOD
TIME=00:00.0
4TH PERIOD
TIME=00:00.0
HOME SAVES=00
TIME=00:00.0
VSTR SAVES=00
TIME=00:00.0
HOME C.K. =0
TIME=00:00.0
VSTR C.K. =0

Page 5
EVERSAN
EVERSAN, INC. • 34 Main Street, Whitesboro, NY 13492 • 1-800-383-6060 Fax: 315-736-4058
www.eversan.com
9. TO SET PLAYER-PENALTY: Press and release the PLYR-PENALTY button once. Enter the
2-digit player number on the key pad then enter the 4-digit penalty time. For example if player
number 02 has a penalty and the penalty time given is 2 minutes the user would enter “0”, then
“2” on the keypad then the time would be entered as “0”, “2”, “0”, ‘0”.
Wireless Control Console Battery Operation: (Optional)
1. Turn the scoreboard power on.
2. Attach Eversan, Inc.’s special battery connector to the 4-pin connector on the back of
the wireless control console. (see diagram)
3. Connect the cigarette lighter plug into the Eversan battery pack or a car cigarette
lighter.
Care of Battery Pack
Under no circumstances should the battery pack be punctured or disassembled in any way. NEVER
insert anything into the battery receptacle except a standard cigarette lighter type plug. The battery
pack should always be stored in a fully charged condition and in a cool, dry place. When stored for a
long period of time, the battery should be charged before use.
Charging
The Battery should be charged after each use. Insert the cigarette lighter type plug of the charger into
the receptacle on the side of the battery pack. Plug the charger into any standard 120volt household
plug. Depending on the amount of drain on the battery, the following is a guide for recharging time. A
25% discharge requires 4 hours recharging. A 50% discharge requires 8 hours. A 100% discharge
requires 14 hours recharging time.
NOTE: The Battery should NOT be left in the Recharging mode for more than 24 hours as this
can damage the cell.
CAUTION: DO NOT attempt to charge this battery pack on currents other than 60-cycles 110volt/
120volt AC current. Do not attempt to use the
battery during charging.
TIME=00:00.0
HOME PLYR=00 00:00
TIME=00:00.0
VSTR PLYR=00 00:00

Page 6
EVERSAN
EVERSAN, INC. • 34 Main Street, Whitesboro, NY 13492 • 1-800-383-6060 Fax: 315-736-4058
www.eversan.com
MAINTENANCE OF OUTDOOR SCOREBOARDS
The EVERSAN Outdoor Scoreboards rugged design will provide many years of trouble free
performance.
Should you have a problem:
The EVERSAN Outdoor Scoreboard modular design allows easy removal and replacement of all key
elements. Under no circumstances will EVERSAN, INC. pay for service performed on any of our
products without expressed written notice from EVERSAN, INC. to the Service Company.
Note to the customer:
Please call our qualified service technicians if you experience any difficulties. We can assist you in
solving your problem or help in returning the section in need of repair.
REMOVAL AND REPLACEMENT PROCEDURES
Should repair become necessary the customer will note that each digit (8) is housed as an individual
item within the scoreboard.
• Determine which digit is malfunctioning by observing the check out of 8's during power up or
during operation.
To remove or replace digits:
1. REMOVE ALL POWER FROM THE SCOREBOARD.
2. Unscrew the (4) four screws that hold the digit in place and slowly pull the digit away from
scoreboard.
3. Detach the 9-pin segment data cable connector by pressing down on the top the latch on the side
of the locking connector and pulling up on the connector. The Digit is removed.
4. Take the new digit and connect the 9-pin connector in the scoreboard to the 9-pin connector on
back of digit. DO NOT FORCE.
NOTE: The connector is polarized and must be installed in only one direction.
5. Replacing the (4) four screws that hold the digit into place and test scoreboard. If problem persists
please contact Eversan, Inc.

Page 7
EVERSAN
EVERSAN, INC. • 34 Main Street, Whitesboro, NY 13492 • 1-800-383-6060 Fax: 315-736-4058
www.eversan.com
1 2 3
4 5 6
7 8 9
0
OFF ON
S.O.G. S.O.G.
BRIGHT HORN
C.KICK C.KICK
SAVES
TIME
SAVES
HOME VISITOR
STOP/GO PERIOD
MODEL 9384L-9012
BATTERY 9VDC
ADAPTOR
CENTER
POSITIVE
ANTENNA
DATA
ON OFF
PLYR-PENALTY PLYR-PENALTY
DATA
RESET
9384L-9012 WIRELESS CONTROL CONSOLE

Page 8
EVERSAN
Table des matières
Autres manuels Eversan Moniteur

























