
User Manual Table of Contents
QCL-MAN- CT2211-Aerosol-Leak-Detection-System-Rev F October 2015
Table of Contents i
Table of Contents
Section 1:Introduction ................................................................................................1
1.1Qualified personnel........................................................................................1
1.2Safety .........................................................................................................1
1.3Certifications and approvals ...........................................................................2
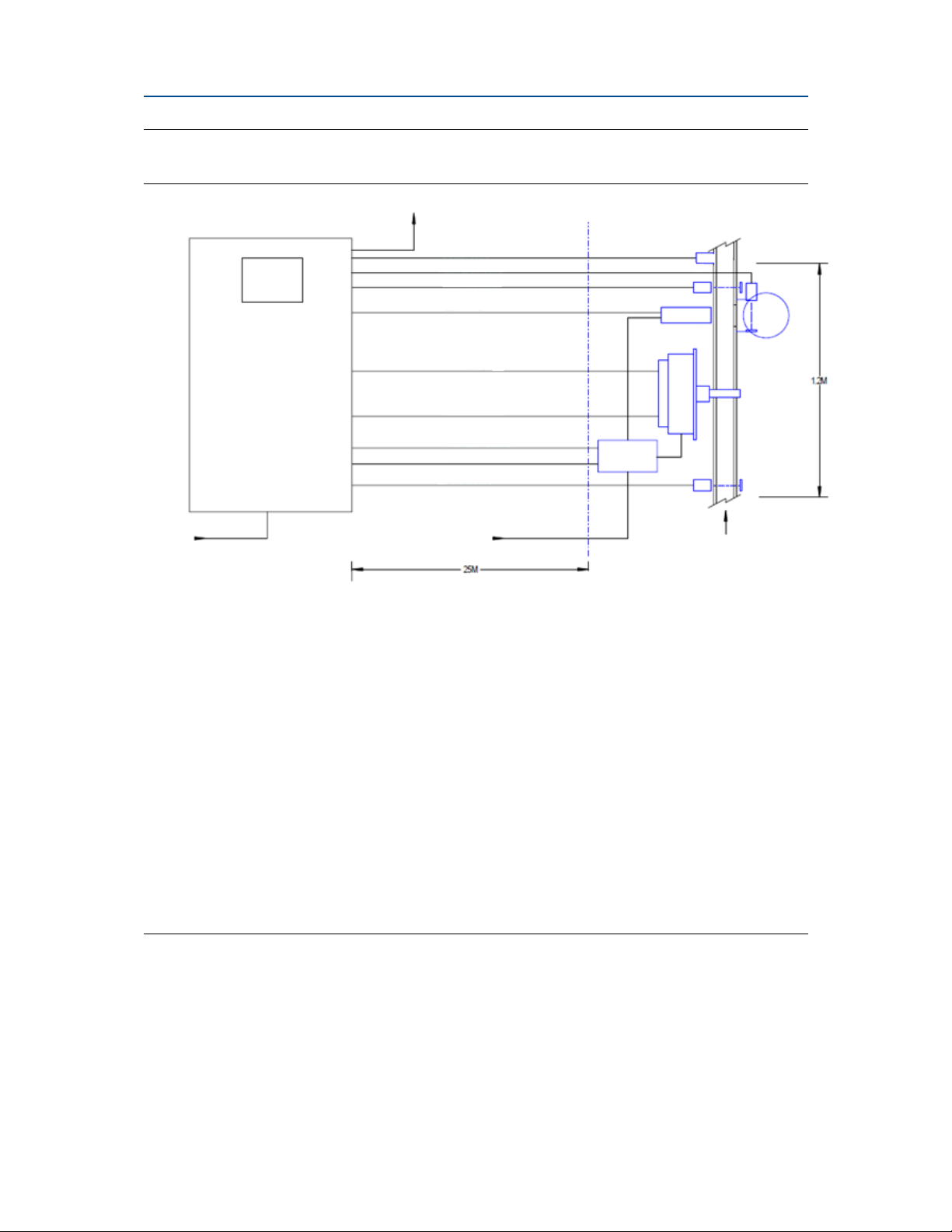
1.4System overview............................................................................................2
1.5Leak detector overview ..................................................................................5
1.6Detailed system specification.........................................................................6
1.7Operators’ system pre startup checklist .........................................................7
Section 2:System Connection......................................................................................8
Section 3:System Startup ..........................................................................................12
Section 4:Shutdown..................................................................................................14
Section 5: Operation ..................................................................................................15
5.1Software screens..........................................................................................15
5.1.1Home screen — aerosol leak detection system..............................15
5.1.2User Login screen ........................................................................16
5.1.3Program Page..............................................................................17
5.1.4Error Status page .........................................................................18
5.1.5CT2211 Main Screen....................................................................19
5.1.6CT2211 Graphs Screen ................................................................20
5.1.7Digital IO Status page ..................................................................21
5.1.8Optical Gates page ......................................................................22
5.1.9Rejector page ..............................................................................23
5.1.10Line Speed page ..........................................................................24
5.2Errors .......................................................................................................24
5.2.1Overall system healthy.................................................................24
5.2.2Leak detector (CT2211) system healthy.......................................25
5.2.3Leak detector (CT2211) laser healthy...........................................25
5.2.4Can lost .......................................................................................25
5.2.5Can found....................................................................................25
5.2.6Too many consecutive rejects......................................................25
5.2.7Reject verification........................................................................26
5.2.8Encoder error...............................................................................26
5.2.9Air sampling healthy ....................................................................26
5.2.10Bin full ......................................................................................26
5.2.11Mirror purge warning...................................................................26
5.2.12Mirror purge error........................................................................26
5.2.13Repeatable reject error ................................................................27
5.2.14Compressed air error ...................................................................27
5.2.15Error Flags 14/15 .........................................................................27
5.3Line PLC communication..............................................................................27
5.3.1Linestop (in) ...................................................................28
5.3.2System shutdown signal (in) ...........................................28
5.3.3Linestop 1 and linestop 2 (out)........................................28
5.3.4Heartbeat signal (out).....................................................28
5.3.5Reject counter pulse (out) ..............................................28
5.4Control system programs.............................................................................29
5.4.1Add Programs.................................................................30
Section 6:Maintenance..............................................................................................31
6.1Schedule......................................................................................................31
6.1.1Daily...............................................................................31
6.1.2Weekly ...........................................................................31