
CARATTERISTICHE TECNICHE DELL’ALIMENTATORE Art. 931A
Alimentatore con custodia in materiale termoplastico grigio, predisposto per mon-
taggi su quadri con barra DIN ad omega con un ingombro di 8 moduli oppure con
fissaggio a parete tramite tasselli.
L’alimentatore è munito di un doppio generatore di nota elettronico che si sostitu-
isce alla tradizionale chiamata in alternata su ronzatore o campanello. Il segnale
sonoro dispone di due tonalità differenziate (presenti ai morsetti C1-C2) permet-
tendo così l’individuazione immediata del punto da cui si effettua la chiamata
(ingresso principale, cancello, garage, ecc.); ciò permette di utilizzare per la dif-
fusione del suono un unico altoparlante incorporato nel citofono stesso.
L’utilizzo del morsetto C1 come comune pulsanti per le chiamate da targa per-
mette l’attivazione di un segnale sonoro nella targa stessa nel momento in cui si
effettuano le chiamate verso i citofoni. Inoltre questo alimentatore è stato predis-
posto per il funzionamento con citofoni per chiamata in alternata; per tale utilizzo
è necessario utilizzare il morsetto CP come comune pulsanti per le chiamate da
targa. Anche in questo caso il morsetto CP determina un segnale sonoro in targa.
PRINCIPIO DI FUNZIONAMENTO
Con questo alimentatore si possono realizzare due tipi di impianto:
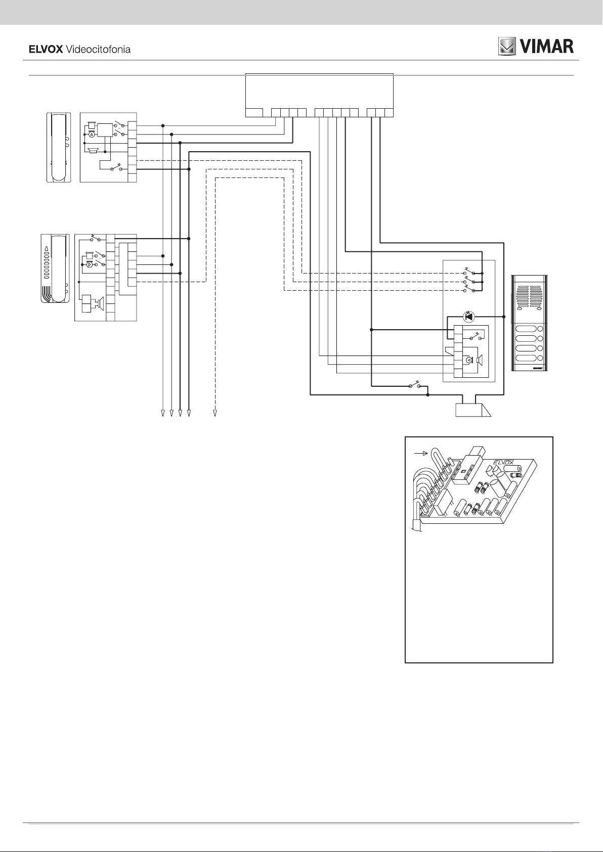
1) Comunicazione semplice tra i citofoni interni e il posto esterno (Art. 930).
Schemi c3693, c3694.
2) Comunicazione tra il posto esterno (Art. 930) e i citofoni interni con segreto
di conversazione tra utente e utente. In questo caso solamente il citofono
chiamato dal posto esterno è abilitato alla conversazione e all’apertura del-
l’eventuale serratura. Schema c3762, c3763.
TECHNICAL CHARACTERISTICS OF POWER SUPPLY ART. 931A
Power supply in grey ABS housing; preset for mounting on cases with DIN
8-module support or with expanding plugs with screws.
This power supply features a dual electronic tone generator which replaces the
traditional alternating current call on a buzzer or bell. The sound signal has
two different tones (on terminals C1-C2), enabling users to immediately iden-
tify which point is calling (main entrance, gate, garage, etc.). This solution also
makes it possible to use a single loudspeaker built into the phone itself to pro-
duce the sound. The use of C1 terminal for push-buttons commun wire for calls
coming from the panel enables the activation of an acoustic signal in the same
panel when calls are made to the interphones.
Furthermore, this power supplier has been preset for operation with interphones
with A.C. call; for such purpose terminal “CP” must be used as push-buttons
“commun” terminal for calls from the door entry panel, which also routes an
acoustic sound to the panel.
OPERATING INSTRUCTIONS
This power supply can be used for two types of systems:
1) Simple communication between the inside phones and outdoor unit (Art.
930). Diagram c3693, c3694.
2) Communication between the speech unit (Art. 930) and inside phones with
conversation privacy between users. In this case only the phone called from
the outdoor unit is enabled for conversation and release of the lock, if any,
on the door. Diagram c3762, c3763.
CARACTÉRISTIQUES TECHNIQUES DE L’ALIMENTATION ART. 931A
Alimentation avec boîtier en matière thermoplastique grise; prédisposée pour
montages su barre DIN à 8 modules ou pour le montage à paroi avec vis à
goujons.
Grâce à cet alimentation, on peut réaliser deux types d’installation:
L’alimentation est dotée d’un double générateur de note électronique qui rem-
place l’appel traditionnel en courant alternatif sur ronfleur ou sonnette. Le signal
sonore dispose de deux tonalités différenciées (présentes aux bornes C1-C2),
ce qui permet d’identifier immédiatement l’endroit d’ou l’appel est effectué (en-
trée principale, grille, garage, etc.) et d’utiliser un seul haut-parleur incorporé
dans l’interphone lui-même pour la diffusion du son.
L’emploi de la borne C1 comme commun boutons-poussoirs pour les appels
depuis la plaque de rue permet l’activation d’un signal sonore dans la même
plaque de rue au moment dans lequel on effectue des appels vers les postes
d’appartement. De plus, cette alimentation a été predisposée pour le fonctionne-
ment avec postes d’appartement avec appel en C.A.; pour cet emploi il est
nécessaire d’utiliser la borne CP comme commun boutons-poussoirs pour les
appels depuis la plaque de rue, laquelle determine aussi un signal sonore sur
la plaque de rue.
INSTRUCTIONS POUR LE FONCTIONNEMENT
1) Communication simple entre les interphones intérieurs et le poste extérieur
(Art. 930). Schéma c3693, c3694.
2) Communication entre le poste extérieur (Art. 930) et les interphones in-
térieurs avec secret de conversation entre les utilisateurs. Dans ce cas,
seul l’interphone appelé du poste extérieur est habilité à la conversation et
à l’ouverture de l’éventuelle gâche. Schéma c3762, c3763.
TECNISCHE DATEN DES NETZGERÄTS ART. 931A
Netzgerät mit graues ABS-Gehäuse. Vorbereitet für Montage auf DIN-Schiene
oder Wandmontage mit Schrauben and Dübeln.
Mit diesem Netzgerät können zwei Anlagentypen aufgebaut werden:
Das Netzgerät ist mit einem Doppeltonerzeuger ausgestattet, der das her-
kömmliche Wechselstrom-Rufsystem mit Summer oder Läutwerk ersetzt. Das
Tonsignal verfügt über zwei unterschiedliche Tonhöhen (an den Klemmen C1-
C2), so daß sofort die Herkuftsstelle des anrufes feststellbar ist (Haupteingang,
Tor, Garage usw.). Für die Ausgabe des Tones kann ein einziger Lautspre-
cher verwendet werden, der im Haustelefon eingebaut ist. Die Verwendung der
C1 Klemme für den Tastengemeinsamdraht für ankommende Rufe aus dem
Klingeltableau ermöglicht die Aktivierung eines akustischen Signals als Rufe zu
den Haustelefonen durchgeführt werden. Außerdem ist dieses Netzgerät vorbe-
reitet für Betrieb mit Wechselstromrufhaustelefonen; zum diesem Zweck ist die
“CP” Klemme für Rufe aus dem Klingeltableau wie Tastengemeinsamklemme zu
benutzen, die wird auch einen akustischen Signal zum Klingeltableau senden.
FUNKTIONWEISE
1) Einfache Kommunikation zwischen den Haustelefonen und der Außenstelle
(Art. 930). Schaltplan c3693, c3694.
2) Kommunication zwischen der Außenstelle (Art. 930) und den Haustelefonen
mit Mithörschutz. In diesem Fall ist nur das Haustelefon, das von der Außen-
stelle angerufen worden ist, für das Gespräch und die eventuelle Türöffnung
freigegeben. Schaltplan c3762, c3763.
CARACTÉRISTICAS TECNICAS DEL ALIMENTADOR ART. 931A
Alimentador con mueble en material termoplástico gris, predispuesto para mon-
taje con barra a omega con dimensiones de 8 módulos, o también con fijación
a pared por medio de tacos. Con este alimentador se pueden realizar dos tipos
de instalaciones:
El alimentador está provisto de doble generador electrónico de nota que rem-
plaza la tradicional llamada en alterna sobre zumbador o timbre. La señal
acústica tiene dos tonalidades distintas (presentes en los bornes C1 - C2) per-
mitiendo así la individuación inmediata del punto desde el cual se efectúa la
llamada (entrada principal, reja, garage, etc.), esto permite de utilizar para la
difusión del sonido un único altavoz incorporado en el mismo teléfono.
La utilización del borne C1 para el hilo común pulsadores para las llamadas
desde la placa permite la activación de una señal sonora en la misma placa
en el momento en que se efectúan llamadas hacia los interfonos. Además este
alimentador ha sido predispuesto también para el funcionamiento de interfonos
con llamada en alterna; para este uso hay que utilizar el borne CP como común
pulsadores para las llamadas desde la placa, lo cual también determina una
señal sonora en la placa.
PRINCIPIO DI FUNCIONAMENTO
1) Comunicación sencilla entre teléfonos internos y el aparato externo (Art.
930). Esquema c3693, c3694.
2) Comunicación entre aparato externo (Art. 930) y los teléfonos internos con
secreto de conversación entre usuario y usuario. En este caso solamente el
teléfono llamado desde el aparato externo está abilitado a la conversación
y eventualmente a la apertura de la cerradura. Esquema c3762, c3763.
CARACTERÍSTICAS TÉCNICAS DO ALIMENTADOR ART. 931A
Alimentador com caixa em material termoplástico cinzento: preparado para mon-
tagem em quadros com calha DIN com ocupação correspondente a 8 módulos
ou para fixação à parede através de parafusos. Com este alimentador podem-se
efectuar dois tipos de instalações:
O alimentador está equipado com um gerador duplo de chamada electrónico que
substitui as tradicionais chamadas por besouro ou campaínha.
O sinal sonoro dispõe de dois toques diferentes (bornes C1-C2) que permitem
assim identificar a proveniência da chamada (entrada principal, portão, garagem,
etc.), quer dizer, permite utilizar, para a emissão do toque, apenas um altifalante
incorporado no telefone.
A utilização do shunt C1 para o fio comum botões para as chamadas da placa
permete a activação dum sinal sonoro na mesma botoneira no momento em que
efectuan-se chamadas para os interfones. Além disto este alimentador foi pre-
disposto para o funcionamento com interfones para chamada em alterna; para
este uso è necessario utilizar o shunt CP como comum botões para chamadas
da botoneira, o que também determina un sinal sonoro na botoneira.
PRINCIPIO DI FUNCIONAMENTO
1) Comunicação entre os telefones internos e o posto externo (Art. 930). Es-
quema c3693, c3694.
2) Comunicação entre o posto externo (Art. 930) e os telefones internos com
segredo de conversação entre utente e utente.
Neste caso somente o telefone chamado do posto externo tem possibil-
idades de efectuar a conversação de abrir um possível trinco. Esquema
c3762, c3763.
PTES
DE
FR
EN
IT
PTESDEFRENIT
2
931A