Electrolux Cold Rooms
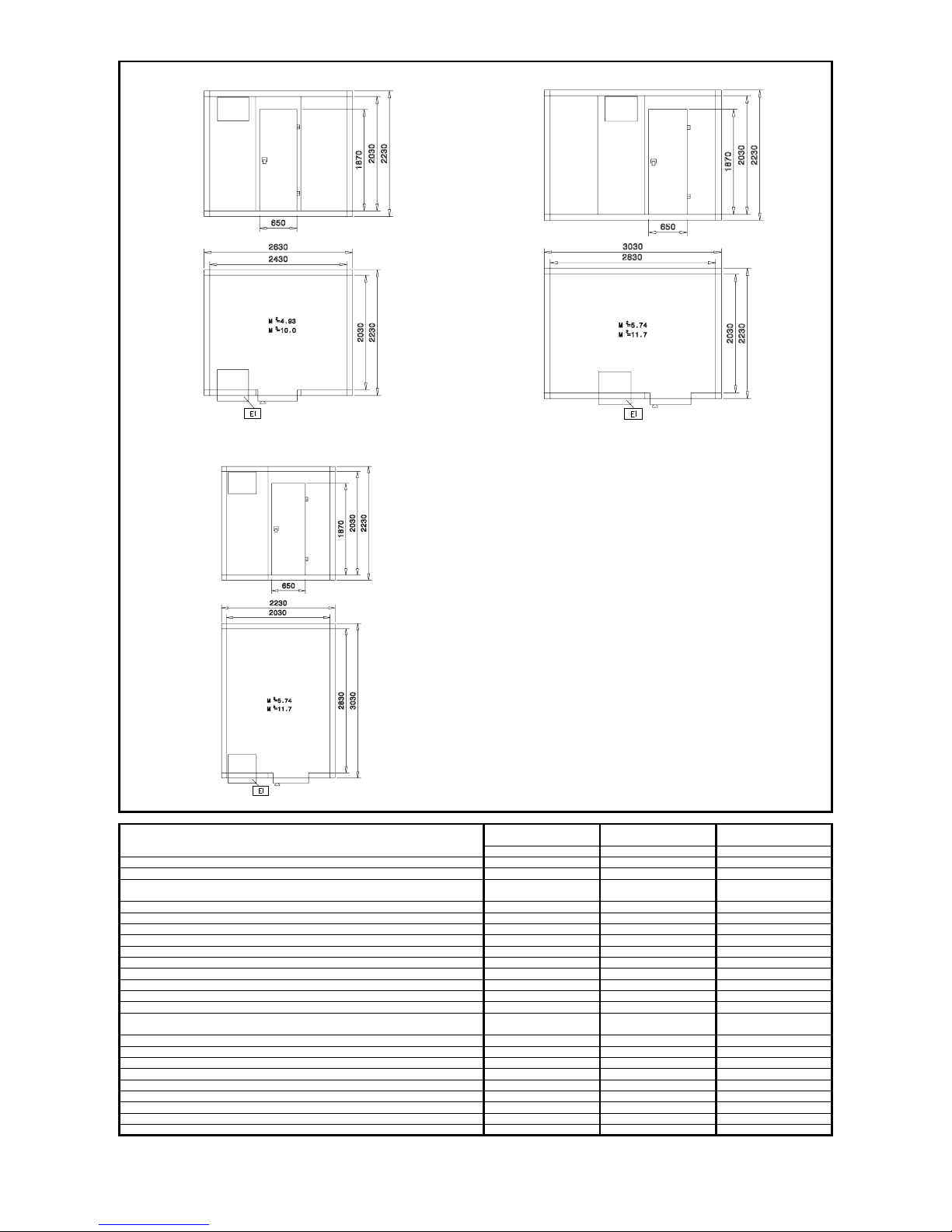
-18/-20º - 10/11,7 m³ - Split unit
Electrolux cold rooms are available in a vast range of different sizes and functionalities. They are designed to
work in tropical temperatures (+43ºC). The range consists of coolers (-2/+2°C) with panels 60 mm in thickness,
freezer cold rooms (-18/-20ºC) with panels 100 mm in thickness and with built-in or remote refrigerating unit.
The three models detailed on this sheet are split unit freezers cold rooms with usable volume of 10 to 11,7
cubic meters. Models come with panels, gas pre-charged cooling unit and piping.
Shelving as accessory
CONSTRUCTION
• Very short assembly time. Expert
refrigeration knowledge is not required
for installation.
• New vacuum injection technology
which permits to have significant
enhancement on the performances of the
panels and high quality.
• Panels are cladded inside and outside
with anti-scratch prepainted galvinized
steel. Polyurethane foam insulation. CFC
and HCFC free.
• Rounded internal and external corners.
All edges are radiused.
• Anti-slip walk-in floor.
• The fast-fit centering system allows
perfect alignment of the panels. These
new fasteners are made of high resistant
composite materials and guarantee
perfect grip of all components.
• Airtight panels connection. All sides of
panels have PVC gasket foamed in place
to assure airtight and secure fitting. Any
other sealing between panels on site is
eliminated.
• The refrigeration unit is mounted on a
modular panel for easy installation and
quick set-up of the cold room. All the
refrigeration units are tropicalized (+43°C)
and use R404A refrigerant and are
supplied with a high/low temperature
alarm.
• If the floor on which the cold rooms will
be installed presents irregularities or
unevenness up to 1 cm, then the surface
of the floor should be levelled.
PERFORMANCES
• Defrosting through heated gas with
re-evaporation of defrosting water
permits to reduce the total power
installed, shorten defrosting time and
limit the warming of the cold room.
• All models are equipped with internal
lighting (waterproof IP54) mounted on the
refrigerating unit panel.
• The control panel includes: luminous
ON/OFF switch, internal lighting switch,
cold room functioning indicator, defrost
cycle indicator, temperature and
thermostat control with digital display.
• The right-hinged door is available as
standard (left-hinged door on request)
and constructed with smooth rounded
profiles, cam-lift action hinges, airtight
magnetic gasket and high insulation thus
allowing to reduce energy and operating
costs.
• Newly designed handle complete with
lock and interior safety release to prevent
entrapment when the door is accidentally
locked from outside.
• HACCP monitoring is possible trough a
serial port supplied on all models.
• Conform to ruling European safety and
hygiene standards and H marked.