
Approval: ___________________________________________
584139 (WKGROAOOOO) S90 Gas Pasta Cooker,
10.5 gal well, island,
1 side operation
Item No. ___________________________________
Unit to be Electrolux S90 Gas Pasta Cooker, 10.5 gal (40 liters)
well. Unit to have high efficiency 49,000 BTU (14.3kW) burners.
Unit to be installed in central island type installations with operation
from one side. The unit shall feature constant water level refill and
starch removal during cooking process. The 10.5 gallon tank is
pressed in 316 type stainless steel and features only rounded cor-
ners. Body and base of unit entirely in 304 type stainless steel. Unit
shall have heavy duty 304 type stainless steel internal frame.
“Lasertec” connection system permits units to be connected to each
other creating a seamless work top.
Covered by Electrolux Platinum Star® Service Program two-year
parts and one-year labor warranty, installation start-up and
performance check-up after one year from installation.
Short Form Specification
Electrolux Professional, Inc.
www.electroluxusa.com/professional
3225 SW 42nd Street, Fort Lauderdale, Florida, 33312 • Telephone Number: 866-449-4200 • Fax Number: 954-327-6789
ITEM # _______________________________________________
MODEL # _____________________________________________
PROJECT NAME # ______________________________________
SIS # _________________________________________________
AIA # _________________________________________________
Modular Cooking Range Line
S90 Gas Pasta Cooker,
10.5 gal, Island, 1 Side
Main features
• Unit for island type installation with operations by chef from one side.
• In addition to cooking pasta, the appliance can be used for noodles of
every kind, rice, dumplings, vegetables and soups for large or small
servings.
• Water basin in 316 type stainless steel.
• Water basin is seamlessly welded into the top of the appliance.
• Water temperature controlled by an energy controller.
• Drainage surface is provided on which baskets can be placed for draining
purposes.
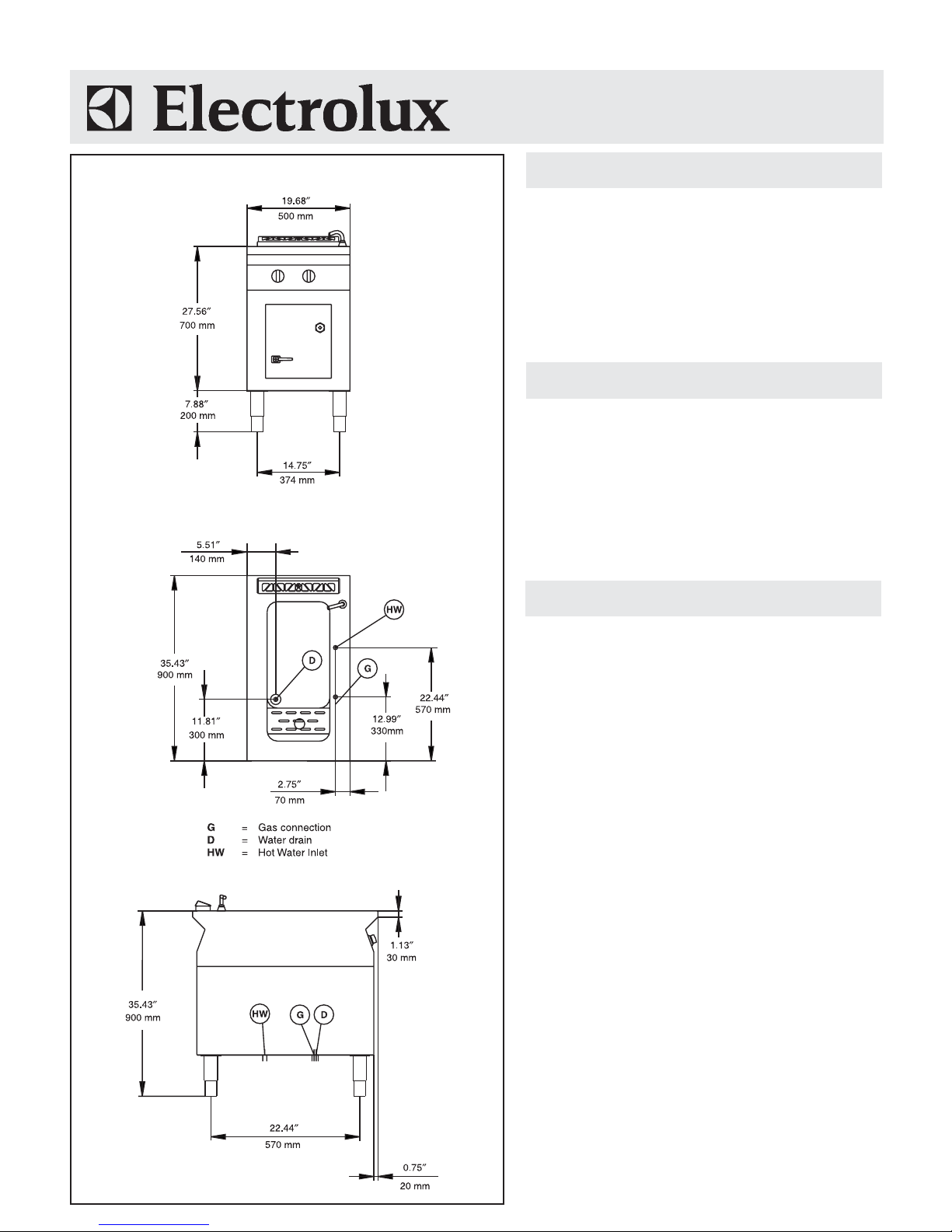
• 10.5 gal (40 liters) water basin.
• 9-position energy regulator.
• 3-position water fill regulator.
• Constant water level refill.
• Automatic starch removal function during cooking: improved water quality
over time.
• Automatic low-water level shut-off: no accidental over-heating.
• All major compartments located in front of unit for ease of maintenance.
• Piezo spark ignition with thermocouple for added safety.
• Heavy duty internal frame 304 type stainless steel.
• “Lasertec connection system” creates seamless work top when units are
connected to each other.
• Unit delivered with four 7-7/8″(200 mm) legs as standard (all round
stainless steel kick plates as option).
Optional Accessories
• Left side stainless steel 0.118″(3 mm) panel.
• Right side stainless steel 0.118″(3 mm) panel.
•5″(130 mm) portioning shelf.
•7.8″(200 mm) portioning shelf.
• All round stainless steel kick plates.
• Round baskets for pasta cookers.
• Bottom plate for round basket support.
• Basket (11″x 18″) for pasta cookers.
• Basket (11″x 9″) for pasta cookers.
• Basket (11″x 6″) for pasta cookers.
• Closing cover for pasta cookers.
Modular Cooking Range Line
S90 Gas Pasta Cooker, 10.5 gal, Island, 1 Side
Modular Cooking Range Line
S90 Gas Pasta Cooker,
10.5 gal, Island, 1 Side