
Approval: ___________________________________________
506031 (WT830H208U) Electric Pot and Pan Washer
high opening– 208 V
506032 (WT830H240U) Electric Pot and Pan Washer
high opening – 240 V
Item No. ___________________________________
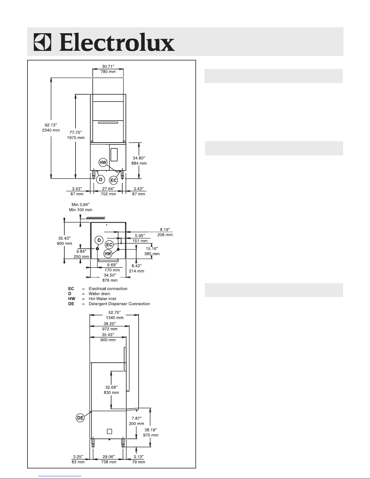
Unit to be Electrolux WTH830 Hot Water Sanitizing High Open-
ing Pot and Pan Washer. Electrical characteristics to be
____ 208 V or ____ 240 V three phase operation with three
automatic cycles of 6, 10 and 15 minutes using 1.6 gallons of
fresh 180 °F final rinse water per cycle. Rinse temperature and
rinse pressure guaranteed by built-in hot water booster heater
and built in rinse water booster pump. Washing performance is
guaranteed by a 3.5 HP wash pump, upper and lower revolving
washing spray arms as well as lateral spray arms. Wash water
pressure can be regulated between top and bottom washing
arms. 304 stainless steel construction to include frame, wash
tank, booster tank and side panels.
Covered by Electrolux Platinum Star® Service Program two-year
parts and one-year labor warranty, installation start-up and per-
formance check-up after one year from installation.
Short Form Specification
Electrolux Professional, Inc.
www.electroluxusa.com/professional
10200 David Taylor Drive, Charlotte, NC 28262 • Telephone Number: 866-449-4200 • Fax Number: 704-547-7401
ITEM # _______________________________________________
MODEL # _____________________________________________
PROJECT NAME # ______________________________________
SIS # _________________________________________________
AIA # _________________________________________________
Warewashing High Opening
Hot Water Sanitizing Pot and
Pan Washer – 34.50″ WT830
Main features
• Built-in booster heater sized to raise incoming 120 °F water to 180 °F
for sanitizing rinse. No external booster heater required.
• Unique temperature interlock guarantees required sanitizing temperatures
thereby ensuring that NSF mandated temperatures are maintained.
• Built in booster combined with the rinse booster pump for perfect rinsing
performance in terms of sanitization, energy savings (water temperature
always constant during rinse cycle), independent from water pressure of
the network.
• Requires only 1.6 gallons of water per cycle.
• 4 washing programs 6, 10 or 15 minute as well as continuous wash cycle.
• Maximum 10 cycles per hour on 6 minute cycle.
• 304 stainless steel construction to include frame, wash tank, booster tank
and side panels.
• Revolving stainless steel wash/rinse arms above and below the rack.
• Wash and rinse arms easy to remove without the use of a tool.
• Wash water pressure can be regulated between top and bottom wash arms.
• Side washing arms for extra washing performance.
• Side washing arms, easily removable for cleaning.
• Smooth surfaces and wash tank with rounded corners to facilitate cleaning.
• Primary and secondary strainers for enhanced particle filtering, easy to
remove without having to remove wash and rinse arms.
• Self cleaning cycle.
• High opening 32.69″doors for extra large washing needs.
• Easy access to wash chamber thanks to 180° front opening door.
• Requires limited space for opening thanks to the cantilevered 2 part door.
• Double skin construction with sound insulation for quiet operation.
• State of the art electronic controls with built in programming, self
diagnostic for serviceability.
• Digital read out keeps operator informed as to cycle status and
temperatures.
• Element protection from dry fire and low water.
• Pre arranged for automatic detergent dispensers.
• Height adjustable feet.
• Stainless steel basket for pots and pans included.
• Sheet pan insert included for 3 full size sheet pans.
• Low noise level.
• 97% recyclable by weight.
Warewashing High Opening
Hot Water Sanitizing Pot and Pan Washer – 34.50″WT830
Warewashing
High Opening Hot Water Sanitizing
Pot and Pan Washer – 34.50″ WT830