6
HUMIDI-TECH piping
Water makeup piping may be of any code-
approved material (copper, steel, or plastic). The
final connection size is DN10 (3/8"). In cases where
water hammer may be a possibility, a shock arrestor
should be considered. Water pressure must be
between 175 kPa and 550 kPa.
Drain piping may be of any code-approved material
(copper, steel, or plastic rated for 100 °C minimum).
If drainage by gravity is not possible, use a small lift
pump (DRI-STEEM Part No. 400281).
The final connection size is DN20 (3/4") for tank and
frame drains. This connection size should not be
reduced. (See figures on the following pages for
proper drain piping configurations.) The tank drain
should be piped separately from the frame drain, as
shown, to prevent backflow of drain water into the
humidifier cabinet.
Install a union in the water supply line as shown
in the drawings on the next two pages to allow
tank removal.
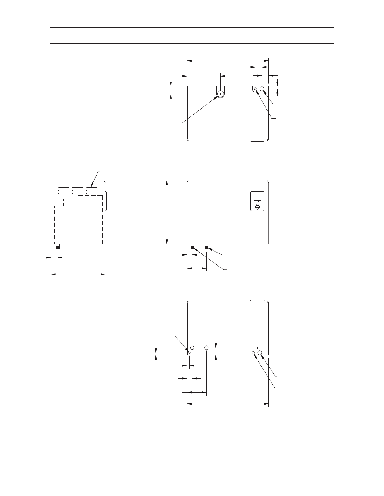
Locating and mounting the humidifier
The HUMIDI-TECH humidifier is designed to attach
to the wall with coach screws, and it should be
installed in a space located near an air duct system.
Consider the following when selecting the location of
the humidifier:
• Convenient access to duct
• Electrical and plumbing connections
• Required clearances
• External water seal requirements
Electrical power supply, water makeup piping and
drain piping must also be considered. Electrical
power supply connections are made at the lower or
upper right rear corner of the unit. Water makeup
and drain piping connections are made at the lower
left rear corner.
When mounting on a stud wall (studs with 406 mm
centres), locate studs and position coach screws in
place so that each of the screws (406 mm apart) will
center on a stud. Mark hole locations and predrill
6 mm diameter pilot holes using mounting template
on the HUMIDI-TECH box. Secure frame to wall with
coach screws provided.
For hollow block or poured concrete wall mounting,
position template in place and mark the holes. Drill
appropriate pilot hole for two 10 mm toggle bolts or
two 10 mm machine bolt lead anchors. Secure frame
in place.
HUMIDI-TECH®MOUNTING AND PIPING
Clearance recommendations
For recommended service and maintenance
purposes, maintain the following clearances:
Top: 460 mm
Floor: 610 mm
Supporting
wall
Left side:
305 mm
DC-1201
Right side electrical
controls: 915 mm
Front: 915 mm
Secured to
supporting
wall
To dispersion
unit
VM99-C-0302-M-0302.pdf 6 11/19/2009 9:51:07 AM