
2www.dimplex.com
Conventions used in this manual:
!NOTE: Procedures and techniques that are considered important enough to emphasize.
CAUTION: Procedures and techniques which, if not carefully followed, will result in damage to the equipment.
WARNING: Procedures and techniques which, if not carefully followed, will expose the user to the risk of re, serious
injury, or death.
Table of Contents
Exploded Parts Diagrams ......................................................3
OLF46-AM Replacement Parts List ................................................3
Exploded Parts Diagrams ......................................................4
OLF66-AM Replacement Parts List ................................................4
Exploded Parts Diagrams ......................................................5
OLF86-AM Replacement Parts List ................................................5
Exploded Parts Diagrams ......................................................6
Module ......................................................................6
Module Replacement Parts List ...................................................6
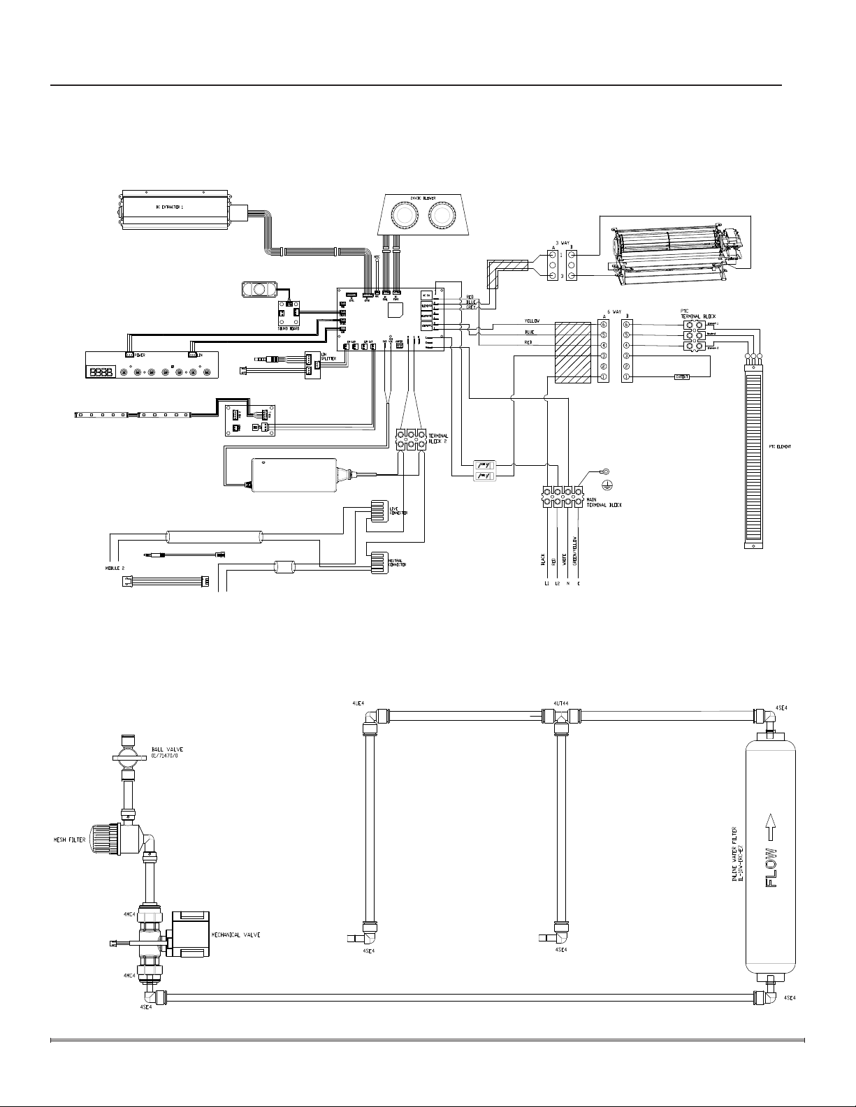
Wiring Diagrams ..............................................................7
Module ......................................................................7
Wiring Diagrams ..............................................................8
OLF46-AM ...................................................................8
Wiring Diagrams ..............................................................9
OLF66-AM ...................................................................9
Wiring Diagrams .............................................................10
OLF86-AM ..................................................................10
Replacement Part Procedures .................................................11
Preparing for Service ..........................................................11
Heater Assembly Replacement ..................................................12
Extractor Fan Replacement .....................................................13
Main Control Board Replacement ................................................14
LED Driver Board Replacement ..................................................14
Hidden Touch Controls/Housing Replacement ......................................15
Power Adaptor Replacement ....................................................16
Sound Board and Speaker Replacement...........................................17
Top LEDs Replacement ........................................................18
LIN Splitter Board Replacement..................................................18
Module Replacement ..........................................................19
Module Terminal Block Replacement .............................................20
Module Fan Assembly Replacement ..............................................21
Module Fused Wire Harness Replacement .........................................22
Module Water Level Sensor Replacement ..........................................23
Module Main Control Board Replacement..........................................24
Module Heating Element Replacement ............................................25
Module Power Supply Replacement ..............................................26
Module Solenoid Valve Replacement..............................................27
Troubleshooting & Error Codes.................................................28