After Sales Service
Your product is guaranteed for two years from the date of purchase.
Within this period, we undertake to repair or exchange this product free of charge (subject to availability) provided it has been installed and
operated in accordance with these instructions. Your rights under this guarantee are additional to your statutory rights, which in turn are not
affected by this guarantee.
Should you require after sales service you should contact our customer services help desk on 0845 600 5111. It would assist us if you can
quote the model number, date of purchase, and nature of the fault at the time of your call. The customer services help desk will also be able
to advise you should you need to purchase any spares.
Please do not return a faulty product to us in the first instance as this may result in loss or damage and delay in providing you with a
satisfactory service.
Please retain your receipt as proof of purchase.
Glen Dimplex UK Ltd
Millbrook House
Grange Drive
Hedge End
Southampton
SO30 2DF
Customer Help Line
Tel: (0845) 600 5111
Fax: (01489) 773050
E-mail: customer.services@dimplex.co.uk
Web-site: www.dimplex.co.uk
Republic of Ireland Tel: 01 842 4833
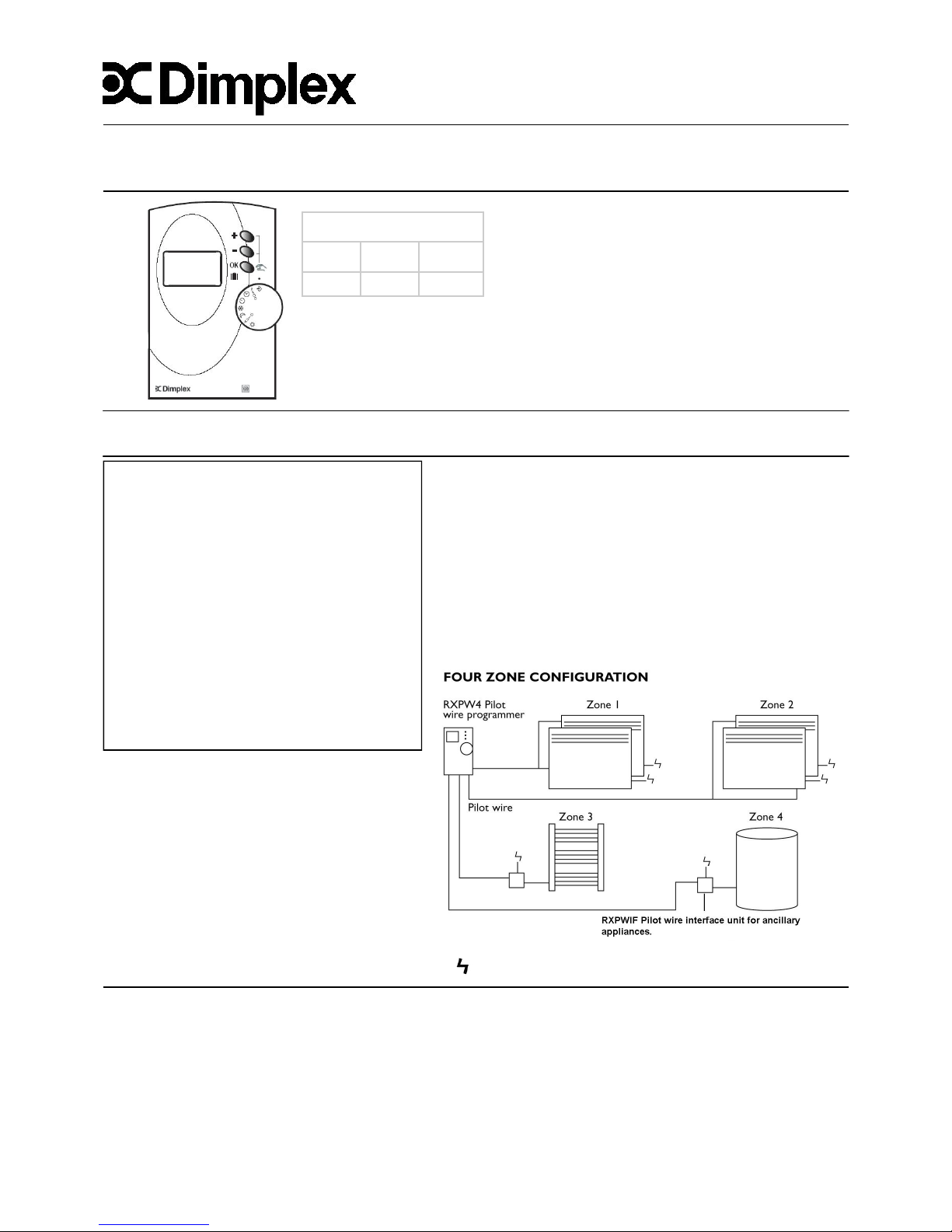
Overriding the daily program
When the programmer is in Auto mode, the setting of each zone can be temporarily overridden.
With the dial in the Auto position:
1. Press the ‘OK’ button, the bar(s) above zone 1 will flash.
2. Change the status of zone 1 by pressing the ‘+’ and ‘-’ buttons. Zone 1 will change between 1 and 4 bars (see Fig.10 and Table 5)
3. Press ‘OK’ to confirm, the bar(s) for zone 2 will flash.
4. Repeat the above steps for zone 3 and 4.
5. If you do not wish to change the status of a particular zone, simply press ‘OK’ to move to the next zone
6. Pressing the ‘OK’ button for zone 4 will return the screen to the normal ‘AUTO’ display.
If no button is pressed in the override mode for 30 seconds the screen will automatically return to the ‘AUTO’ display.
NB - The override function for each zone will end at the beginning of the next program
To override all zones to the same mode, turn the mode selector switch to the relevant symbol.
See Fig.6 and Table 2 on page 2 for details.
Absence mode (Holiday)
The RXPW4 incorporates a timed absence mode for when properties are vacant for a period of time
(e.g. holidays). All heaters in all zones will provide a frost protection temperature for a set period of time.
1. Turn the mode selector switch to the ‘AUTO’ position.
2. Press and hold the ‘OK’ button for about 5 seconds.
3. ‘Ab01’ will be displayed and the timer has now started and all programs are overridden.
4. Press the ‘+’ and ‘-’ buttons for the amount of days you are away (up to 99 days).
5. At the end of the timed absence the controller will revert back to its original program.
Mode No.of bars
Comfort / On 4
Setback / Off / Frost protection 1
NB - The above table depends upon the configuration chosen (see page 3)
[C] Glen Dimplex UK Limited
All rights reserved. Material contained in this publication may not be reproduced in whole or part, without prior permission in writing from Glen Dimplex UK Limited.
Fig.10
Fig. 11
Operation
Table 5
Running the daily program
Once the daily programmes have been set for each zone (see programming—setting the daily program) turn the dial to the Auto position.
The heaters in each zone will function as per the programme