Product basics .................................................................................................................................... 4
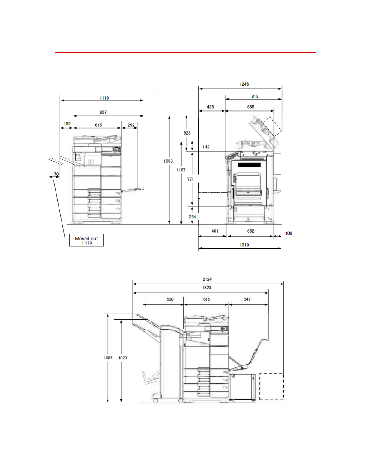
System dimensions............................................................................................................................. 5
System configuration.......................................................................................................................... 7
System specifications......................................................................................................................... 8
Copier specifications.........................................................................................................................17
Printer specifications (ineo controller) ..............................................................................................20
Printer specifications (Fiery controller IC-416) ................................................................................23
Scanner specifications......................................................................................................................26
Fax specifications .............................................................................................................................27
i-Fax specifications ........................................................................................................................... 28
IP-Fax specifications......................................................................................................................... 28
Consumables.................................................................................................................................... 29
Article numbers and compatibility..................................................................................................... 31
Documentation..................................................................................................................................34
Recommended media.......................................................................................................................37
Appendix........................................................................................................................................... 38