
1640 Airport Rd. Suite 103 Kennesaw, GA 30144 - http://www.cpcus.com/
Computer Process Controls, Inc. — ESC3 Installation Guide P/N 026-4700
Rev 1 3/11/05
ESC3 Overview
The ESC3 is a cost-effective electronic refrigeration controller that provides
control of compressor, fan and defrost management. The ESC3 provides control
of a compressor (or solenoid) valve in response to temperature variations.
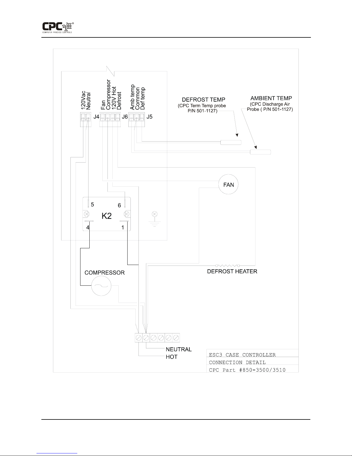
The ESC3 comes in two models: a controller with a pluggable 10A relay for
defrost control (P/N 850-3500) and a controller with no defrost relay (P/N 850-
3510).
The ESC3 provides outputs for controlling for defrost and fans. This allows the
ESC3 to be used in applications requiring a defrost signal (as required in electric
defrost systems).
Operation
Temperature Control
Temperature control in the ESC3 is accomplished by comparing the temperature
reading of the case temperature probe against the temperature setpoint. The com-
pressor output is used to control the temperature. If the temperature is above the
temperature setpoint (L1) + the hysteresis setpoint (rd), the compressor output is
turned on (subject to the conditions described in the compressor operation sec-
tion). If the temperature is below the temperature setpoint – the hysteresis set-
point, the compressor output is turned off.
Note that the compressor output can also be used to control a refrigeration sole-
noid to regulate the temperature in a case.
Compressor Control
Several setpoints are available that allow the operation of the compressor output
to be tailored to match individual needs.
Min On/Off Times and Minimum Cycle Time Minimum ON/
OFF compressor times can be specified, as well as a minimum time delay
between compressor cycles. These parameters help prevent short-cycling.
Compressor Power ON delay The compressor power on delay set-
point (c0) allows the user to specify a delay after the power up of the controller.
The compressor output will not come on regardless of the temperature reading,
until this amount of time has expired.
Compressor Safety Cycle If the temp sensor fails, the ESC3 can be
programmed to cycle the compressor ON for a fixed amount of time, followed
by a 15-minute OFF time, until the probe failure is fixed. You may also specify
the compressor be fully ON or OFF during probe failure.
Fan Control
The fan output is controlled by the ESC3 based on the current operating mode
(defrost, cooling, etc.) and the setpoints which affect fan operation. It may be set
to run only when required based on case temperature, or it may be set to be
always ON regardless of temperature. In addition to these two basic modes, you
may also turn the fans OFF during defrost, specify the fan will be ON only when
the compressor is running, and delay fan activation after defrost drip time.
Defrost Control
The ESC3 can control the defrost function of a case. The ESC3 executes defrost
cycles at a user-defined time interval. Electric, Off Cycle and Hot Gas defrost
types are supported.
The ESC3 features a number of options to customize operation and termination
of a defrost cycle. A defrost cycle can be terminated based on time or tempera-
ture. When termination by temperature is used, a minimum and maximum
defrost time can be specified.
You may also program the ESC3 to begin a defrost cycle after power-up (after a
user-defined delay time) and initiate a defrost manually (see the description for
“Defrost Key” on this page).
Alarm Control
The ESC3 has several alarm functions. In addition to alarms based on high and
low air temperatures, it will alarm if a probe failure is detected. If you are using
defrost, the ESC3 will also generate an alarm when the defrost cycle did not ter-
minate as expected (such as when the ESC3 is programmed to terminate at a
temperature set point and the set point was never reached).
Interface
The ESC3 features a 3 digit LED display that shows the case temperature. Alter-
nately, the display can be configured to display the product temperature if a
product temperature probe is connected. The temperature can be displayed in
either °C or °F.
Three keys on the front panel provide an indication of operating status as well as
allowing setpoints to be changed.
Alarm Key The Alarm key illuminates when the controller has
detected an alarm condition. This key is also used to reset an alarm condition and
to enter the setup mode (allowing setpoints to be changed).
Compressor Key The Compressor key illuminates when the com-
pressor output is on. When the ESC3 is in setup mode, this key is used to select a
setpoint to be modified and to change the value of the setpoint.
Defrost Key The Defrost key illuminates when the ESC3 is in defrost
mode. Press the defrost key for 5 seconds to go into manual defrost mode. The
key is also used in setup mode to select a setpoint to be modified and to change
the value of the setpoint.
Alarm Operation
Indications on the Display If the defrost, or compressor key blinks.
It means that the corresponding function is delayed by a timing routine or inhib-
ited. Other two-character messages may appear on the screen to indicate changes
of state or alarm conditions:
Viewing and Changing the Temperature Setpoint The tem-
perature setpoint is the comparison point for the control temperature input. To
change the set point value:
1. Press the Alarm key for more than 5 seconds until the setpoint is displayed
and blinking.
2. Press the Compressor key and Defrost keys to raise/lower the value.
3. Press and hold for five seconds the Alarm key again to accept the new
value.
Changing Other Setpoints There are two levels of setpoints in the
ESC3. The first level does not require a password to change (unless the buttons
are locked out). The setpoints that can be changed in this manner are identified
in Table 1 (back side) as a USER setpoint. All other setpoint do require a pass-
word to change and are identified in Table 2 (back side) as an OEM setpoint.
To change USER-level setpoints:
1. Press the Alarm key and hold it until the letters PS are displayed.
2. Use the Compressor and Defrost key to scroll through the codes for the
different set points (see Table 1 and Table 2).
3. When the code is displayed for the setpoint you wish to change, press the
Alarm key. The value for that setpoint will be displayed.
4. Press the Compressor or Defrost key to change the value
5. Press the Alarm key to go back to the code.
6. If you have more set points you wish to change, press the Compressor or
Defrost key to scroll to the next USER setpoint and follow steps 3-5.
7. When finished changing setpoints, press and hold the alarm key for five
seconds until the display stops flashing.
To change OEM-level setpoints, the password must be entered. To do this press
and hold the alarm key until the letters PS are displayed. When PS is displayed
release the alarm key and 0 will be displayed. Press the compressor or defrost
keys to enter the password (22 is the default) then press the Alarm key. PS will
be displayed again. At this point, pressing the compressor or defrost key will
scroll through the legend for all setpoints. To change the setpoints, use the iden-
tical procedure that is used to change a USER setpoint.
Code Meaning
E0 Air probe has failed
E1 Defrost termination or product probe has failed
LO Low temperature alarm
HI High temperature alarm
Ed Defrost timeout has occurred (did not terminate cor-
rectly)
dF Case is in defrost (not an alarm)
WARNING! If you do not hold the Alarm key for five
seconds after changing set points, the ESC3 will only
temporarily store your setpoint changes -- when the
power cycles to this unit, all setpoint changes will be lost.