
FASFHS150-180-01SI 2-23
Installation, Start-up and
Service Instructions
CONTENTS
Page
SAFETY CONSIDERATIONS . . . . . . . . . . . . . . . 1
PRE-INSTALLATION . . . . . . . . . . . . . . . . . . . . . . 2
Moving and Storage . . . . . . . . . . . . . . . . . . . . . . 2
Rigging . . . . . . . . . . . . . . . . . . . . . . . . . . . . . . . . 2
INSTALLATION . . . . . . . . . . . . . . . . . . . . . . . . . . 2
General . . . . . . . . . . . . . . . . . . . . . . . . . . . . . . . . 2
Uncrating . . . . . . . . . . . . . . . . . . . . . . . . . . . . . . . 2
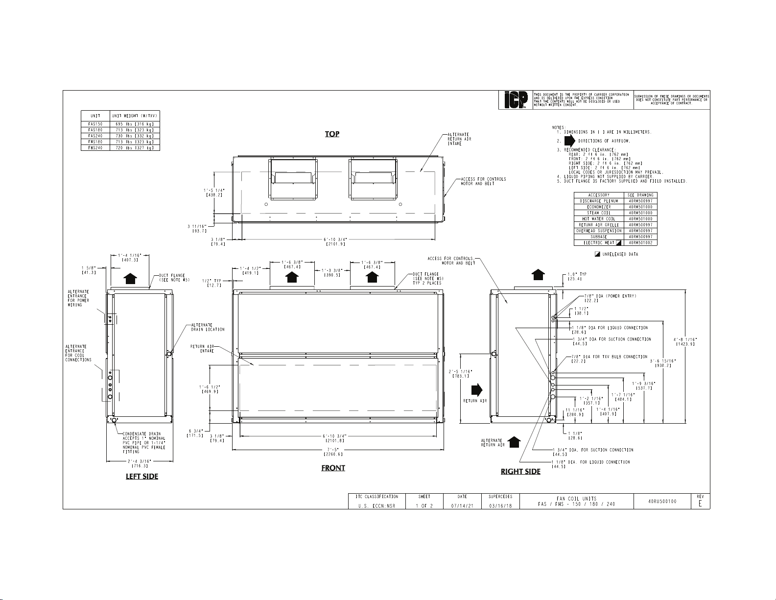
Accessories . . . . . . . . . . . . . . . . . . . . . . . . . . . . . 2
Rated Indoor Airflow (cfm) . . . . . . . . . . . . . . . . 10
Unit Positioning . . . . . . . . . . . . . . . . . . . . . . . . 10
Unit Isolation . . . . . . . . . . . . . . . . . . . . . . . . . . . 10
Refrigerant Piping . . . . . . . . . . . . . . . . . . . . . . . 11
Refrigerant Piping Access . . . . . . . . . . . . . . . . 11
Condensate Drain . . . . . . . . . . . . . . . . . . . . . . . 14
Fan Motors and Drives . . . . . . . . . . . . . . . . . . . . 15
Power Supply and Wiring . . . . . . . . . . . . . . . . . . 15
• THREE STAGE OPERATION
• FREEZE PROTECTION
Variable Frequency Drive . . . . . . . . . . . . . . . . . 18
Connecting Ductwork . . . . . . . . . . . . . . . . . . . . 20
• DISCHARGE CONNECTIONS
• RETURN CONNECTIONS
• OUTDOOR-AIR INLET CONNECTIONS
Return-Air Filters . . . . . . . . . . . . . . . . . . . . . . . 21
START-UP . . . . . . . . . . . . . . . . . . . . . . . . . . . . . 22
FAS/FHS ONLY . . . . . . . . . . . . . . . . . . . . . . . . . 22
Adjusting TXV for Superheat (FAS/FHS only) 22
Compressor Rotation . . . . . . . . . . . . . . . . . . . . 22
Indoor Fan Motor . . . . . . . . . . . . . . . . . . . . . . . 22
Cooling with 2-Speed Indoor Fan Motor
System . . . . . . . . . . . . . . . . . . . . . . . . . . . . . . 22
• FIRST STAGE (Y1)
• SECOND STAGE (Y2)
• THIRD STAGE (Y3) — 3-STAGE SYSTEMS ONLY
Operating Fan for Test and Balance . . . . . . . . 23
Fan Speed Set Up . . . . . . . . . . . . . . . . . . . . . . . 23
• UNITS WITH ELECTRO-MECHANICAL CONTROLS
MAINTENANCE . . . . . . . . . . . . . . . . . . . . . . . . . 24
Quarterly Inspection
(and 30 days after initial start) . . . . . . . . . . . 24
• INDOOR SECTION
Seasonal Maintenance . . . . . . . . . . . . . . . . . . . 24
• AIR CONDITIONING
SERVICE . . . . . . . . . . . . . . . . . . . . . . . . . . . . . . 25
Panels . . . . . . . . . . . . . . . . . . . . . . . . . . . . . . . . 25
Fan Motor Lubrication . . . . . . . . . . . . . . . . . . . 25
Fan Shaft Bearings . . . . . . . . . . . . . . . . . . . . . . 25
Centering Fan Wheel . . . . . . . . . . . . . . . . . . . . 25
Fan Shaft Position Adjustment . . . . . . . . . . . . 25
Individual Fan Wheel Adjustment . . . . . . . . . . 25
Fan Belts . . . . . . . . . . . . . . . . . . . . . . . . . . . . . . 25
Fan Rotation . . . . . . . . . . . . . . . . . . . . . . . . . . . 26
Fan Pulley Alignment . . . . . . . . . . . . . . . . . . . . 26
Pulley and Drive Adjustment . . . . . . . . . . . . . . 27
Variable Frequency Drive . . . . . . . . . . . . . . . . 32
• INDOOR FAN MOTOR
• VFD FUSES
• FAN FAULT DETECTION
• VFD ALARMS AND FAULTS TROUBLESHOOTING
•ALARMS
• CLEAR THE ALARM LED
•FAULTS
• VFD MAINTENANCE
• HEAT SINK CLEANING
Bypass the VFD . . . . . . . . . . . . . . . . . . . . . . . . 36
Condensate Drains . . . . . . . . . . . . . . . . . . . . . . 36
Return-Air Filters . . . . . . . . . . . . . . . . . . . . . . . 36
Coil Removal . . . . . . . . . . . . . . . . . . . . . . . . . . . 36
Cleaning Cooling Coil . . . . . . . . . . . . . . . . . . . 36
Cleaning Insulation . . . . . . . . . . . . . . . . . . . . . 36
Replacing Filters . . . . . . . . . . . . . . . . . . . . . . . 37
APPENDIX A — VFD PARAMETERS . . . . . . . 38
START-UP CHECKLIST. . . . . . . . . . . . . . . . . CL-1
SAFETY CONSIDERATIONS
Installation and servicing of air-conditioning equipment can
be hazardous due to system pressure and electrical
components. Only trained and qualified service personnel
should install, repair, or service air-conditioning equipment.
Untrained personnel can perform basic maintenance
functions of cleaning coils and filters and replacing filters. All
other operations should be performed by trained service
personnel. When working on air-conditioning equipment,
observe precautions in the literature, tags and labels
attached to the unit, and other safety precautions that may
apply.
Follow all safety codes, including ANSI (American National
Standards Institute) Z223.1. Wear safety glasses and work
gloves. Use quenching cloth for unbrazing operations. Have
fire extinguisher available for all brazing operations.
It is important to recognize safety information. This is the
safety-alert symbol . When you see this symbol on the
unit and in instructions or manuals, be alert to the potential
for personal injury.
Understand the signal words DANGER, WARNING,
CAUTION, and NOTE. These words are used with the
safety-alert symbol. DANGER identifies the most serious
hazards which will result in severe personal injury or death.
WARNING signifies hazards which could result in personal
injury or death. CAUTION is used to identify unsafe
FAS/FHS150-180
Packaged Air-Handling Units
with R-410A Refrigerant
60 Hz