
P5 — ECONOMIZER MINIMUM POSITION — This po-
tentiometer is on the accessory board (provided standard from
the factory) located in the unit main control box. It has both
a valid range and an operational range of 0% to 100%. If a
fault condition is detected by the processor, an alarm con-
dition will be signaled and the economizer dampers will close.
P6 — WARM-UP SET POINT — This potentiometer is on
the accessory board (provided standard from the factory) lo-
cated in the unit main control box, and DIP switch 4 must be
in the ON position if morning warm-up heat is to be used.
The valid range is 0° F to 95 F, but the processor is pro-
grammed to accept a range of 40 F to 80 F. If the set point
is between 0° F and 40 F, a default value of 40 F will be
used. If the range is between 80 F and 95 F, 80 F will be
used. If the value is less than 0° F or greater than 95 F,
40 F will be used as a default and an alarm condition will
result.
P7 — RESET TEMPERATURE — This 10 Kohm poten-
tiometer is used only if the accessory, field-installed tem-
perature reset package is installed, and DIP switch 2 is in the
ON position. This potentiometer determines the temperature
at which reset will begin. It is located on the accessory tem-
perature reset board and has a valid range of 40 F to 100 F.
PROCESSOR BOARD OUTPUTS — The processor board
also controls outputs through the relay board. The relay board
plugs into the processor board using a ribbon cable.
In addition, the processor board controls the display board.
The display board is connected to the processor board by a
ribbon cable, and has an LED (light-emitting diode) display
showing the status of the unit and diagnostic information.
CONFIGURATION HEADERAND DIPSWITCHASSEM-
BLY — The processor board is programmed to control a va-
riety of air conditioning units. To tailor the processor to the
particular unit being controlled, 2 devices are used. One is
the configuration header, and the other is the DIP switch as-
sembly.
The configuration header is a series of 8 small wires that
are broken or unbroken in a pattern to indicate several unique
characteristics of the unit. The configuration header is fac-
tory set and should not be changed. Changing the factory
setting may cause the unit to malfunction. The purpose of
each jumper is listed in Table 4.
The DIP switches configure the unit for several field-
installed options, as well as for several other options that
may be unique to the unit. The DIP switches are located un-
der a plastic enclosure which must be removed for access.
The switches can be field adjusted, but must be adjusted only
when the unit control circuit breaker is off. See Table 5 for
DIPswitch meanings and Table 6 for factory settings of both
the configuration header and DIP switches.
Table 4 — Configuration Header Jumpers
JUMPER
NUMBER FUNCTION FACTORY
SETTING MEANING
1,2 Unit Type ▫n VAV Rooftop Unit
3-5 Qty Compressors n▫▫ 2 Compressors
6Expansion
Valve nTXV
7Power
Frequency ▫60 Hz
8Not Used nNo Significance
LEGEND
TXV — Thermostatic Expansion Valve
VAV — Variable-Air Volume
▫—Broken Jumper (open circuit)
n—Unbroken Jumper (closed circuit)
Table 5 — DIP Switches
SWITCH
NO. FUNCTION FACTORY
SETTING* MEANING
1Reset
Mode Off Space or Outdoor-
Air Reset
2Reset
Select On
Off Reset Used
Reset Not Used
3Economizer On
Off Enable Economizer
Disable Economizer†
4Morning
Warm-Up On
Off Enable Morning Warm-Up**
Disable Morning Warm-Up**
5Demand
Limit On
Off Enable Demand Limit
Disable Demand Limit
6,7 Unloaders Off, Off
On, Off
Off, On
No Unloaders
1 Unloader
2 Unloaders
8Not Used Off No Significance
DIP — Dual, In-Line Package
*Control circuit breaker must be off before changing the setting of
the DIP switch.
†No economizer.
**And/or electric heat (50 Series units only).
Table 6 — Configuration Header and DIP Switch
Factory Settings
JUMPER OR
SWITCH NO.
UNIT SIZES 024-034,
054-074 UNIT SIZE 044
Header
Position Switch
Position Header
Position Switch
Position
1▫Off ▫Off
2nOff nOff
3nOn/Off* nOn/Off*
4▫On/Off* ▫On/Off*
5▫Off ▫Off
6nOff nOn
7▫On ▫Off
8nOff nOff
LEGEND
DIP — Dual, In-Line Package
▫—Broken Jumper (open circuit)
n—Unbroken Jumper (closed circuit)
*Depending on factory-installed options or field-installed accessories.
Relay Board — The relay board is used to control 24-v
and 115-v loads. See Fig. 5. The relay board is connected to
the processor board by a ribbon cable at pin J9. Electrical
connections to the relay board are made through pins J5
(115 v) and J6 (24 v). The relay board has eight 24-v relays
and five 115-v relays. See Table 7.
Display Board — The display board is located in the
main unit control box and is connected to the J10 port of the
processor board through a ribbon cable. The display board
contains the leaving-air set point potentiometer P1; a 2-digit,
LED display; and the display button (See Fig. 6). The LED
display is used to convey the operating information and op-
erational error codes.
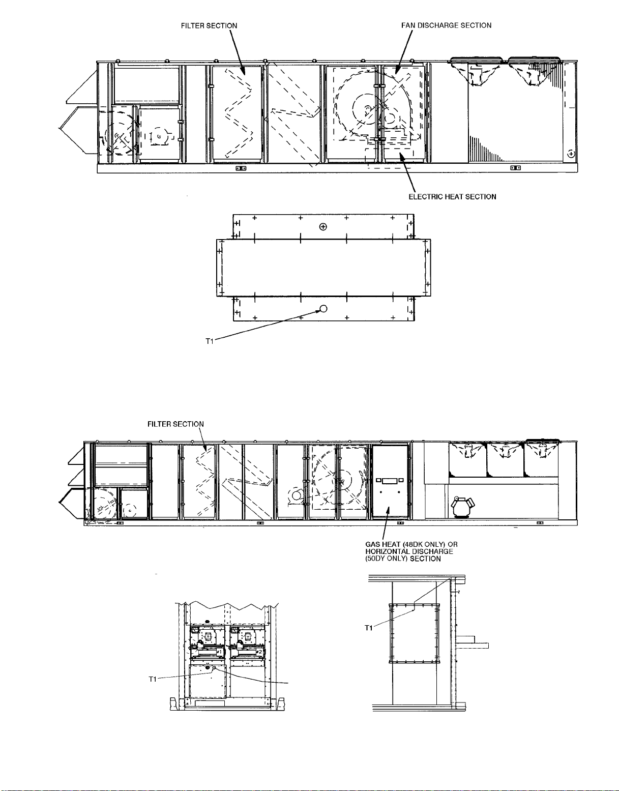
Thermistors — The processor uses up to 5 thermistors
to sense the temperatures at various points in the system.
See Table 1 and Fig. 7-18. All the thermistors have identical
temperature versus resistance and voltage drop characteris-
tics, and are monitored by the processor for a short or open
circuit. The valid range for a thermistor is 362,640 to
219 ohms. Thermistor details and locations are as follows:
T1 — LEAVING-AIR SET POINT THERMISTOR — This
thermistor is located in the unit supply fan discharge. It pro-
vides information for the processor to stage the number of
capacity steps required to maintain a desired leaving-air
temperature.
5