
2Part number 3E1089 R3
March 2003
Before you begin
Shipment contents
Checktheshipmentcontainsthefollowingitems:
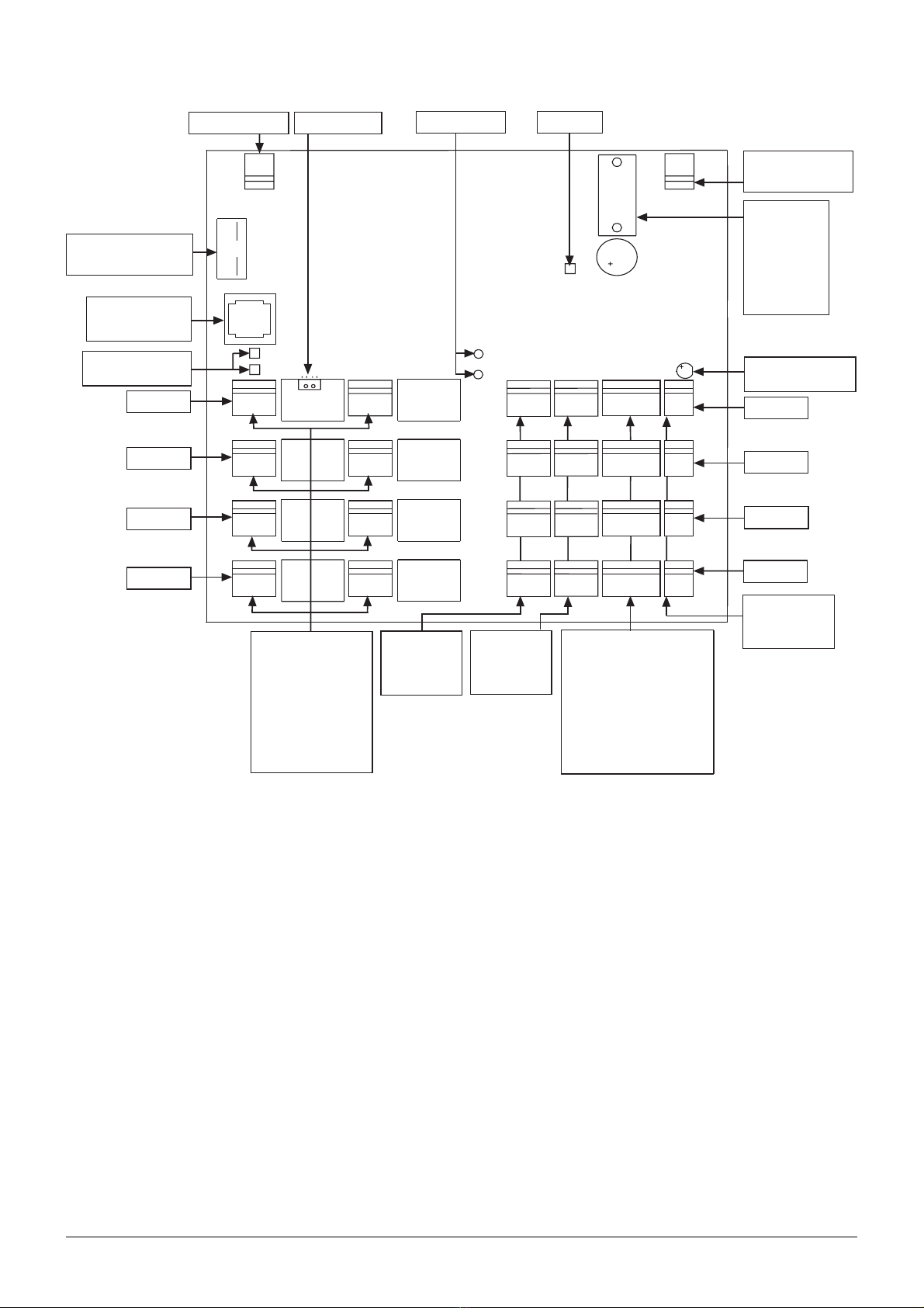
CardaxFTController3000
• 1xCardaxFTController3000
• 1x CardaxFTController3000InstallationNote(thisdocument)
• 1xCardaxFTProductLabel
• 1xCardaxFTController3000componentidentificationdecal
• 9 x M3 screws
• 32x4k7ohmresistors
CardaxFTCabinet
RefertotheenclosedCardaxFTCabinetInstallationNote(partnumber3C4513)for
theshipmentcontentsdespatchedwiththeCardaxFTCabinet.
ThecabinetfortheCardaxFTController3000hasalabelontheinsidebacksurface,
indicatingithasbeenconfiguredspecificallyforthisproduct. Thecabinetcanbe
rotated,howeverthedoormustnotbere-hingedastheRunLEDwillnotshinethrough
thedoor.
Power supply TheCardaxFTController3000requiresa 13.6VDC±15%. Forfurtherdetailregarding
powersupplyrefertothe“Technicalspecifications”sectionattheendofthisinstallationnote.
PlugsPA1,PA2,PA3andPA4providepoweroutconnectionpointsvia500mAfuses.
However,thisDCvoltageoutwillbeapproximately0.5VDClowerthanthevoltagesupplied
totheCardaxFTController3000. Thefusesareresettable,(i.e.underfaultconditions,fuses
gohighresistance. Whenthefaultsubsidesorpowerisremoved,thenthefuseswillcooland
resetthemselves).
Thecurrentloadontheseconnectionpoints(PA1toPA4)isinadditiontothe1.0Arequired
bytheCardaxFTController3000.Whenusingtheseconnectionpoints,ensurethePower
SupplytotheCardaxFTController3000iscapableofsupplyingtheextracurrentrequired.
Cabling ForfulldetailsonsitecablingandrecommendedcablespecificationsrefertoChapter2ofthe
CardaxFTInstallationmanual.
Ethernet cabling
ThecommunicationsbetweentheCardaxFTController3000andtheCardaxCommand
CentreFTServercaneitherbeviaadialupmodemor,preferably,viaapermanentEthernet
connection.
Foroptimumperformance10BaseTunshieldedtwistedpair(UTP)(CAT5orbetter)cable
shouldbeusedforEthernetconnections.TheCardaxFTController3000isprovidedwithan
RJ45socket(P2)for10BaseTconnection.
EMI Cable Shields
TocomplywithCErequirementsandimprovenoisesuppression,anEMICableShield(ferrite
core)shouldbeappliedtoboththeethernetcable(P2)andthepowerincable(P1). There
aretwotypesofshields,(i.e.thosethataresplitandthosethatarenot). Theethernetcable