Bogen AS1 Mode d’emploi

Amplified Speakers
Models AS1, ASUG1(DK), and ASWG1(DK)
Installation and Use Manual
Description
Bogen’s self-amplified ceiling speakers are 8-inch, cone-type loudspeakers, complete with built-in amplifier and volume
control knob.
Installation Instructions for ASUG1(DK) and ASWG1(DK)
Note: Do not mount the speaker near noise generating equipment (fans, motors, etc.) and do not use where a normal
conversation cannot be conducted.
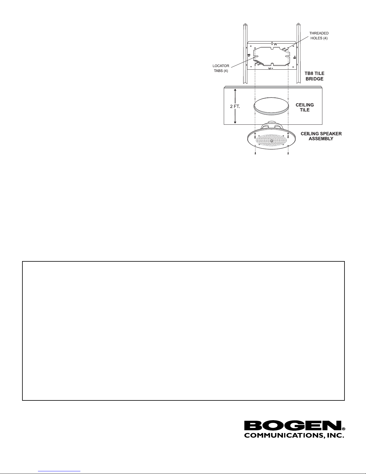
TB8 and RE84 Installation
1. Place ceiling tile with the finished side facing up over a large
trash can (to provide support and save cleanup time).
2. Cut hole in the center of the ceiling tile, using the raw speaker
as a guide.
3. Bend (4) horseshoe tabs upward on tile bridge.
4. Position the tile bridge on the unfinished side of the ceiling tile
and bend (4) locator tabs into tile opening to prevent sliding.
5. Slip tie-off tabs (2) through RE84 tie-off tab slots until they click
into place and secure customer-supplied “tie-off” wire to tab.
6. Punch out knockout in the RE84. Install listed metallic enclo-
sure entry fitting to knockout to accommodate plenum cable or
plenum. Whip and feed cable or whip through the knockout.
7. Install RE84 to tile bridge by orienting horseshoe tab slots (4)
over horseshoe tabs (4) of bridge.
8. With pliers, twist horseshoe tabs (4) of tile bridge 1/2 turn,
securing enclosure to bridge.
9. Screw the Ceiling Speaker assembly to the RE84 using (4)
8-32 screws provided with the Ceiling Speaker assembly,
sandwiching the TB8 and ceiling tile in between. The screws
must go through the TB8 clearance holes as shown. (Screws
anchor into the RE84.)
Model Style Power
Requirements
Power
Rating Mounting Accessories
AS1 Unmounted Cone Speaker with 1W Amplifier and
Volume Control
1 CU
(50 mA) 1W
Grilles: CG8AW, SG8W,
PG8A, PG8U, PG8W
ASUG1,
ASWG1
AS1 Mounted onto Steel Ceiling Grille (PG8U or PG8W)
with Fixed, Volume Control Knob TB8, RE84, MR8
ASUG1DK,
ASWG1DK
AS1 Mounted onto Steel Ceiling Grille (PG8U or PG8W)
& Detachable Volume Control Knob
© 2004 Bogen Communications, Inc.
Specifications subject to change without notice.
54-5850-02D 1108

50 Spring Street, Ramsey, NJ 07446, U.S.A.
Tel. 201-934-8500 • Fax: 201-934-9832,
www.bogen.com
TB8 Only Installation
1. Place ceiling tile with the finished side facing up over a large
trash can (to provide support and save cleanup time).
2. Cut hole in the center of the ceiling tile, using the raw speaker
as a guide.
3. Position the tile bridge on the unfinished side of the ceiling tile
and bend (4) locator tabs into tile opening to prevent sliding.
4. Install Ceiling Speaker assembly using (4) 8-32 screws and the
threaded holes of the tile bridge as shown. (Screws are provid-
ed with Ceiling Speaker assembly.)
Electrical Connections and Adjustments
Power (24V DC) and audio are supplied to each speaker via four
screw terminals. When two or more speakers are used in a
single paging station, wire all audio and power supply connections
in parallel.
Power supply connections are made at the screw terminals marked
"+" and "-". Audio connections are made at the screw
terminals marked TIP and RING. The speaker power input is not
polarity sensitive and will also work properly if the "+" and "-"
connections are reversed.
A volume control knob is provided to adjust the volume of the
speaker. The knob is detachable on the ASUG1DK and ASWG1DK
models to prevent tampering with the volume control.
The Bogen Amplified Speakers: AS1, ASUG1(DK), and ASWG1(DK) are warranted to be free from defects in material and workmanship for two (2) years
from the date of sale to the original purchaser. Any part of the product covered by this warranty that, with normal installation and use, becomes defective
(as confirmed by Bogen upon inspection) during the applicable warranty period, will be repaired or replaced by Bogen, at Bogen’s option, provided the
product is shipped insured and prepaid to: Bogen Factory Service Department, 50 Spring Street, Ramsey, NJ 07446, USA. Repaired or replacement
product will be returned to you freight prepaid. This warranty does not extend to any of our products that have been subjected to abuse, misuse, improper
storage, neglect, accident, improper installation or have been modified or repaired or altered in any manner whatsoever, or where the serial number or
date code has been removed or defaced.
THE FOREGOING LIMITED WARRANTY IS BOGEN’S SOLE AND EXCLUSIVE WARRANTY AND THE PURCHASER’S SOLE AND EXCLUSIVE
REMEDY. BOGEN MAKES NO OTHER WARRANTIES OF ANY KIND, EITHER EXPRESS OR IMPLIED, AND ALL IMPLIED WARRANTIES OF
MERCHANTABILITY OR FITNESS FOR A PARTICULAR PURPOSE ARE HEREBY DISCLAIMED AND EXCLUDED TO THE MAXIMUM EXTENT
ALLOWABLE BY LAW. Bogen's liability arising out of the manufacture, sale or supplying of products or their use or disposition, whether based upon war-
ranty, contract, tort or otherwise, shall be limited to the price of the product. IN NO EVENT SHALL BOGEN BE LIABLE FOR SPECIAL, INCIDENTAL OR
CONSEQUENTIAL DAMAGES (INCLUDING, BUT NOT LIMITED TO, LOSS OF PROFITS, LOSS OF DATA OR LOSS OF USE DAMAGES) ARISING
OUT OF THE MANUFACTURE, SALE OR SUPPLYING OF PRODUCTS, EVEN IF BOGEN HAS BEEN ADVISED OF THE POSSIBILITY OF SUCH
DAMAGES OR LOSSES. Some States do not allow the exclusion or limitation of incidental or consequential damages, so the above limitation or
exclusion may not apply to you. This warranty gives you specific legal rights, and you may also have other rights which vary from State to State.
Products that are out of warranty will also be repaired by the Bogen Factory Service Department – same address as above or call 201-934-8500.
The parts and labor involved in these repairs are warranted for 90 days when repaired by the Bogen Factory Service Department. All shipping charges in
addition to parts and labor charges will be at the owner's expense. All returns require a Return Authorization number. For most efficient warranty or repair
service, please include a description of the failure.
12/2008
Limited Warranty; Exclusion of Certain Damages
Ce manuel convient aux modèles suivants
11
Table des matières
Autres manuels Bogen Système de haut-parleurs
Manuels Système de haut-parleurs populaires d'autres marques

Sondpex
Sondpex Active Speaker System and Digital Music... Manuel utilisateur

JVC
JVC NX-PN7 Manuel utilisateur

Marshall Amplification
Marshall Amplification AR-DM61-BT Manuel utilisateur

Yamaha
Yamaha NX-A01 - Speaker Sys Manuel utilisateur

SE Audiotechnik
SE Audiotechnik I-LINE Manuel utilisateur

Gemini
Gemini WRX-843 Series Manuel utilisateur













