
SECTION
529-225-134
PLUG
LEAD
D50N
MTG
TER M STRIP
DES
IG.
CORD
ON
6360
KEY
7
\(J
[
RR
(0-Y)
6
4 WIRE
~:
(
RT
(Y-0)
5~
CIR
CU
IT
'
FW
(Y-B
L)
1
:::'.
4 1 ,
~
SIG
GROUND
19~(-
..;-;--G_O_R_SG_
....,..
_~(B_R_-_Y:...
) - -
------<40
46
, ET
ORT
(V-BL)
ET,-,.
(V-BL)
i+
(W-BL)
f1
-------'-"--=-+----'
I
ER
ORR
(BL-V)
ER
,-,.
(BL-V)
'-...
211,--
(
---+.-.o;,;;....
.::..;.;...:.;.;...;.;._----.i
i,i;--
__..:.:;-=--...:....-
;.;,,:.:..
-----=~~".>--~of---t---t------=-=---'---"o-
----,fr'
\v/
I
EXCLUSI
ON
CIR
CU
IT
.---1-----~(_BL_-_W_)
__
__,
(W-0)
47
f'-
i!i+
--'-A'--
fff
--'
(,.__
V_-~O~
)
--+.i+----
E_H~,
,.,_()--,.
/
--'-+i+---+
-+---+~(~V_-~O~)--o-~!'-{
(V)
(V)
(BR)
(Y)
(S)
EXCLUS I
ON
SW
ITCH
ASSEMBLY
I
B;:/
(0-W)
I
.---v;-----t-t------t---'-~----,
1 :
(Y)
B
(0-V)
EB:::-.
(0-V)
t I
22
f-_;.;,;;,;......--=-----...,;;;;-....:..::......:...!..----;
.,,,._
--+-{,_lr',;\~-=--=.
::
-=--=--=-:~:~-=--=--=--=--=--=-~-=-~~-=--=-~-=--=--=--=-'=--=-~~-----'
(BR)
I
~
6360
KEY
SO~(-----'-'AG-=-----~(V_-~S~)-....;.,;"--*
23
~(-
___
R_l
_-;;;
,;,;-
-(G_
-
_V_
)
____
* \
'-----'..,...--+-+-...;..
(0:...-....;B;_K;.;..)
-+----1-,---..J---<>-t
9_
SPEAKER
IT
(V-BR)
PHONE
49
...
(--------------*
\ (R)
{\
(Y)
CI
RCUI T
24
(
IR
(BR-
V)
*
48
(
Tl
(V-G)
*
2
!;(
LK
(S
-V
) *
Mt
.! (BR)
(Y-BR)
----o---'.,v
SPARE
41
(
(Y-BR)
*
\'-t--,;;;;;'---+-+-+-t-t-+--",/
.....-,t-i---'
• I
:
[
2~f~,-
~ _
____;T
__
~
_(,.__W,.__-~B~
L
~)-
e•
----+.:..
11~1
~2-+-
~M
~(~W_-_.:,B~L~)
LI
NE
I 2
1,--
,
,--,;,;,..,;-
-.;..A_I---,;,;,..,;--
(:..cO_---W;..:.)_
~-
----'
.......
'-t-
..;;;;;
---
-
+-+-t-+--1--'
(W-0)
R
(BL
-W)
IR,.I
llil
A
(W-0)
IH.,../
27f~
-~
-
--'
'--
~
;--.:..:..:...~---+
•
-----<Ll-t-
•iii
-----t-'
4 '- T
(W-BR)
2T
-
LINE
2
29
' B (
S-
W)
5~(-----------
-
---*
I
t
+
+'
I
t
+
I
I
[
, R (BR
-W
)
2R_:
30
~'---iii\it---.;..A:__f'+_;
(,.__W_-~S.;..)_
4
f'---
___
2_H~-
:,.-+
---iiif'------
-+---~
kk R
(0-R)
Hk
3R-
~
[
7~
ll
T
(R-0)
ll
3T-
ti
LINE
3
OR
32
l,---....i,i----'---++-----'-----'-'---,.;..,-----'-<./.l9--+-++------+------t-+----'
:
SIG CIR
CUIT
8 ~(-.;;;;;;;;'-----=B'---.;;;;;;;;;...-.:..;(G_--'-R"-)
____
*
33
f~--f
]
iii
']
~Ac:_
,H
:..O~R~S--+4-....::.(R,.__-_.:,G~)--
t
i!i+
,'.,,
---3:..
H
,<-,-,.+--++----------
+t-----'
•
[
, R ,
ff
(S-R)
,
;,;,;,;
4R
=
LINE
4
OR
~~:
ffff
T
ff
t
(R
-S
) ll
4T
:::_
SIG CI
RCUIT
II
~(-------=B'--_...,.;...-(_B_L_-B_K_)--'..,..-*
f A,H
OR
S
(BK-BL)
4H_
36~~-¥,,;......:..c..:....:::.:..:....:::.._+,,,;...-.:::.;c.....:..::..:........,,,,;-.-----{,1)-1--~-----,
(S-R)'::'...-.,
X
_r
\
~_,,.,...__
(_B_R
_-
B
_K...,
)
V
ti
..._
_______
...,
:
t
LI
NE
5
OR
~:I,--
~-++----'
T
____
;...-
(:..:B_K
_-
..;;G.:..)
---;
}~)
___
5;;.;T"(,:::_,,.__-+,,;.-(:--:G-:-)--t--------,
1 f v
[
, R
(G-BK)
SR_
SIG CIRCU
IT
14
(--(
____
B
__
...,.;...-(:..c
B....;R_-.c.B
__
K:...)
---*
20 I +I
39
A,H
ORS
(BK-BR)
SH
-
.___
___
_.
I
HOLD KEY
(H)
1ST
LINE
PICK-UP
KEY
(P)
2ND
LINE
PICK-UP
KEY
(P)
(R)
3RD
LINE
PICK-UP
OR
SIGNAL
KEY
(CONVERTIBLE
(pS)
4TH
LINE
PICK-UP
OR
SIGNAL
KEY
(CONVERTIBLE)
(PS)
5
TH
LINE
PICK-UP
OR
SIGNAL KEY
(CONVERTIBLE)
(pS)
SPARE
16
~(-,;;;;a,------
(_B_L
_-_Y.;..)
----*
•
COMMON
OR
[ , R
OR
RI
(
S-Y)
RR
,.,_
(R)
PRIVATE
LINE
20
~,--------~~--;;;;;----
3
-1.::::_/J.--1------------------------
(--'G-'-)
--+-
RINGER
OR
B
ORB
I (Y )
RT
::'
(BK)
BUZZER
45
~(-;,;,;;,;.-
-----i--'----"-S-'-----;.,,,,._
___
-<,'//-
•------------
--------------
Cl RCUIT
~
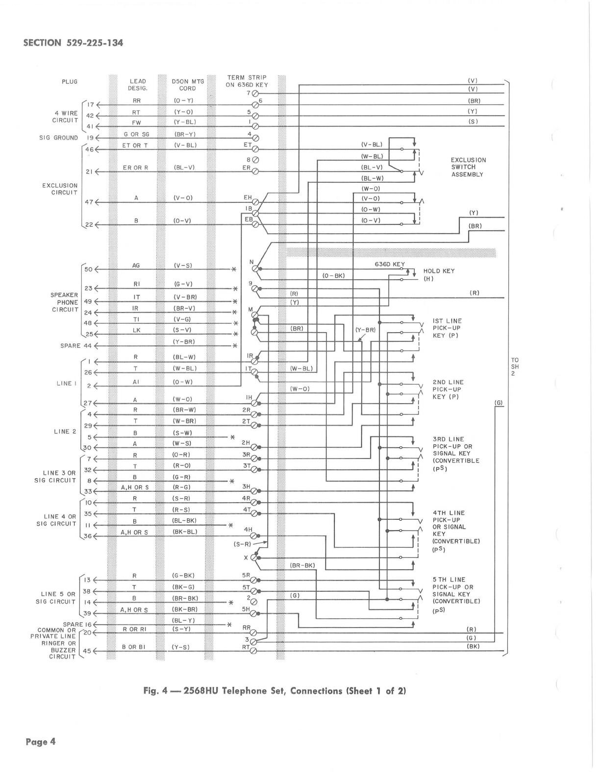
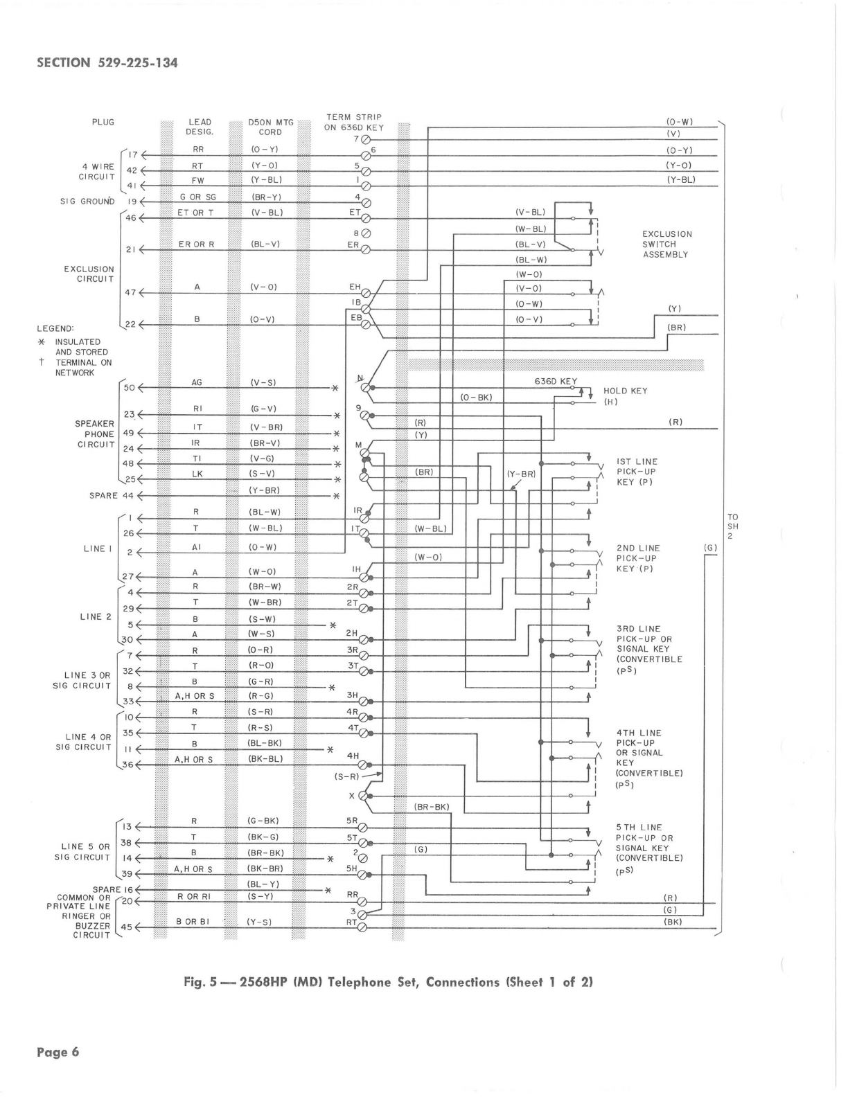
Fig. 4 - 2568HU Telephone
Set,
Connections
(Sheet
1 of 2)
Page4
TO
SH
2