
INSTALLATION
Airflow is vital to the performance of this product.
Install with AT LEAST 12" (30cm / 300mm) clear space on both ends and do not block ventilation holes.
1. Extend un-switched 24-hour AC supply of rated voltage to the unit, installed in accordance with all applicable codes
and standards. This circuit should NOT be energized/live at the time.
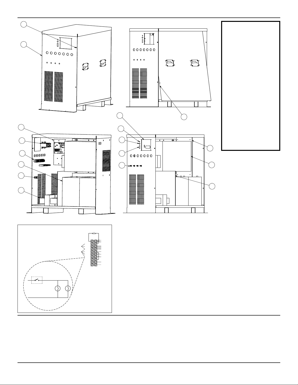
2. Unscrew the cover screws (4 pcs) on the sides of the unit. Lift and remove the front cover .
3. Knockouts are stamped into both sides of the cabinet. Knock out the appropriate hole(s) and bring wires through
them into the cabinet.
4. Mount the unit securely into place. This unit is FLOOR MOUNT ONLY!
5. Make proper wiring connections for the AC supply and output loads to the terminal blocks within the unit (see AC
WIRING DIAGRAM, page 2).
6. Batteries are shipped separately. Install batteries into the cabinet and complete the appropriate connection:
Red wire to positive battery terminal (+) and Black wire to negative battery terminal (-).
7. Route wires and secure in place.
8. Select Load Operation Mode (N-ON / N-OFF) from the internal toggle switch .
9. Replace cover and secure with cover screws .
10. Turn on AC line voltage supply.
Wall Switch Option:
The feature of optional wall switch connection is to allow the normally-on lamp loads to become switchable by a standard
wall switch. Conversely, the system will by-pass the wall switch during emergency mode to provide full output to all
lighting loads in its circuit.
Maximum number of wall switch outputs per system is two.
Maximum number of breakers per system is four.
UNIT RESET
1. Disconnect AC input, disconnect batteries from inverter, disconnect load.
2. Wait 10 seconds; measure battery voltage during wait period to verify condition.
3. Reconnect batteries, and then reconnect AC input.
4. If unit turns ON with no error notifications, turn OFF unit with power button and reconnect lighting load.
5. Turn on AC to verify system operates normally.
TROUBLESHOOTING
Problems Reasons Solutions
No AC output voltage
during emergency
Surge (or inrush) of lighting load exceeds
inverter’s maximum, causing unit shutdown
• Reduce number of connected lighting
fixtures, or replace with lower-surge
fixtures
• Reset unit
No AC output voltage,
with AC input present
(N-ON mode only)
Lighting load exceeds inverter’s maximum
capacity, causing unit shutdown
• Reduce number of connected lighting
fixtures
• Reset unit
Short-circuit, causing AC output circuit
breaker to trip
• Locate and clear short-circuit
• Reset circuit breaker located on inverter
box inside the unit enclosure
Unit does not turn ON,
with AC input present
Battery voltage is lower than acceptable
threshold
• Disconnect battery and recharge by
separate means; battery may need
replacement
Battery is not connected to inverter box • Connect 12V battery terminals to
inverter
Unit does not last up to
required emergency
duration
Battery is not fully charged • Allow battery recharge for up to 24
hours
Lighting load exceeds unit rating • Reduce number of connected lighting
fixtures to below unit power rating
Batteries are defective, or aging • Replace batteries
Beghelli U.S.A., 3250 Corporate Way, Miramar, Florida, Tel: (800) 726-4316 Tel: (954) 442-6600 Fax: (954) 442-6677
926000443 11/28/2017