24
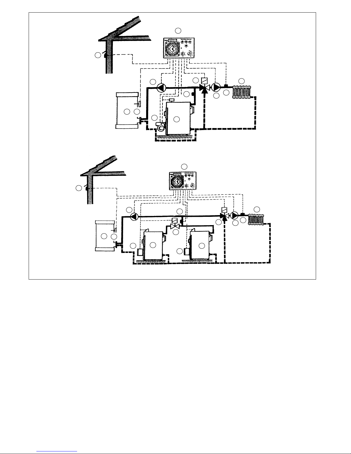
Circulador de la instalación
System pump
Circulateur de l’installation
Umlaufpumpe der Installation
Pompa di circolazione dell’impianto
Circulador da instalação
Regleta / Terminal Strip / Réglette / Klemmleiste / Morsettiera / Régua
Regleta / Terminal Strip / Réglette / Klemmleiste / Morsettiera / Régua
Variante para conexión de circulador de intensidad > 2A
Variation for connection of pump rated > 2A
Variante pour connexion de circulateur d’intensité > 2A
Variante für den Anschluß der Umlafpumpe mit einer Stromstärke von > 2A
Variante per collegamento di pompa di circolazione di intensità > 2A
Variante para a ligação de circulador de intensidade > 2A
Variante para conexión de circulador trifásico
Variation for connection of 3-phase pump
Variante pour connexion de circulateur triphasé
Variante für den Anschluß de dreiphasigen
Umlaufpumpe
Variante per collegamento di pompa di circolazione
trifase
Variante para ligação de circulador trifásico
Relé / Relay / Relai
Relais / Relè / Relé
Quemador y circulador monofásicos de intensidad < 2A
Single-phase burner and pump rated < 2A
Brûleur et circulateur monophasés < 2A d’intensité
Einphasiger Brenner und Umlaufpumpe mit einer Stromstârke von < 2A
Bruciatore e pompa di circolazione monofase di intensità < 2A
Queimador e circulador monofásico de intensidade < 2A
Relé / Relay / Relai
Relais / Relè / Relé
Al borne 12
To terminal 12
Vers borne 12
Zur Polklemme 12
Al terminale 12
Ao borne 12
Circulador
Pump
Circulateur
Umlaufpumpe
Pompa di circolazione
Circulador
Quemador
Burner
Brûleur
Brenner
Bruciatore
Queimador
Termostato de seguridad
Limit thermostat
Thermostat de sécurité
Sicherheitsthermostat
Termostato di sicurezza
Termostato de segurança
Bornes circuito auxiliar termostatos quemador
Burner thermostat auxiliary circuit terminals
Bornes circuit auxiliaire thermostats brûleur
Polklemmen des Hilfskreislaufs des Brenner-Thermostats
Terminali circuito ausiliare termostati bruciatori
Bornes circuito auxiliar termostatos queimador
Variante para conexión de quemador de intensidad > 2A
Variation for connection of burner rated > 2A
Variante pour connexion d’un brûleur d’intensité > 2A
Variante für den Anschluß des Brenners mit einer Stromstärke von > 2A
Variante per collegamento di bruciatore di intensità > 2A
Variante para a ligação do queimador de intensidade > 2A
Nota:
Cuando el circulador que vaya a conectarse al borne 12 sea
alimentado con tensión trifásica deberá sustituirse el relé de la
variante indicada por otro de características adecuadas y realizar
las conexiones eléctricas según se indica.
Cuando sean los quemadores I y II los que se alimentan con
tensión trifásica pueden utilizarse los circuitos auxiliares de
termostatos y conectarlos en serie con los bornes 13-14 y 11-
18 respectivamente en la forma que se indica y, por supuesto,
prescindiendo de los puentes 20-13 y 20-18.
Note:
When the pump that is going to be wired to terminal 12 is fed with
3-phase voltage, the relay of the variation indicated should be
replaced with another of suitable characteristics and the electrical
connections made as shown.
When burners I and II are fed by 3-phase voltage, the auxiliary
circuits of thermostats may be used and connected in series to
terminals 13-14 and 18-8 respectively in the way shown and of
course, jumpers across 20-13 and 20-18 be removed.
Note:
Lorsque le circulateur qui doit être raccordé à la borne 12 est
alimenté en courant triphasé, il convient de remplacer le relais
de la variante indiquée par un autre ayant des caractéristiques
appropriées, et effectuer les connexions électriques comme
indiqué.
Lorsque les brûleurs I et II sont alimentés en courant triphasé, on
peut utiliser les circuits auxiliaires de thermostats, et les connecter
en séries sur les bornes 13-14 et 11-8 respectivement, de la
manière indiquée, et en supprimant les ponts 20-13 et 20-18.
Anmerkung:
Wenn die Umlaufpumpe , die an Polklemme 12 angeschlossen
werden soll, mit dreiphasiger Spannung gespeist wird, muß das
angegebene Relais derVariante durch ein anderes mit geeigneten
Charakteristiken versehenes Relais ausgetauscht werden.
Die elektrischen Anschlüsse müssen wie auf der Abbildung
vorgenommen werden.
Wenn die Brenner I und II mit einer dreiphasigen Spannung
gespeist werden, können die Hilfskreisläufe des Thermostats
verwendet und müssen in Serie an die Polklemmen 13-14 bzw.
11-8 angeschlossen werden, so wie es angegeben ist und natürlich
ohne Brücke 20-13 und 20-18.
Nota:
Quando la pompa di circolazione che sarà collegata al terminale
12 sia alimentata con tensione trifase, si dovrà sostituire il relè
della variante indicata con un altro di caratteristiche adeguate e
realizzare i collegamenti elettrici come indicato.
Quando siano i bruciatori I e II quelli alimentati con corrente
trifase, si possono utilizzare i circuiti ausiliari dei termostati e
collegari in seire con i terminali 13-14 e 11-8 nella forma indicata
e, naturalmente, prescindere dai ponti 20-13 e 20-18
Nota:
Quando o circulador, que se vai ligar no borne 12, fôr alimentado
com corrente trifásica, deverá substituir-se o relé da variante
indicada por outro de características adecuadas e realizar as
ligações eléctricas conforme se indica.
Quando os queimadores I e II forem alimentados com tensão
trifásica podem usar-se os circuitos auxiliares de termostatos e
ligá-los em serie com os bornes 13-14 e 11-8 na forma que se
indica eliminando as pontes 20-13 e 20-18.
Primer quemador una llama
First burner, single-stage
Premier brûleur mit einer Flamme
Erste Brenner mit einer Flamme
Primo bruciatore a una fiamma
Primeiro queimador una chama
Segundo quemador una llama
Second burner, single-stage
Second brûleur une allure
Zweiter Brenner mit einer Flamme
Secondo bruciatore a una fiamma
Segundo queimador uma chama
Bornes circuito auxiliar termostatos quemador
Burner thermostat auxiliary circuit terminals
Bornes circuit auxiliaire thermostats brûleur
Polklemmen des Hilfskreislaufs des Brenner-Thermostats
Terminali circuito ausiliare termostati bruciatori
Bornes circuito auxiliar termostatos queimador
Relé / Relay / Relai
Relais / Relè / Relé
Termostato de regulación
Control thermostat
Thermostat de régulation
Thermostat Einstellung
Termostato di regolazione
Termostato de regulação
Cerrar
Close
Fermer
Schließen
Chiudere
Fechar
Abrir
OPen
Ouvrir
Öffnen
Aprire
Abrir
Circulador de A.C.S.
D.H.W. pump
Circulateur E.C.S.
Warmwasser-Umlaufpumpe
Pompa di circolazione dell’A.C.S.
Circulador A.Q.S.