
13/33
INSTALLATION
Preliminary operations
Remove the appliance from the packaging, ensure that it is intact and, if in doubt, do not use it but
contact professionally qualified personnel. The packaging materials are compliant with
environmental safety regulations. They can be stored without risk, or else should be disposed of in
accordance with current national regulations, particularly those regarding the nylon bag and the
polystyrene.
After verifying that the appliance is in good conditions, the protective film may be removed. Clean
the external parts of the appliance carefully with warm water and detergent, using a cloth to remove
all remaining residues and then dry it with a soft cloth. If there are still traces of glue, these can be
removed using a suitable solvent (e.g. acetone). Under no circumstances should abrasive substances
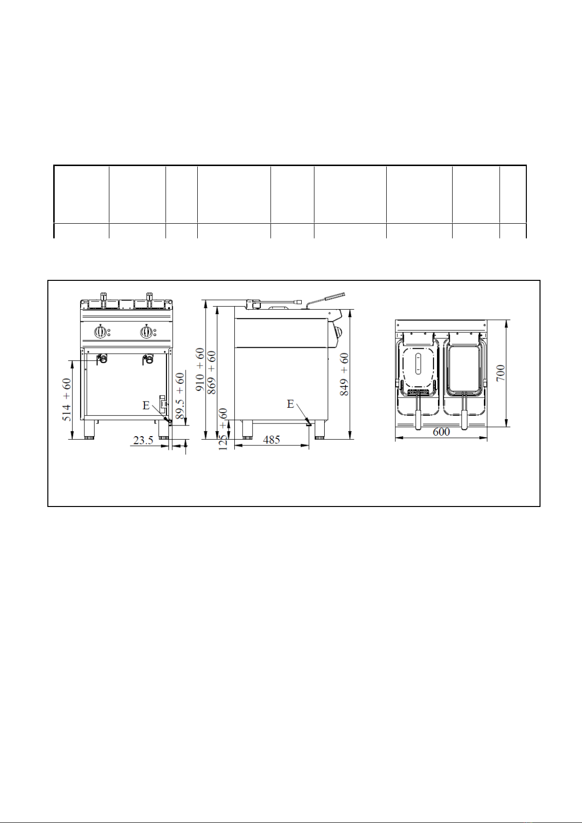
be used. After the installation the appliance should be levelled by lowering or raising the adjustable
legs.
Electric connection
Before connecting the appliance, it is necessary to check that the voltage of the available power
supply corresponds to the voltage the appliance has been set for. If they do not correspond, it is
necessary to modify the connection as shown in the electric diagram, if voltage change is provided
for. The junction box is situated behind the control panel of the top and it is made accessible by
unscrewing the screws that fix the panel, removing it and taking out the junction box.
Furthermore, it is necessary to check that the earthing wire is efficient, that the earth conductor on
the connecting side is longer than the other conductors, that the connecting cable has a wire bunch
adequate for the power absorbed by the appliance, and that the connecting cable is at least type H07
RN-F. It is necessary to run the cable first through the cable gland. If the supply cord is damaged,
it must be replaced by the manufacturer service agent or similarly qualified persons in order to
avoid a hazard. As in international provisions, before setting up the appliance a unipolar
device has to be installed with a contact opening of at least 3 mm that must not interrupt the
YELLOW-GREEN earthing wire. This device has to be installed near the appliance, has to be
approved, and has to have adequate capacity for the absorption of the appliance (see
table TECHNICAL FEATURES).
The appliance has to be connected to the EQUIPOTENTIAL system. The connector is
situated near the end of the electric cable and it is identified by a label with the symbol
shown.
While using a safety thermostat for breakdown tensions, it is necessary to note what follows:
-According to the normative law in force, the leakage of electric power for this kind of
appliances can have a value of 1 mA without limitations for the maximum for each kW of
installed power. Besides, it must be noted that all the switches for breakdown to be found on
the market have a tolerance for the operating tension of less than the 50%; therefore, a
suitable switch has to be chosen.
-Connect only a single appliance to each switch.
-In some cases, after long periods of inactivity or in case of a new installation, it is possible
that the appliance switches off during the setting-up. The main reason is usually the moist
produced during the isolation. The problem can be easily solved through a short pre-heating
bypassing the safety thermostat.
ATTENTION! All the parts protected and sealed by manufacturer can not be regulated by
the installer if not specifically indicated.