
-4-Revision 8 November 2017
Essence™ Spa Specications/Installation
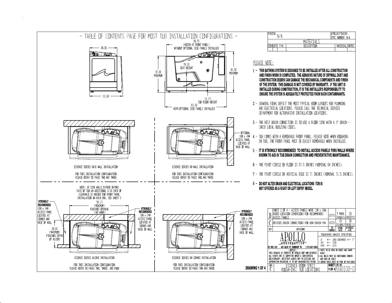
Minimum Room Size: 69 in (183 cm) wide by 90 in (228.6 cm) long
Dimensions: Length Width Height
Tub: 59.51 in (151.1 cm) 33.63 in (85.4 cm) 40.75 in (103.5 cm)
With Side Panels: 61.63 in (156.5 cm) 34.88 in (88.6 cm) 40.75 in (103.5 cm)
Shipping Weight: 500 lb (227 kg)
Installation Time: 1.5 Hours
Inspection & Adjustments 1 Hour
Water Capacity: Maximum of 63 gal (238 L)
Water Supply: Requires two 0.75 in (1.9 cm) garden hose thread (GHT) internal, wall, or oor mounted faucets.
Minimum of 30 PSI for hot and cold required.
Water Connection: Provided with two 60 in (152.4 cm) high pressure stainless steel hoses with 0.75 in (1.9 cm) GHT
ends.
Waste: Two 1.5 in (3.8 cm) PVC schedule 40 pipe. Outside diameter 1.9 in (4.8 cm).
Electrical Requirements: Dedicated 115 VAC plug-in receptacle protected by a 15A GFCI circuit breaker (not supplied).
Door Control: 24 VDC maintained, IP 65, dust proof, water resistant, sealed push-button switch for operation
of powered door. Emergency release for door in case of power failure.
Tub Fill: RADA ermoscopic mixing valve; ASSE 1016 certied
Shower: Hand held with 84 in (213.4 cm) ANSI A112.18.1 hose
Tub Entr y : Door with 40 in (101.6 cm) opening and 10.25 in (26.0 cm) entry height
Gaskets: Dual gaskets extruded from EDPM.
Whirlpool Pump and Motor: 0.75 HP; 7.5A; 115 VAC; 60HZ; 3370 RPM; 86 GPM at zero head.
Whirlpool Control On-O pneumatic switch.
Whirlpool Jets: ree whirlpool jets with adjustable nozzles.
Whirlpool Water Requirement: 36 gal (136 L) minimum required to run whirlpool jets without resident.
Air Spa Blower Motor: 900W variable speed, thermally protected blower motor with 300W ceramic heating element,
120 VAC; 11.5A; 60 HZ.
Air Spa Control: Multifunction, low voltage DC electronic keypad.
Air Spa Jets: 20 total air jets: Five seat and four leg jets with 24 openings each. One perineal and ten foot well
jets with six lateral openings each.
Air Spa Water Requirement: None
*Specications subject to change
Important Installation Highlights
• e bathing system is to be installed AFTER all construction and nish work is completed.
• During and aer installation, the bathing system DOOR must be in the UP position.
• e bathing system comes with a catch pan that will collect any residual water from the
bathing process. THE DRAIN MUST BE CONNECTED AS SHOWN IN THIS MANUAL
(pages 6 - 7).
• REMEMBER, no matter how well built a mechanical device may be, eventually they all
need service. Plan your installation wisely and include access panels where recommended
in this manual (pages 5-8).
• e bathing system has a removable front cover for service access. e nished installation
must allow the cover to be removed.
• Forcing the door up or down with power and air applied to the unit WILL cause damage to
the actuators. Disconnect power from the unit and bleed o air before manually raising or
lowering the door.