
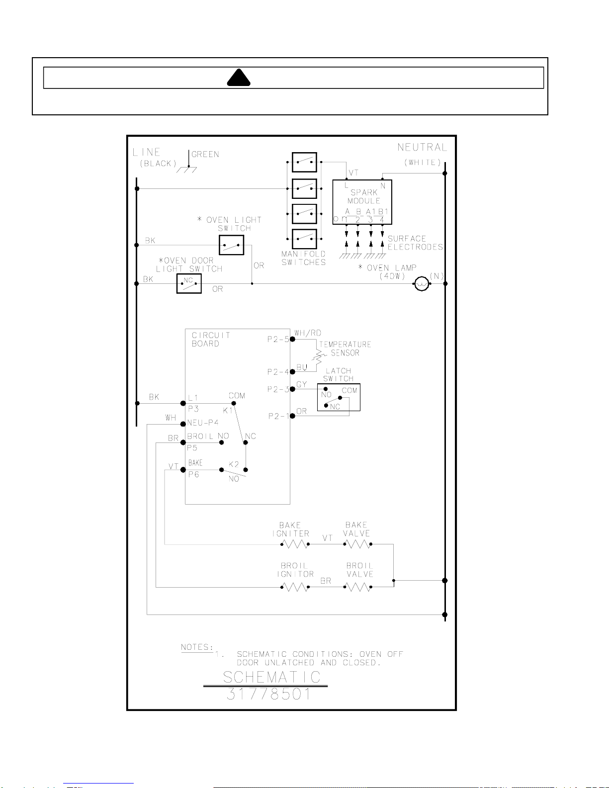
Component Specifications
WARNING
To avoid risk of electrical shock, personal injury, or death, disconnect power to oven before servicing, unless
testing requires it.
RT2310009 Rev. 0 April 19994
Converting from Natural Gas to LP Gas
Converting the Insta-Broil
1. Remove or open oven door.
2. Remove screws securing Insta-Broilbracket.
3. Remove burner carefully, avoid damaging the ignitor
to expose burner spud. Remove the #52 natural gas
burner spud using a 5/16 socket wrench. Save #52
spud to reconvert if necessary in the future.
4. Install the #58 LP/propane spud (wired to inlet pipe).
5. Replace Insta-Broilburner and holding screws.
Converting Oven Burner for Use with LP\Propane
1. Remove storage drawer.
2. Locate and remove 2 screws attaching Z-shaped
cover plate.
• Cover plate located in center, rear of storage
drawer cavity.
• Removing cover plate exposes oven burner orifice
and air shutter.
A
B
C
A—Air Shutter Screw
B—Orifice Hood
C—Air Shutter
3. Turn orifice hood clockwise until snug.
• Do not over tighten orifice hoods. Orifice hoods can
damage LP pin.
4. Replace cover plate and storage drawer.
Converting Surface Burners for Use with LP\Propane
1. Remove 4 burner control knobs from range.
• Expose 2 screws on burner control panel.
2. Remove 2 screws from burner control panel.
• Panel drops slightly after screws are removed.
3. Grasp bottom of burner control panel, gently lift and
pull out panel until clear of burner valve stems.
• After burner control panel clears valve stems,
continue to roll panel until free from range. Set
aside.
• Gas valve and orifice hood are visible after burner
control panel is removed.
E
C
D
AB
A—Burner Control Knob D—Screw
B—Pivot Point E—Orifice Hood
C—Burner Control Panel
4. While facing range front, turn orifice hoods
counterclockwise 1½ to 2 turns or until snug.
• Use ½ inch open end or 90° offset open end
wrench.
• Do not over tighten orifice hoods. If orifice hoods
are over tightened, gas supply can be cut off or
orifice hoods can damage LP pin.
5. Reassemble burner control panel after adjusting air
shutter.
Converting Pressure Regulator for LP/Propane
1. Remove pressure regulator cap using a 7/8 inch
wrench.
2. Reverse pressure regulator cap.
• Cap must show “LP”.
3. Place pressure regulator cap on pressure regulator
and tighten.
Adjusting Burner Flame
Properly adjusted burner flames are clean and blue with
a distinct inner cone approximately ½ inch long.
• If burner flame is blowing or noisy, reduce airflow to
burner.
• If burner flame is yellow and does not hold its shape,
increase airflow to burner.