
PDX-2.150 EUR [EN,FR,ES] 68-05946Z06-A
Prière de vérifier les points énumérés ci-dessous concernant
l'unité principale: (Fig. 10)
a. L'unité principale n'a pas de conducteur de mise sous tension
télécommandée ou d'antenne électrique.
b. Le conducteur d'antenne électrique de l'unité principale est
seulement activé lorsque la radio est allumée (désactivé en
mode cassette ou CD).
c. Le conducteur d'antenne électrique de l'unité principale est
une sortie de niveau logique (+) 5V, déclencheur négatif (de
type mise à la terre) ou ne peut pas supporter (+) 12V lors de
la connexion à un autre équipement en plus de l'antenne élec-
trique du véhicule. Si un des points ci-dessus se présente, le
conducteur de mise sous tension télécommandée du PDX-
2.150 doit être connecté à une source d'alimentation commu-
tée (allumage) du véhicule. S'assurer d'utiliser un fusible de
3A le plus près que possible de la prise d'allumage. En utili-
sant cette méthode de connexion, le PDX-2.150 est mis sous
tension et restera allumé aussi longtemps que le commuta-
teur d'allumage restera activé.
TYPICAL SYSTEM CONNECTIONS/CONNEXIONS TYPIQUES DU SYSTEME/CONEXIONES TIPICAS DEL SISTEMA
[English]
,Center Speaker (sold separately)
-Front Left Speaker (sold separately)
.Front Right Speaker (sold separately)
/Rear Left Speaker (sold separately)
:Rear Right Speaker (sold separately)
;Subwoofer (sold separately)
<RCA Extension Cable (sold separately)
=Fiber Optic Cable(sold separately)
Notes:
Please observe the following when using Fiber Optic Cable.
•Do not coil the Fiber Optic Cable smaller than a 30
mm (1-3/16’) radius.
•Do not place anything on top of the Fiber Optic Cable.
>Speaker Plug
?Head Unit, etc.
@Y-Adaptor (sold separately)
Fig. 11 Fig. 12
[Français]
,Haut-parleur central (vendu séparément)
-Haut-parleur avant gauche (vendu séparément)
.Haut-parleur avant droit (vendu séparément)
/Haut-parleur arrière gauche (vendu séparément)
:Haut-parleur arrière droit (vendu séparément)
;Haut-parleur de sous-graves (vendu séparément)
<Câble d’extension RCA (vendu séparément)
=Câble à fibre optique(vendu séparément)
Remarques:
Respecter les points suivants lors de l’utilisation d’un câble
à fibre optique.
•Ne pas embobiner le câble à fibre optique avec un
rayon inférieur à 30 mm.
•Ne rien placer sur le câble à fibre optique.
>Prise du haut-parleur
?Unité principale, etc.
@Adaptateur en forme de « Y » (vendu séparément)
[Español]
,Altavoz central (vendido separadamente)
-Altavoz delantero izquierdo (vendido separadamente)
.Altavoz delantero derecho (vendido separadamente)
/Altavoz trasero izquierdo (vendido separadamente)
:Altavoz trasero derecho (vendido separadamente)
;Altavoz de subgraves (vendido separadamente)
<Prolongador eléctrico RCA (vendido separadamente)
=Cables de fibra óptica(vendido separadamente)
Notas:
Observe lo siguiente cuando utilice cables de fibra óptica.
•No bobine cables de fibra óptica más pequeños que
un radio de 30 mm.
•No coloque nada encima del cable de fibra óptica.
>Toma del altavoz
?Unidad principal, etc.
@Adaptador en forma de “Y” (vendido separadamente)
5.1 channel Speaker System/Système de haut-parleurs 5,1 cannaux/Sistema de altavoces 5,1 canales
Fig. 13
CONNEXIONS (Fig. 5 – Fig. 8)
Avant d'effectuer les connexions, vérifier que tous les compo-
sants audio sont hors tension. Connectez le conducteur jaune
de la batterie provenant de l'amplificateur directement à la borne
positive (+) de la batterie du véhicule. Ne pas le connecter au
boîtier de fusibles.
ATTENTION
◆Précaution relative au raccordement des bornes/
pièces
•Ne laissez aucun autre objet (particulièrement ceux qui
sont conducteurs d’électricité) entrer en contact ou
s’approcher trop près des bornes/pièces de l’appareil
(alimentation, fusible, borne de sortie de haut-parleur,
prise RCA, etc.). Cela risquerait de provoquer un court-
circuit ou un accident.
Pour éviter que des bruits extérieurs interfèrent avec le sys-
tème audio.
•Installez l'appareil et acheminez les câbles à au moins 10 cm
(3-15/16") de distance du faisceau de câbles de la voiture.
•Eloignez les câbles d'alimentation de la batterie le plus pos-
sible des autres câbles.
•Raccordez bien le fil de terre à un point métallique apparent
(enlevez la couche de peinture ou de graisse si nécessaire)
du châssis de la voiture.
•Si vous rajoutez un filtre antiparasites en option, raccordez-
le le plus loin possible de l'appareil. Contactez votre reven-
deur Alpine pour plus de détails sur les divers filtres antipara-
sites disponibles.
•Consultez votre revendeur Alpine pour plus de détails sur les
mesures de prévention contre les parasites.
1Borne de l’alimentation
2Fusible
3Bornes de sortie du haut-parleur
Insérez le câble du haut-parleur dans la prise du haut-parleur,
laquelle s’insère ensuite dans la borne de sortie du haut-parleur
(reportez-vous à la section « Précautions lors de la connexion
du câble du haut-parleur »).
Remarques :
•Veillez à bien insérer la prise du haut-parleur afin d'éviter des
pertes de connexion ou que le câble se débranche à cause
des vibrations du véhicule, etc.
•Vous pouvez brancher la prise du haut-parleur dans les deux
sens, indépendamment des indications de polarité.
•Jamais connecter les conducteurs de haut-parleur ensemble
ou sur la terre du châssis.
4Prises d'entrée RCA
Connecter ces prises aux conducteurs de sortie de ligne de l’unité
principale en utilisant les cables d’extension RCA (vendus
séparément).
5Conducteur de la batterie (jaune,vendu séparément)
Assurez-vous d’ajouter un fusible le plus près que possible de la
borne positive (+) de la batterie. Ce fusible protégera le système
électrique de votre véhicule au cas de court-circuit. Si ce
conducteur doit être rallongé, n’utilisez que les câbles de type
21mm2-13mm2(épaisseur du câble) pour effectuer cette
connexion.
6Conducteur de mise sous tension télécommande (bleu/
blanc, vendu séparément)
Connecter ce conducteur au conducteur de mise sous tension
télécommandée ou au conducteur d'antenne électrique
(déclencheur positif, (+) 12V seulement) de votre unité principale.
7Conducteur de mise à la terre (noir, vendu séparément)
Connecter ce conducteur sur un endroit propre et métallique du
châssis du véhicule. Vérifier la mise à la terre en contrôlant le
passage de courant continu entre ce point et la borne négative
(–) de la batterie du véhicule.Mettre à la terre tous les composants
audio, au même point sur le chassis pour éviter des boucles de
terre.
CONEXIONES (Fig. 5 – Fig. 8)
Antes de efectuar las conexiones, asegúrese de que apaga to-
dos los componentes audio.Conecte el cable amarillo de la bate-
ría proveniente del amplificador directamente al terminal positivo
(+) de la batería del vehículo. No conecte dicho cable al bloque
de fusibles.
PRUDENCIA
◆Precaución al conectar los terminales/piezas
•No permita que otros objetos (especialmente si son
conductores eléctricos) se acerquen demasiado o entren
en contacto con los terminales/piezas de la unidad (fuente
de alimentación, fusibles, terminal de salida de altavoces,
conector RCA, etc.). De lo contrario, podría producirse un
cortocircuito o un accidente.
Para evitar que entre ruido externo en el sistema de audio
•Coloque la unidad y pase los cables a 10 cm (3-15/16") por lo
menos del conjunto de cables del automóvil.
•Mantenga los conductores de alimentación de la batería lo
más alejados posible de otros cables.
•Conecte el conductor de puesta a tierra con seguridad a un
punto metálico desnudo (si es necesario, elimine le pintura o
la grasa) del chasis del automóvil.
•Si añade un supresor de ruido opcional, conéctelo lo más
lejos posible de la unidad. Su proveedor Alpine dispone de
varios supresores de ruido. Solicítele más información.
•Su proveedor Alpine conoce la mejor forma de evitar el ruido.
Solicítele más información.
1Terminal de la alimentación
2Fusible
3Terminales de salida del altavoz
Según lo descrito en la sección “Precauciones sobre las
conexiones del cable del altavoz”, inserte el cable del altavoz en
la toma del altavoz que, después, se inserta en el terminal de
salida del altavoz.
Notas:
•Inserte completamente la toma del altavoz para evitar pérdidas
de conexión o que el cable se suelte por la vibración del
vehículo, etc.
•La toma del altavoz se puede conectar en ambos sentidos:
no es preciso tener en cuenta ninguna indicación de polaridad.
•Nunca conecte los cables de altavoz juntos o en el punto de
tierra del chasis.
4Clavijas RCA de entrada
Conecte las mismas a los cables de salida de línea de su unidad
principal utilizando cables de extensión RCA (vendidos por
separado).
5Cable de la batería (amarillo,vendido separadamente)
Asegúrese de añadir un fusible tan cerca como sea posible del
terminal positivo (+) de la batería.Este fusible protegerá el sistema
eléctrico de su vehículo en caso de que se produzca un
cortocircuito. Si necesita extender este cable, utilice únicamente
tamaños 21mm2-13mm2(los tamaños del cable) para realizar
esta conexión.
6Cable para encendido remoto (azul/blanco, vendido
separadamente)
Conecte este cable al cable de encendido remoto o de antena
eléctrica (disparador positivo (+) de 12V solamente) de su unidad
principal.
7Cable de tierra (negro, vendido separadamente)
Conecte este cable con seguridad en un punto metálico expuesto,
limpio, en el chasis del vehículo. Verifique que este punto es un
verdadero punto de puesta a tierra comprobando si existe
continuidad entre este punto y el terminal negative (–) de la batería
del vehículo. Conecte a tierra todos sus componentes audio en el
mismo punto del chasis para prevenir bucles en la conexión a tierra.
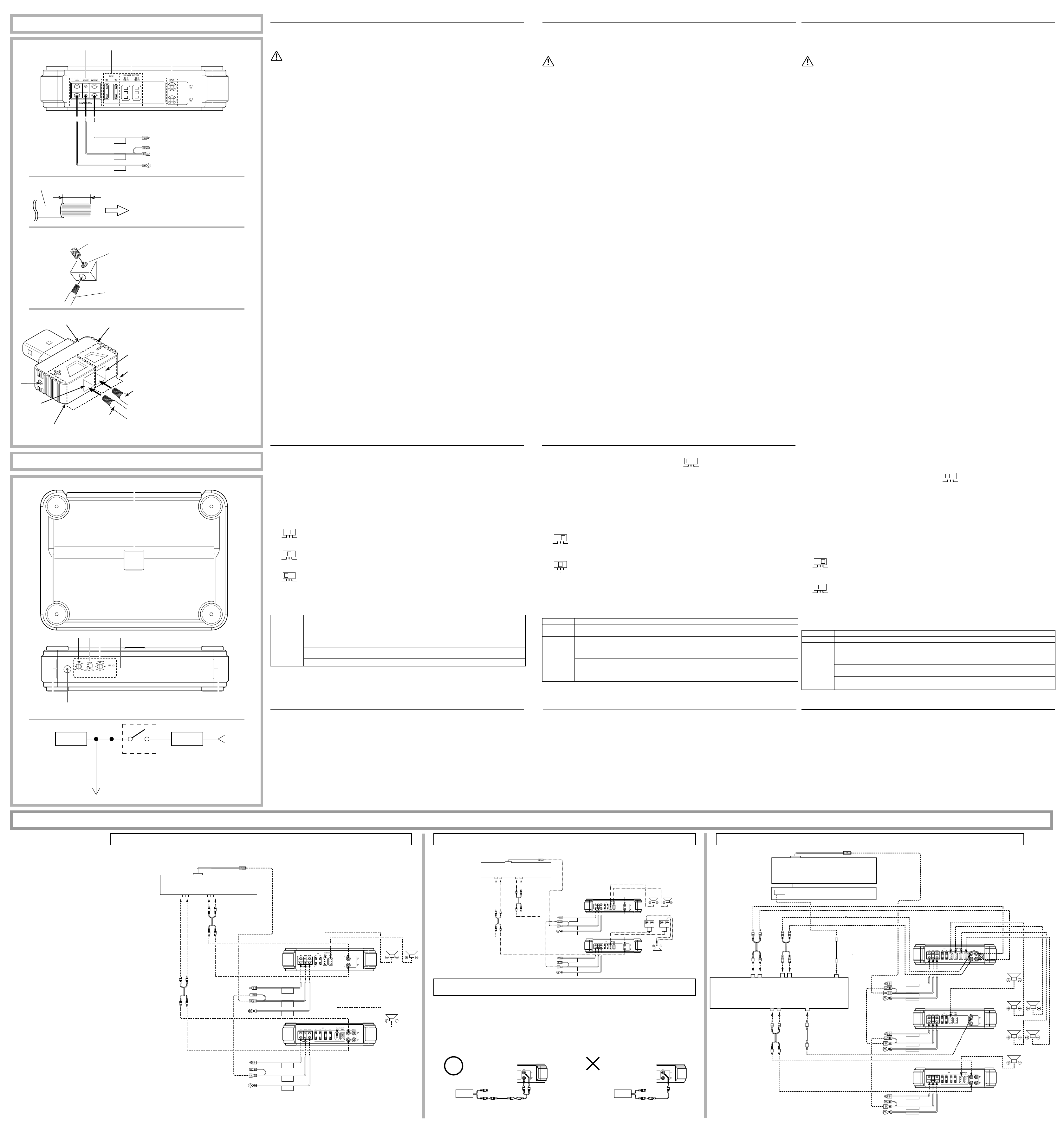
Liste de vérification des connexions (Fig.10)
CONNECTIONS (Fig. 5 - Fig. 8)
Before making connections, be sure to turn the power off to all
audio components.Connect the yellow battery lead from the amp
directly to the positive (+) terminal of the vehicle's battery. Do not
connect this lead to the fuse block.
CAUTION
◆Caution on connection terminals/parts
•Do not allow other objects (particularly electrically
conductive) to get too close or in contact with any of the
unit’s terminals/parts (power supply, fuse, speaker output
terminal, RCA connector, etc.). Doing so may result in
short circuit or accident.
To prevent external noise from entering the audio system.
•Locate the unit and route the leads at least 10 cm (3-15/16")
away from the car harness.
•Keep the battery power leads as far away from other leads as
possible.
•Connect the ground lead securely to a bare metal spot
(remove any paint or grease if necessary) of the car chassis.
•If you add an optional noise suppressor, connect it as far away
from the unit as possible.Your Alpine dealer carries various
noise suppressors, contact them for further information.
•Your Alpine dealer knows best about noise prevention
measures so consult your dealer for further information.
1Power supply terminal
2Fuse
3Speaker Output Terminals
Referring to “Cautions on speaker wire connections”, insert the
speaker wire into the speaker plug, which is then inserted in the
speaker output terminal.
Notes:
•Fully insert the speaker plug to avoid poor connection, or the
wire coming loose due to vehicle vibration, etc.
•The speaker plug can be connected either way, regardless of
polarity indication.
•Do not connect speaker leads together or to chassis ground.
4RCA Input Jacks
Connect these jacks to the line out leads on your head unit using
RCA extension cables (sold separately).
5Battery Lead (Yellow, sold separately)
Be sure to add a afuse as close as possible to the battery's posi-
tive (+) terminal.This fuse will protect your vehicle's electrical sys-
tem in case of a short circuit. If you need to extend this lead,only
use 21mm2-13mm2(the wire gauge) for this connection.
6Remote Turn-On Lead (Blue/White, sold separately)
Connect this lead to the remote turn-on or power antenna
(positive trigger, (+) 12V only) lead of your head unit.
7Ground Lead (Black, sold separately)
Connect this lead securely to a clean, bare metal spot on the
vehicle's chassis.Verify this point to be a true ground by checking
for continuity between that point and the negative (–) terminal of
the vehicle's battery. Ground all your audio components to the
same point on the chassis to prevent ground loops.
3 Speaker System/Système de 3 haut-parleurs/Sistema de 3 altavoces 3 Speaker System/Système de 3 haut-parleur/Sistema de 3 altavoces
◆Cautions on Power Wire connections
The power wire cannot be connected until its end has been
stripped. Below explains how to connect the stripped end of the
power wire.
Notes:
•Use the supplied hexagon screws for this connection.It is highly
recommended that this be carried out by the dealer.
•If you make this connection yourself, ensure the connection is
correct by following the instructions below carefully.
•Be sure to use the supplied hexagon screws for this
connection.
•For safety reasons, connect the battery wire last.
•To prevent disconnection of the leads or dropping of the unit,
do not carry the unit by the wire.
•Be sure to add a fuse as close as possible to the battery.
Make sure to use a fuse of the correct rating for the power
wire.
1. Check the wire gauge.
Notes:
•Only use 21mm2-13mm2(the wire gauge) for this con-
nection.
•If in doubt, consult your dealer or Customer Support
regarding correct wire gauge to use.
2. Strip back between 7-10mm (9/32"-3/8") of the power
wire's insulation to expose the conductor.
Notes:
•If the length of the exposed conductor is too short, a poor
connection may occur causing operation failure or sound
interruption.
•Conversely, if the exposed conductor is too long, an
electrical short-circuit may occur.
3. Loosen the unit's wire terminal hexagon screws, and
insert the exposed conductor into the terminal and finally
tighten to secure the connection.
4. Verify that the power wire is connected securely.
◆Cautions on speaker wire connections
When you connect the speaker wire to the unit, you need to insert
the speaker wire into the speaker plug. Below explains how to
insert the speaker wire into the speaker plug.
1. Check the wire gauge.
Notes:
•The available speaker wire gauge for this unit is 8mm2-
1.3 mm2.
•If in doubt, consult your dealer regarding correct wire
gauge to use.
2. Strip back between 7-10mm (9/32"-3/8") of the wire's
insulation to expose the conductor.
Notes:
•If the length of the exposed conductor is too short, a poor
connection may occur causing operation failure or sound
interruption.
•Conversely, if the exposed conductor is too long, an
electrical short-circuit may occur.
3. Loosen fully the speaker plug's 2 hexagon screws using
the hexagon wrench (small, supplied).
4. Insert fully the exposed conductor of the speaker wire
into the wire terminal hole. Refer to Fig.8.
Note:
•Insert the speaker wire observing the +/– indications on
the speaker plug. Insert the positive speaker wire into
the positive speaker terminal, and the negative speaker
wire into the negative speaker terminal.
5. Tighten the 2 hexagon screws using the hexagon wrench
(small, supplied).
!Crossover Frequency Adjustment Knob
Permits adjustment of the crossover frequency, by rotating the
knob to select any frequency between 30 to 400 Hz as the cross-
over point.
"Switch Panel
#$ Power Indicator
Lights up when power is on.
Is off when power is off.
SWITCH SETTINGS (Fig. 9)
When making adjustments 8-10 below, remove the hexagon screw
(indicated by ★in the illustration) using the hexagon wrench (small,
supplied), and then open the control cover.
8Input Gain Adjustment Control
Set the PDX-2.150 input gain to the minimum (4V) position.Using
a dynamic CD as a source, increase the head unit volume until
the output distorts. Then, reduce the volume 1 step (or until the
output is no longer distorted). Now, increase the amplifier gain
until the sound from the speakers becomes distorted. Reduce the
gain slightly so the sound is no longer distorted to achieve the
optimum gain setting.
9Crossover Mode Selector Switch
a) Set to the "LP" position when the amplifier
is used to drive a subwoofer. The
frequencies above the crossover point will
be attenuated at 12 dB/octave.
b) Set to the "HP" position when the amplifier
is used to drive a tweeter/midrange system.
The frequencies below the crossover point
will be attenuated at 12 dB/octave.
c) Set to the "OFF" position when the ampli-
fier will be used for driving full-range speak-
ers. The full frequency bandwidth will be
output to the speakers with no high or low
frequency attenuation.
Wire Terminal/Borne de conducteur/
Ter minal del conductor Fig. 6
Wire/Conducteur/Conductor 7-10 mm (9/32" -3/8")
Fig. 10
PDX-2.150
Lista de comprobación de conexiones (Fig. 10)
Si existen objeciones a esta alternativa, en adición al fusible
de 3 A mencionado antes, se puede instalar en línea un inte-
rruptor SPST (polo simple, tiro simple) en el cable de encen-
dido del PDX-2.150.Este interruptor se utilizará entonces para
encender (y apagar) el PDX-2.150. Por lo tanto, el interruptor
se deberá montar de forma tal que resulte accesible para el
conductor.Asegúrese de que el interruptor esté apagado cuan-
do el vehículo no esté en marcha. De lo contrario, el amplifi-
cador permanecerá encendido y agotará la batería.
1Azul/Blanco
2Antena eléctrica
3Cable para encendido remoto
4A los cables para encendido remoto de otros componentes
Alpine
5Interruptor SPST (opcional)
6Fusible (3A)
7Tan cerca como sea posible del contacto de encendido del
vehículo
8Fuente de encendido
Por favor compruebe el estado de su unidad principal según
las condiciones listadas a continuación: (Fig. 10)
a. La unidad principal no tiene un cable de encendido remoto o
de antena eléctrica.
b. El cable de antena eléctrica de la unidad principal solamente
está activado cuando la radio está encendida (desactivado
en el modo de cinta o de CD).
c. El cable de antena eléctrica de la unidad principal es una
salida de nivel lógico (+) de 5V, disparador negativo (tipo de
tierra), o no puede soportar (+) 12V cuando es conectado a
otro equipo además de la antena eléctrica del vehículo. Si se
observa una de las condiciones anteriores, el cable de en-
cendido remoto de su PDX-2.150 se deberá conectar a una
fuente de alimentación mediante interruptor (ignición) en el
vehículo.Asegúrese de utilizar un fusible de 3A tan cerca como
sea posible de esta llave de ignición. Empleando este méto-
do de conexión, el PDX-2.150 se encenderá y permanecerá
encendido mientras el interruptor de ignición esté activado.
%Status Indicator
Indication color Status Solution
Blue Amplifier circuit is normal.
Turn off the power supply and eliminate the cause. Then turn on the unit and
verify that the \indicator color has changed to blue. If it remains red, turn off the
unit and consult your dealer.
Decrease the vehicle’s interior temperature to a normal level.The indicator
color changes to blue.
Use the correct power supply voltage. The indicator color changes to blue.
2Hex screw hole/Orifice de la vis à six
pans/Agujero de tornillo hexagonal
1Speaker plug/Prise du haut-parleur/
Toma del altavoz
3Negative lead terminal hole/Orifice de la
borne du conducteur négatif/Agujero del
terminal del conductor negativo
4Speaker negative terminal/Borne
négative du haut-parleur/Terminal
negativo del altavoz
5
Speaker wire (negative)/Câble du haut-
parleur (négatif)/Cable del altavoz (negativo)
6Positive lead terminal hole/Orifice de la
borne du conducteur positif/Agujero del
terminal del conductor positivo
7Positive speaker terminal/Borne positive
du haut-parleur/Terminal positivo del
altavoz
Fig. 8
Fig. 9
Red
◆Précautions lors de la connexion du câble
d’alimentation
Vous devez dénuder le câble d’alimentation avant de le connecter.
Veuillez trouver ci-dessous des explications concernant la
connexion de l’extrémité dénudée du câble d’alimentation.
Remarques :
•Utilisez les vis à six pans fournies pour effectuer cette
connexion. Il est fortement recommandé de confier cette
connexion au distributeur.
•Si vous réalisez vous-même cette connexion, suivez
attentivement les instructions ci-dessous.
•Veillez à utiliser les vis à six pans fournies pour effectuer cette
connexion.
•Pour des raisons de sécurité, raccordez le câble de la batterie
en dernier.
•Pour éviter que les câbles ne se déconnectent ou que l’unité
ne tombe, veillez à ne pas tenir l'unité par le câble.
•Assurez-vous d’ajouter un fusible le plus près possible de la
batterie. Veillez à utiliser un fusible de l’ampérage approprié
pour la câble d’alimentation.
1. Vérifiez l’épaisseur du câble.
Remarques :
•N’utilisez que les câbles de type 21 mm2- 13mm2
(épaisseur du câble) pour effectuer cette connexion.
•En cas de doute, consultez votre revendeur ou le service
client pour savoir quel type de câble utiliser.
2. Dénudez l’isolation du câble d’alimentation de 7 à 10 mm
(9/32"-3/8") pour découvrir le conducteur.
Remarques :
•Si le conducteur dénudé n’est pas assez long, des pertes
de connexion peuvent se produire et provoquer un
dysfonctionnement ou l’interruption du son.
•Au contraire, si le conducteur dénudé est trop long, un
court-circuit électrique peut se produire.
3. Desserrez les vis à six pans de la borne du conducteur de
l’unité, puis insérez le conducteur dénudé dans la borne ;
resserrez les vis pour fixer la connexion.
4. Assurez-vous que le câble d’alimentation est
correctement raccordé.
◆Précautions lors de la connexion du câble
du haut-parleur
Lorsque vous connectez le câble du haut-parleur à l’unité, vous
devez l’insérer dans la prise du haut-parleur. Vous trouverez ci-
dessous des explications concernant l'insertion du câble du haut-
parleur dans la prise du haut-parleur.
1. Vérifiez l’épaisseur du câble.
Remarques :
•L’épaisseur de câble du haut-parleur disponible pour cette
unité est 8mm2-1,3 mm2.
•En cas de doute, consultez votre revendeur pour savoir
quel type de câble utiliser.
2. Dénudez l’isolation du câble de 7 à 10 mm (9/32"-3/8")
pour découvrir le conducteur.
Remarques :
•Si le conducteur dénudé n’est pas assez long, des pertes
de connexion peuvent se produire et provoquer un
dysfonctionnement ou l’interruption du son.
•Au contraire, si le conducteur est trop long, un court-circuit
électrique peut se produire.
3. Desserrez complètement les 2 vis à six pans de la pris du
haut-parleur à l'aide de la clé hexagonale (petite, fournie).
4. Insérez complètement le conducteur dénudé du cable du
haut-parleur dans l'orifice de la borne du conducteur. Voir
Fig. 8.
Remarque :
•Insérez le câble du haut-parleur en respectant les
indications +/– situées sur la prise du haut-parleur.
Insérez le câble positif du haut-parleur dans la borne
positive du haut-parleur et le câble négatif dans la
borne négative.
5. Resserrez les 2 vis à six pans à l’aide de la clé hexagonale
(petite, fournie).
c) Régler sur la position "OFF" lorsque
l'amplificateur est utilisé pour exciter les
hautparleurs de large bande. La bande
entière sortira aux haut-parleurs sans que
les fréquences basses ou hautes soient
coupées.
!Bouton de réglage de la fréquence de transfert
Permet le réglage de la fréquence de transfert en tournant le
bouton pour sélectionner une fréquence entre 30 et 400 Hz comme
point de recouvrement.
"Panneau des commutateurs
#$ Indicateur d’alimentation
Allumé lors de la mise en marche.
Eteint lord de l’extinction.
REGLAGES DE COMMUTATEUR (Fig. 9)
Avant d'effectuer les réglages 8 à 10 ci-après, retirez la vis à six
pans (signalée ★dans le schéma) à l’aide de la clé hexagonale
(petite, fournie), puis ouvrez le couvercle des commandes.
8Contrôle de réglage de gain d'entrée
Régler le gain d'entrée du PDX-2.150 à la position minimale (4V).
En utilisant un CD dynamique comme source, augmenter le
volume de l'unité principale jusqu'à ce que le son s'altère. Puis,
réduire le volume d'un pas (ou jusqu'à ce que le son de sortie ne
soit pas altéré). Maintenant, augmenter le gain de l'amplificateur
jusqu'à ce que le son des haut-parleurs devienne altéré. Réduire
le gain petit à petit, jusqu’à ce que le son ne soit pas altéré pour
obtenir un réglage de gain optimum.
9Commutateur sélecteur de mode du séparateur
a) Régler sur "LP" lorsque l'amplificateur est
utilisé pour exciter un haut-parleur de sous-
graves. Les fréquences supérieures au
point de recouvrement sont coupées à
raison de 12 dB par octave.
b) Régler sur la position "HP" lorsque
l'amplificateur est utilisé pour exciter un
système de haut-parleur d'aigus/bande
moyenne. Les fréquences inférieures au
point de recouvrement sont coupées à
raison de 12 dB par octave.
%Indicateur d'état
Couleur de l’indication
État Solution
Éteignez la source d’alimentation, puis éliminez la cause du problème. Mettez
l’unité sous tension, puis vérifiez que l’indicateur passe au bleu. S’il reste
rouge, mettez l’unité hors tension et consultez votre revendeur.
Faites baisser la température intérieure du véhicule à une niveau normal.
L’indicateur passe au bleu.
Utilisez la tension d’alimentation appropriée. L’indicateur passe au bleu.
Rose
Le circuit de l’amplificateur est
normal.
Le circuit de l’amplificateur présente
une anomalie. Un court-circuit
électrique s’est produit ou le courant
d'alimentation est trop élevé.
La température ambiante est trop
élevée.
La tension d’alimentation est trop
élevée.
Si ceci est inacceptable, en plus du fusible de 3A mentionné
ci-dessus, un commutateur SPST (commutateur-disjoncteur
unipolaire) doit être installé en ligne dans le conducteur de
mise sous tension du PDX-2.150. Ce commutateur est en-
suite utilisé pour mettre sous (et hors) tension le PDX-2.150.
Pour cette raison, prière de s'assurer que ce commutateur est
accessible au conducteur. S'assurer que le commutateur est
désactivé quand le véhicule est arrêté. Autrement, l'amplifi-
cateur restera activé et videra la batterie.
1Bleu/Blanc
2Antenne électrique
3Conducteur de mise sous tension télécommandée
4Aux conducteurs de mise sous tension télécommandée
d'autres composants Alpine
5Commutateur SPST (optionnel)
6Fusible (3A)
7Aussi près que possible de la prise d'allumage du véhicule
8Source d'allumage
◆Precauciones sobre las conexiones del
cable de alimentación
No es posible conectar el cable de alimentación si no se pela
previamente su extremo.A continuación se detalla cómo conectar
el extremo pelado del cable de alimentación.
Notas:
•Utilice los tornillos hexagonales suministrados para realizar
esta conexión. Se recomienda encarecidamente que ésta
corra a cargo del distribuidor.
•Si decide realizar la conexión usted mismo, verifique que sigue
con atención las instrucciones que se describen a continuación
para garantizar una conexión correcta.
•Asegúrese de que utiliza los tornillos hexagonales
suministrados para realizar esta conexión.
•Por motivos de seguridad, conecte el cable de la batería en
último lugar.
•Para evitar la desconexión de los cables o que la unidad se
caiga, no la sujete por el cable.
•No olvide añadir un fusible lo más cerca que sea posible de la
batería. Asegúrese de que utiliza un fusible de la potencia
adecuada para el cable de alimentación.
1. Verifique el tamaño del cable.
Notas:
•Utilice únicamente tamaños 21mm2- 13mm2 (los tamaños
del cable) para realizar esta conexión.
•
Si no está seguro, póngase en contacto con el servicio de
atención al cliente para saber qué tamaño de cable exacto
debe utilizar.
2. Pele entre 7 y 10 mm (9/32"-3/8") del aislante del cable
de alimentación para descubrir el conductor.
Notas:
•Si la longitud del conductor descubierto es demasiado
corta, podrían producirse pérdidas de conexión y provocar
fallos de funcionamiento o interrupción del sonido.
•Por el contrario, si el conductor descubierto es demasiado
largo, podría producirse un cortocircuito eléctrico.
3. Afloje los tornillos hexagonales del terminal del conductor
de la unidad e inserte el conductor descubierto. Por
último, apriete los tornillos para fijar la conexión.
4. Verifique que el cable de alimentación está conectado
correctamente.
◆Precauciones sobre las conexiones del
cable del altavoz
Al conectar el cable del altavoz a la unidad, es necesario insertarlo
en la toma del altavoz. A continuación se detalla cómo insertar el
cable del altavoz en la toma del altavoz.
1. Verifique el tamaño del cable.
Notas:
•El tamaño disponible del cable del altavoz para esta
unidad es 8mm2-1,3 mm2.
•Si no está seguro, póngase en contacto con su distribuidor
para saber qué tamaño de cable exacto debe utilizar.
2. Pele entre 7 y 10 mm (9/32"-3/8") del aislante del cable
para descubrir el conductor.
Notas:
•Si la longitud del conductor descubierto es demasiado
corta, podrían producirse pérdidas de conexión y provocar
fallos de funcionamiento o interrupción del sonido.
•Por el contrario, si el conductor descubierto es demasiado
largo, podría producirse un cortocircuito eléctrico.
3. Afloje completamente los 2 tornillos hexagonales de la
toma del altavoz con ayuda de la llave hexagonal
(pequeña, se suministra).
4. Inserte completamente el conductor descubierto del cable
del altavoz en el orificio del terminal del conductor.
Consulte Fig. 8.
Nota:
•Inserte el cable del altavoz teniendo en cuenta las
indicaciones +/– de la toma del altavoz. Inserte el cable
positivo del altavoz en el terminal positivo del altavoz y el
cable negativo del altavoz en el terminal negativo del
altavoz.
5.
Apriete los 2 tornillos hexagonales con ayuda de la llave hexagonal
(pequeña, se suministra).
c) Ajuste a la posición desactivada ("OFF")
cuando el amplificador se utilice para
excitar un sistema con altavoces que
reproduzcan la gama completa de
frecuencias. La anchura de banda total se
emitirá sin cortar ni las frecuencias altas
ni las bajas.
!Botón de ajuste de frecuencia del filtro divisor (de
frecuencias)
Permite el ajuste de la frecuencia de cruce, girando el botón para
seleccionar una frecuencia entre 30 y 400 Hz como punto de
intersección.
"Panel de interruptores
#$ Indicador de alimentación
Encendido Cuando el aparato está en marcha.
Apagado Cuando el aparato está apagado.
AJUSTES DEL INTERRUPTOR (Fig. 9)
Cuando realice los ajustes 8-10 descritos a continuación, extraiga
el tornillo hexagonal (señalado con ★en la ilustración) con ayuda
de la llave hexagonal (pequeña, se suministra) y, a continuación,
abra la cubierta de controles.
8Controles de ajuste de ganancia de entrada
Ajuste la ganancia de entrada del PDX-2.150 a su posición mínima
(4V).Utilizando un CD dinámico como fuente, aumente el volumen
de la unidad principal hasta que haya distorsión.Después, reduzca
de un paso el volumen (o hasta que la salida no salga
distorsionada). Entonces, aumente la ganancia del amplificador
hasta que el sonido de los altavoces salga distorsionado.Reduzca
poco a poco la ganancia hasta que el sonido no salga
distorsionado para obtener un ajuste de ganancia óptimo.
9Interruptor selector de modo del filtro divisor (de
frecuencia)
a) Fíjelo en la posición "LP" cuando se utilice
el amplificador para excitar el altavoz de
frecuencias ultrabajas. Las frecuencias
sobre el punto de cruce se cortarán (a
razón de 12 dB por octava).
b) Fíjelo en la posición "HP" cuando se utilice
el amplificador para excitar el sistema de
altavoz de agudos/tonos medios. Las
frecuencias bajo el punto de cruce se
cortarán (a razón de 12 dB por octava).
%Indicador de estado
Color de la indicación
Estado Solución
Apague la fuente de alimentación y elimine el motivo. Después,
vuelva a encender la unidad y verifique el color del indicador ha
cambiado a azul. Si sigue rojo, apague la unidad y póngase en
contacto con su distribuidor.
Disminuya la temperatura interior del vehículo hasta conseguir un
nivel normal. El indicador de color cambiará a azul.
Utilice el voltaje correcto de la fuente de alimentación.El indicador
de color cambiará a azul.
Rojo
El circuito del amplificador es normal.
El circuito del amplificador es anormal. Se
ha producido un cortocircuito eléctrico o la
corriente de alimentación es demasiado
elevada.
La temperatura ambiente es demasiado
elevada.
El voltaje de la fuente de alimentación es
demasiado elevado.
$ %★
CONNECTION CHECK LIST (Fig. 10)
Please check your head unit for the conditions listed below:
(Fig. 10)
a. The head unit does not have a remote turn-on or power an-
tenna lead.
b. The head unit's power antenna lead is activated only when
the radio is on (turns off in the tape or CD Mode).
c. The head unit's power antenna lead is logic level output (+)
5V, negative trigger (grounding type), or cannot sustain (+)
12V when connected to other equipment in addition to the
vehicle's power antenna. If any of the above conditions exist,
the remote turn-on lead of your PDX-2.150 must be connected
to a switched power source (ignition) in the vehicle.Be sure to
use a 3A fuse as close as possible to this ignition tap. Using
this connection method, the PDX-2.150 will turn on and stay
on as long as the ignition switch is on.
If this is objectionable, a SPST (Single Pole, Single Throw)
switch, in addition to the 3A fuse mentioned above, may be
installed in-line on the PDX-2.150 turn-on lead. This switch
will then be used to turn on (and off) the PDX-2.150. There-
fore, the switch should be mounted so that is accessible by
the driver. Make sure the switch is turned off when the vehicle
is not running. Otherwise, the amplifier will remain on and
drain the battery.
1Blue/White
2Power Antenna
3Remote Turn-On Lead
4To other Alpine components' Remote Turn-On Leads
5SPST Switch (optional)
6Fuse (3A)
7As close as possible to the vehicle's ignition tap
8Ignition Source
FILTER
OFF HP LP
FILTER
OFF HP LP
FILTER
OFF HP LP
5
6
7
- .
<
5
6
7
;
<
15
15
20
20
20
20
(PDX-2.150)
Front output terminal /
Borne de sortie avant /
Te r minal de salida delantero
Front Left / Avant gauche / Delantero izquierdo
Remote Turn-On Lead /
Fil de mise sous tension à distance /
Cable de encendido remoto
CD Head unit (sold separately, CDA-9857R etc.)/
Unité principale CD (vendu séparément, CDA-9857R)/
Unidad principal de CD(vendido por separado, CDA-9857R)
(L) (R)
(L) (R)(L) (R)
Front Right /
Avant droit /
Delantero derecho
(PDX-1.1000)
Subwoofer output terminal /
Borne de sortie du subwoofer /
Te r minal de salida del subwoofer
7
12
3
4
5
8
6
2
8Speaker wire (positive)/Câble du haut-
parleur (positif)/Cable del altavoz
(positivo)
CONNECTIONS/CONNEXIONS/CONEXIONES
Bleu
Azul
Important Tips on Bridging an Amplifier/Conseils importants lors de la mise en pont d’un amplificateur/
Consejos importantes cuando conecte en puente un amplificador
(R)
(L)
?<@
(One signal / Un signal / Una señal)
(R)
(L)
?<
(One signal / Un signal / Una señal)
Note:
The following troubles may occur when it
is not properly connected.
1) One side input results in low output.
2) One side input will cause failure.
3) One side input may cause more
heating and thus result in the earlier
operation of overheating protection.
Remarque:
Les difficultés suivantes peuvent se produire
quand il n'est pas correctement relié.
1) Entrée d’un seul côté causant une
sortie basse.
2) Entrée d’un seul côté causant une
panne.
3) L’entrée d’un seul côté peut causer
plus de chauffage et avoir ainsi comme
conséquence l'opération plus tôt de la
protection de surchauffe.
Nota:
Las dificultades siguientes pueden ocurrir
cuando no está conectado correctamente.
1) Entrada de un solo lado ocasionando
una salida baja.
2) Entrada de un solo lado ocasionando
fallos.
3) La entrada de un solo lado puede
producir más calor y dar lugar así a
una operación más temprana de la
protección de recalentamiento.
Improper connection/
Connexion
incorrecte/Conexión
incorrecta
15
15
15
15
5
6
7
- .
<
5
6
7
<>
;
(PDX-2.150)
(PDX-2.150)
Front output terminal /
Borne de sortie avant /
Te r minal de salida delantero
Front Left / Avant gauche / Delantero izquierdo
Remote Turn-On Lead /
Fil de mise sous tension à distance /
Cable de encendido remoto
CD Head unit (sold separately, CDA-9857R etc.)/
Unité principale CD (vendu séparément, CDA-9857R etc.)/
Unidad principal de CD
(vendido por separado, CDA-9857R etc.)
(L) (R)
(L) (R)(L) (R)
Front Right /
Avant droit /
Delantero derecho
Subwoofer output terminal /
Borne de sortie du subwoofer /
Te r minal de salida del subwoofer
FILTER
OFF HP LP
FILTER
OFF HP LP
FILTER
OFF HP LP
FILTER
OFF HP LP
FILTER
OFF HP LP
FILTER
OFF HP LP
15
15
5
6
7
Fig. 5
Fig. 7
Hexagon screw/Vis à six pans/
Tor nillo hexagonal
Wire Terminal/Borne de conducteur/
Terminal del conductor
Wire/Conducteur/Condctor
SWITCH SETTINGS/REGLAGES DE COMMUTATEUR/AJUSTES DEL INTERRUPTOR
Proper connection/
Connexion correcte/
Conexión correcta
PDX-4.150
PDX-2.150
PDX-1.1000
L
R
L
R
L
R
Remote Turn-
n Lead
Fil de mise sous tension
distance
able de encendido remot
Fiber di
ital output terminal
B
rn
rti
fi
r
n
ri
ue
Te r minal de salida de fibra di
ita
<Monitor
Moniteur
M
nit
r
<Tuner Box
B
tier du tuner
Ca
a del sintonizador
Ai-NET/Fiber di
ital compatible audio processor
(sold separatel
,PXA-H701 etc.
Processeur audio nu
rique compatible Ai-NET/Fibre
(vendu
pa
ment, PXA-H701 etc.
Processador de audio compatible con Ai-NET/fibra di
ital
vendido se
aradamente, PXA-H701 etc.
AV Head unit (sold separatel
, IVA-D310R etc.)
ni
rinci
ale AV
vendu
a
ment, IVA-D310R etc.
Unidad
rinci
al de AV
vendido
or se
arado, IVA-D310R etc.
Front Left / Avant
auche / Delantero iz
uierd
Front Ri
ht / Avant droit / Delantero derech
Rear Left / Arrière gauche / Trasero izquierdo
Rear Right / Arrière droit / Trasero derecho
Front out
ut terminal
Borne de sortie avant
T
rmin
l
li
l
nt
r
Center out
ut terminal
Borne de sortie centre
T
rmin
l
li
ntr
Rear out
ut terminal
Born
orti
rr
re
T
rmin
l
li
tr
r
Subwoofer out
ut terminal
Borne de sortie du subwoofer
T
rmin
l
li
l
w
f
Fiber di
ital input terminal
B
rn
nt
fi
r
n
ri
ue
Te r minal de entrada de fibra di
ita
1
2
3
4
5
6
7
8
Amplifier circuit is abnormal. An
electrical short has occurred, or
supply current is too high.
Ambient temperature is too high.
Power supply voltage is too high.