It is recommended that the range be serviced at regular annual
intervals.
Arrange with the householder that the range has been turned
OFF the night before to ensure it is cold upon arrival.
The appliance and its individual shut-off valve must be
disconnected from the gas supply piping system during any
pressure testing of that system at test pressure in excess of
1/2 psig (3.5kPa). The appliance must be isolated from the gas
supply piping system by closing its individual manual shut-off
valve during any pressure testing of the gas supply piping
system at test pressure equal to or less than 1/2 psig (3.5kPa).
1. Isolate the gas supply by turning off the service gas valve
beneath the combination gas valve. Break the hexagon
union connection nut.
2. Detach inner burner door fixing screws and draw
complete gas burner assembly clear of the combustion
chamber resting it on the floor in front of the range.
NOTE: THERE IS SUFFICIENT LENGTH OF
THERMOSTAT CAPILLARY TUBE WITHOUT DETACHING
THE SENSING END FROM THE TOP OF THE ROASTING
OVEN.
3. Remove the boiling plate, combustion chamber baffle
and simmering plate.
4. Check conditions of flueways and combustion
chamber and clean if necessary.
5. Lightly brush the perforated top of the gas burner and
check that the burner venturi is free of lint and fluff.
NOTE: IT MAY BE NECESSARY TO DETACH THE PILOT
ASSEMBLY AND REMOVE THE BURNER TO ENSURE IT
IS FREE.
6. Check the condition of the pilot thermocouple tip to
ensure it is clean and free of carbon. Heavy heat oxidised
tips should mean the removal of the thermocouple and a
new replacement. Examine and brush clean the pilot light
parts and examine the
ignitor cable to ensure the PTFE insulation remains intact
and is firmly connected to the spark electrode.
Clean any carbon away from the electrode.
7. Refit combustion chamber baffle.
8. DIRECT VENT MODEL ONLY - GC AND GE.
Using a wire brush, lightly remove the old sealing cement
on the contact under faces of the hotplate and simmering
plates to the cooker, and lighly smear another cement
sealing coat provided, before refitting of hotplates.
9. Refit gas burner assembly in reverse manner described in
2 and reconnect the gas supply at service gas valve union.
On completion test the gas installation for soundness and
purge. Leak testing of the appliance shall be conducted
according to manufacturer’s instructions.
NOTE: USE SOAPY WATER SOLUTION ON NEW GAS
CONNECTIONS TO ENSURE THERE ARE NO GAS
LEAKS.
10.Turn on the gas supply and follow the procedure for
lighting the burner.
11.Ensure that the pilot and main burner flames are
burning evenly, the thermocouple is enveloped by the
pilot flame.
12.Visually check main burner and pilot flame for correct
flame pattern. An established main burner at high fire will
be predominantly blue with yellow tippings on an even
height flame strip and be about 150mm (6in) high. See Fig.
11. Ensure all flameports have cross-lit and that the pilot
light flame is free from sooting.
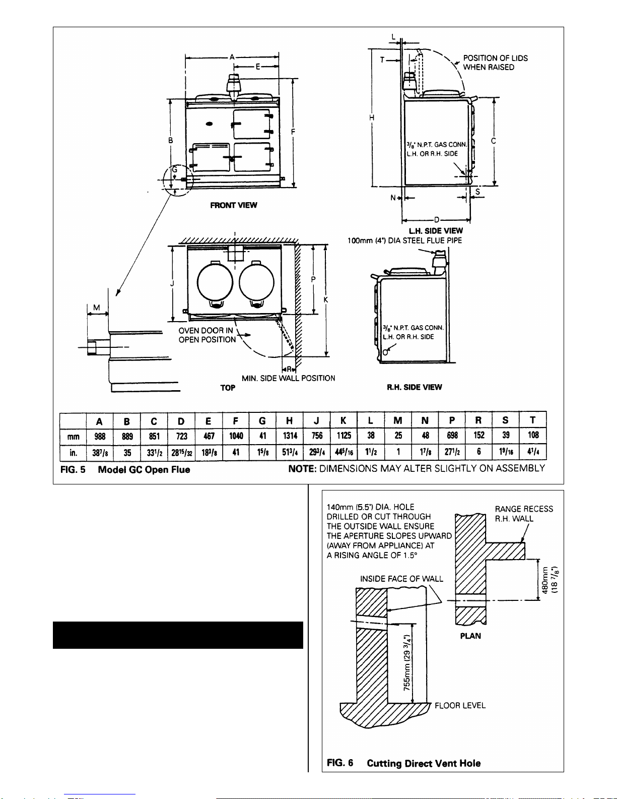
13.The maximum depth of any cabinets installed above the
top cooking surface of the range must not exceed 330mm
(13in).
8
With Aga-Rayburn's policy of continuous product improvement, the
Company reserves the right to change specifications and make
modifications to the appliance described and illustrated at any time.
Aga-Rayburn
Station Road
Ketley Telford
Shropshire TF1 5AQ
Installer Servicing Instructions for Aga Models
GC and GE Open Flue Ranges and
GC and GE Direct Vent Ranges
YEARLY SERVICE
www.aga-rayburn.co.uk
www.agacookshop.co.uk
LABORATOIRE D’ESSAI RECONNU
AU NIVEAU NATIONAL