
Ku-BAND BOOSTER AMPLIFIER OUTPUT POWER 16W-50W PB-SW310-O1
ADVANTECH Advanced Microwave Technologies Inc., 657 Orly Avenue, Dorval, QC, H9P 1G1 Canada
Tel.
(1
514)
420-0045
Fax:(1
5
14)
420-0073
E-
mail: [email protected] www.AdvantechAMT.comDESCRIPTION
ADVANTECH’s hub-mount SSBs are constructed in a compact, air-cooled housing for outdoor operation.
These Boosters are weatherproof, thus a special equipment shelter is not required. They are the smallest fully
integrated units on the market today.
The design of these amplifiers is based on ADVANTECH’s industry proven reliable solid state high power
amplifiers. Built-in design features and assembly methods, incorporated with effective combining techniques
result in an amplifier with exceptional linearity and operating efficiency. The use of high efficiency power supply
and conservative thermal designs contributes to the trouble free operation of the booster. Additional standard
features comprise the automatic over-temperature shutdown, high input overdrive protection and soft failure
features that contribute to smooth operation and greatly improve the life of the product.
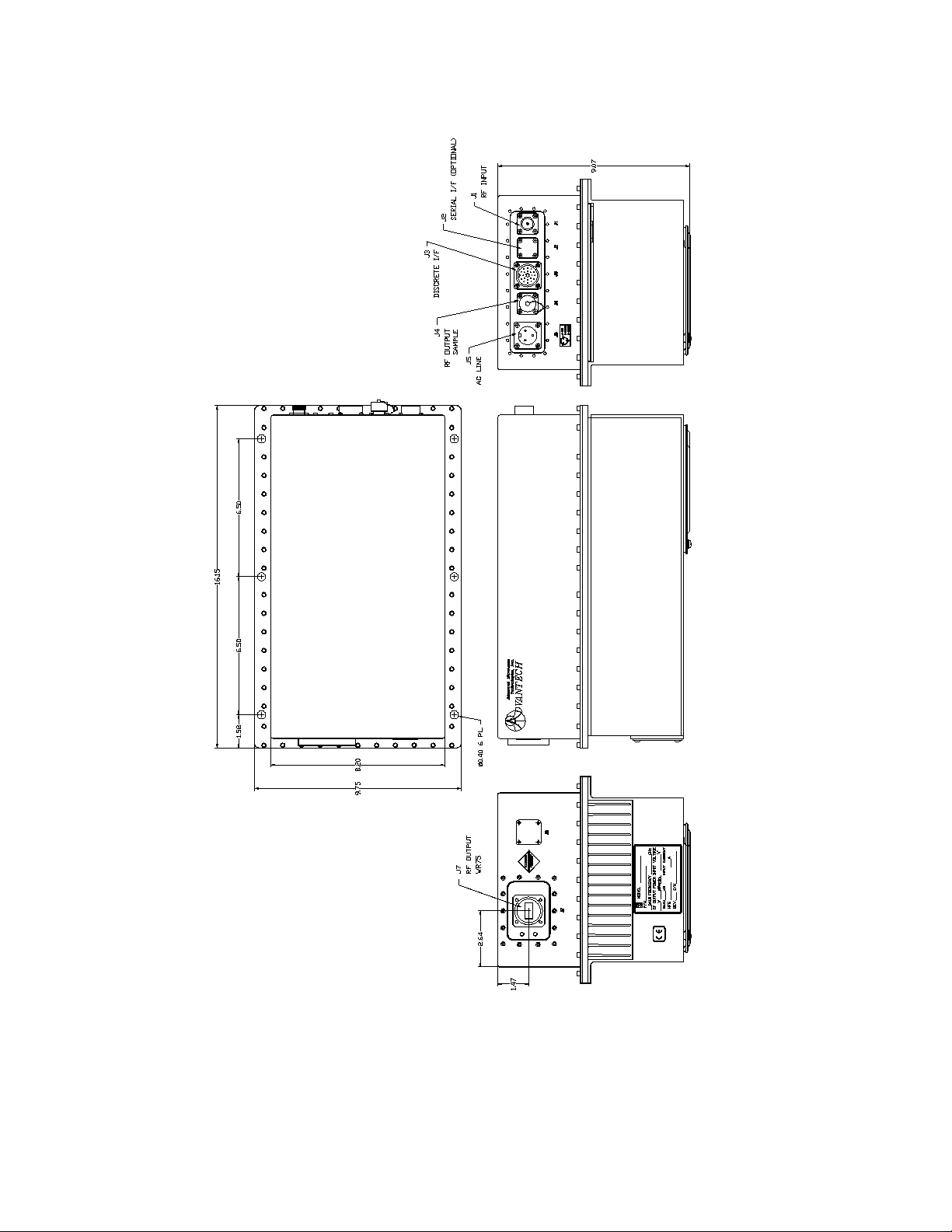
The AWSB-K series Boosters contain the following subsystems:
•Booster amplifier module
•Waveguide arm assembly
•Power supply system
•Alarm interface module
Booster Amplifier Module
The Booster Amplifier Module has a RF gain of 26 ±3 dB to 31 ±3 dB (depending on model, see TECHNICAL
SPECIFICATIONS table) and an output power at 1 dB gain compression (P1dB), depending also on model,
between 16 and 50W (see also the TECHNICAL SPECIFICATIONS table). A DC board containing the biasing
and the control and protection circuitry is included in this module. Other functional capabilities are gain
temperature compensation, high temperature shutdown, reflected power shutdown and overload shutdown.
Waveguide Arm Assembly
The Waveguide Arm Assembly includes a harmonic filter, an isolator and related power detectors.
•The harmonic filter provides a minimum of 50dB attenuation of all harmonic products other than the
fundamental signal.
•The isolator provides one reflected power port coupled via a detector to the Alarm/ Indicate board for
reverse power protection. The output port of the waveguide arm assembly has a minimum 18 dB output
return loss and the output flange is WR-75G.
•One extra sample port, the RF Output Monitor Port, calibrated in coupling ratio versus frequency, permits
the independent monitoring of SSB output power levels, using an external spectrum analyzer or power
meter, via a ‘N’-type connector.
•The RF Input Isolation Circuit provides an Input Return Loss of minimum 18 dB, over full frequency band, at
the N-type RF input connector of the SSB.
Power supply system
The power supply sub-assembly of the SSB provides all of the internal voltages necessary to operate the RF
section and the Alarm/Indicate board. The power supply is configured for 90-132 or 180-265 VAC input AC line
(auto-ranging).