
source of higher temperature to a heat source of lower temperature. The application of the heat pump brings the
benefit that it is able to transfer more energy (in form of heat) than the energy it takes for its operation (in form
EN 6
of electric power). This way, heat pump is able to extract energy from heat sources existing in its environment
without “expenditure”, depending on the type and availability of the heat sources.
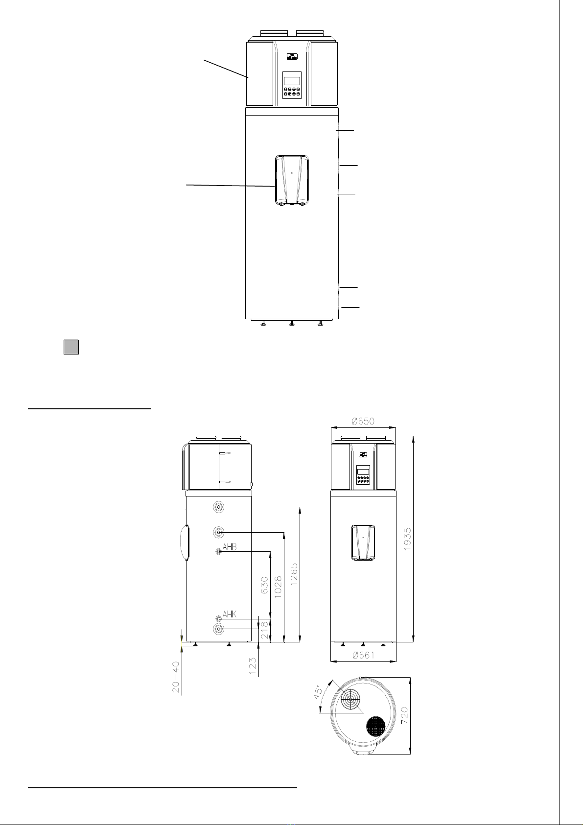
HB300(C) heat pump water heater extracts heat from stuffy internal air to be refreshed, thus it adds to
the efficiency increase of water heating. It is possible to select among several different configurations to use
environmental air, which provides multilateral application of the appliance besides different operational
conditions.
HB300(C) heat pump water heater has been planned and manufactured pursuant to specifications on the
energy performance of buildings. The appliance ensures more rational energy use and leads to savings in the
operational costs. As opposed to other alternative systems used to produce sanitary hot water, heat extraction
from free energy sources definitely reduces environmental effects of emissions into the atmosphere.
2.2. Operation explanation
According to the facts mentioned above, the “energetic capacity” of heat
pump is based on heat transfer through heat extraction from free source (in this
case, it is the environmental air) with lower temperature than the material to be
heated (in this case, it is the water in the tank of the water heater). Electric
power is required for the operation of the compressor (that leads to change of
state of matter of the cooling fluid within the cooling circuit), thus for the
transfer of heat energy. Cooling fluid passes along a closed hydraulic circuit
where the fluid changes into liquid or gaseous state of matter in connection with
its temperature and pressure. The main elements of the hydraulic circuit (Figure
2.2-1) are the following:
1
–
compressor, which ensures cycle running through increasing the
pressure and the temperature of the cooling fluid (which has a gaseous state of
matter in this cycle).
2– first heat exchanger located in the water tank of the water heater:
heat exchange between the cooling fluid and the sanitary water to be heated up
is produced on its surface. As in this phase, the state of matter of the warm
cooling fluid changes and it condenses into liquid while transferring its heat to
the water, this heat exchanger is defined as condenser.
3– expansion valve: it is an equipment through which the cooling fluid
passes just when its pressure and temperature are reducing, following the
expansion of the liquid perceivably as a result of pipe cross-sectional area
increase above the valve.
4– second heat exchanger located in the upper part of the water heater,
which surface has been increased by fins. The second heat exchanger performs heat exchange between the
cooling fluid and the environmental air drifted artificially by either the free source or by a special fan in a
proper way. As in this phase, the cooling fluid evaporates and extracts heat from the environmental air, this heat
exchanger is defined as evaporator.
As heat energy is able to flow from a higher temperature level to a lower temperature level exclusively,
the temperature of the cooling agent located in the evaporator (4) has to be lower than the environmental air
acting as free source, in the same time, in order to transfer heat, the cooling agent located in the condenser (2)
has to possess a temperature higher than the temperature of the water to be heated in the tank.
The temperature difference within the heat pump circuit is produced by the compressor (1) located
between the evaporator (4) and the condenser (2) and by the expansion valve (3), due to physical features of the
cooling fluid.
The efficiency of the heat pump circuit can be measured by the coefficient of performance
(COP). COP is the ration of incoming energy into the appliance (in this case, it is the heat transferred to the
water to be heated) to the electric power used (by the compressor and the supporting equipment of the
appliance). COP may change depending from the type of the heat pump and the related operational
circumstances. A value of 3 for COP means, for example that the heat pump transfers 3 kWh to the material to
Figure 2.2.-1.